In zweiter Reihe, geschützt vom Trubel des Alltags, erwartet Sie dieses besondere Einfamilienhaus mit eigenständigem Charakter. Ursprünglich als Werkstattgebäude errichtet, wurde die Immobilie im Jahr 1994/1995 aufwendig kernsaniert und zu einem modernen Zuhause umgewandelt. Mit rund drei Zimmern, zwei Bädern, einer durchdachten Raumaufteilung über zwei Etagen sowie einem uneinsehbaren Garten eignet sich dieses Haus ideal für Paare mit Anspruch oder kleine Familien, die ein außergewöhnliches Zuhause in funktionaler Lage suchen.
Wohnkonzept mit Atmosphäre
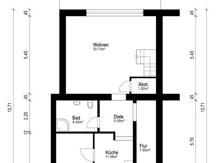
Das Haus empfängt Sie mit einem offenen, wohnlichen Grundriss, der sich über zwei Ebenen erstreckt und ein angenehmes Raumgefühl vermittelt. Im Erdgeschoss befindet sich ein großzügiger Wohnbereich mit direktem Zugang zur separaten Küche, die mit einer gepflegten Einbauküche ausgestattet ist. An die Küche schließt ein weiteres Zimmer an, das sich ideal als Kinder- oder Arbeitszimmer nutzen lässt. Ein innenliegendes Duschbad und ein kleiner Abstellraum runden das Raumangebot dieser Ebene funktional ab.
Im Obergeschoss erwartet Sie ein ruhiger Rückzugsbereich mit einem Schlafzimmer und einem angrenzenden, Tageslichtbad en suite, das zudem über einen Waschmaschinenanschluss verfügt.
Ausstattung & Stil
Der durchgängig verlegte Parkettboden verleiht dem Innenraum eine warme, hochwertige Ausstrahlung. Das Gebäude wurde bei der Sanierung umfassend modernisiert, sodass die Bausubstanz mit dem Charme des Ursprungs harmoniert. Eine Gaszentralheizung aus dem Jahr 2011 sorgt für eine zuverlässige und effiziente Wärmeversorgung.
Außenbereich mit Privatsphäre
Der uneinsehbare Garten bietet Rückzugsmöglichkeiten und Platz zur Erholung im Freien. Die Lage in zweiter Reihe schafft Privatsphäre – allerdings grenzt das Grundstück an ein aktives Fabrikgebäude, dessen Werksbetrieb werktags bis ca. 15:30 Uhr (freitags bis ca. 13:00 Uhr) akustisch wahrnehmbar ist. Die Ausrichtung und Gestaltung des Gartens sorgen dennoch für eine angenehme Aufenthaltsqualität.
Praktisch und alltagstauglich
Zwei PKW-Stellplätze direkt vor dem Haus bieten bequemen Zugang und machen die Immobilie auch für Berufspendler attraktiv. Ein Keller ist nicht vorhanden, jedoch bietet das Raumkonzept innerhalb des Hauses praktikable Stau- und Nutzungsmöglichkeiten.
Dieses Einfamilienhaus überzeugt durch seinen individuellen Ursprung, die gelungene Sanierung und die ruhige Lage in zweiter Reihe. Ideal für Menschen, die ein Zuhause mit Charakter und Privatsphäre suchen, das zugleich alltagstauglich, gepflegt und bezugsbereit ist.
Für weitere Informationen oder die Vereinbarung eines Besichtigungstermins steht Ihnen Herr Florian Rossa gerne zur Verfügung.
Rückzugsort mit Geschichte – Wohnen in einem kernsanierten Unikat für Paare und kleine Familien.
42699 Solingen
Die vollständige Adresse der Immobilie erhalten Sie vom Anbieter.
Auf Karte anzeigen
Die vollständige Adresse der Immobilie erhalten Sie vom Anbieter.
Finanzierungszertifikat
In nur zwei Minuten zu Ihrem persönlichen Finanzierungszertifkat.
Infos
| Haustyp | Einfamilienhaus |
|---|---|
| Wohnfläche ca. | 112 m2 |
| Nutzfläche | 19,7 m2 |
| Grundstücksfläche | 245 m2 |
| Bezugsfrei ab | nach Vereinbarung |
| Zimmer | 3 |
| Schlafzimmer | 2 |
| Badezimmer | 2 |
| Garage/Stellplatz | Außenstellplatz |
| Anzahl Garage/Stellplatz | 2 |
Kosten
| Kaufpreis |
329.000 € |
|---|---|
| Provision |
3,57% inkl. MwSt. |
Finanzierungsrechner:
Kaufpreis:
600.000 €
Eigenkapital:
600.000 €
Monatliche Rate
0 €
Effektiver Jahreszins
0 %
Sollzinsbindung
10 Jahre
Bausubstanz & Energieausweis
| Baujahr | 1934 |
|---|---|
| Wesentliche Energieträger | Gas |
| Energieausweis | liegt vor |
| Energieausweistyp | Bedarfsausweis |
| Energieverbrauchskennwert | 238,1 kWh/(m²*a) |
| Energieeffizienzklasse | G |
238,1
kWh/(m²*a)
Energieeffizienzklasse G
- A+
- A
- B
- C
- D
- E
- F
- G
- H
- 0
- 25
- 50
- 75
- 100
- 125
- 150
- 175
- 200
- 225
- >250
Beschreibung des Objekts
Ausstattung
Allgemeine Eckdaten
Nutzung: Einfamilienhaus für Paare oder kleine Familien
Lage: In zweiter Reihe, ruhig und geschützt
Wohnfläche: verteilt über zwei Etagen
Kein Keller
Zwei PKW-Stellplätze direkt vor dem Haus
Ursprünglich Werkstattgebäude, kernsaniert 1994/1995
Räume & Aufteilung
3 Zimmer
2 Badezimmer
EG: innenliegendes Duschbad
OG: Tageslichtbad en Suite mit Waschmaschinenanschluss
Küche mit gepflegter Einbauküche
Kein Keller, aber durchdachte Stauraumlösungen im Haus
Ausstattung & Zustand
Parkettboden in Wohnbereichen
Bezugsfertiger Zustand
Gaszentralheizung (Baujahr 2011)
Außenbereich
Uneinsehbarer Garten mit hoher Privatsphäre
Garten grenzt an Fabrikgelände (werktags hörbarer Betrieb bis ca. 15:30 Uhr, freitags bis ca. 13:00 Uhr)
Besonderheiten
Sanierung mit Charakter: Verbindung aus Altbestand und modernem Wohnen
Wohnlage mit Rückzugspotenzial und gleichzeitig urbaner Erreichbarkeit
Lage
Im beliebten Stadtteil Solingen-Merscheid, in ruhiger Wohnlage mit gewachsener Nachbarschaft, befindet sich dieses Einfamilienhaus – ideal für Familien und Paare, die ein Zuhause mit Wohnkomfort und naturnahem Umfeld suchen.
Die direkte Umgebung ist geprägt von Einfamilienhäusern, kleinen Gärten und einer angenehmen Nachbarschaftsatmosphäre. Eine verkehrsberuhigte Lage sorgt für Ruhe und Sicherheit – perfekt für Kinder und ein entspanntes Wohnen.
Nur wenige Gehminuten entfernt lädt das Lochbachtal zu ausgedehnten Spaziergängen, Joggingrunden oder Fahrradtouren ein. Mit seinen Wiesen, schattigen Baumgruppen und naturbelassenen Wegen zählt es zu den beliebtesten Naherholungsgebieten in Solingen – eine grüne Oase direkt vor der Haustür.
Gleichzeitig ist die Infrastruktur hervorragend: Einkaufsmöglichkeiten, Supermärkte, Bäckereien, Apotheken, Cafés, Ärzte sowie Kindergärten und Schulen befinden sich im nahen Umkreis. Auch das Zentrum von Solingen-Mitte und Solingen-Ohligs mit seinen weiteren Einkaufs-, Gastronomie- und Freizeitangeboten ist in wenigen Minuten mit dem Auto oder Bus erreichbar.
Die Verkehrsanbindung ist für Pendler besonders attraktiv: In rund 10 bis 15 Minuten erreichen Sie die Autobahnen A3, A46 und A1, die schnelle Verbindungen in die Richtungen Düsseldorf, Köln, Leverkusen, Wuppertal und Langenfeld ermöglichen. Der Bahnhof Solingen-Ohligs mit ICE-, Regional- und S-Bahn-Anschluss bietet zusätzliche Flexibilität im täglichen Berufsverkehr oder für überregionale Reisen.
Dieses Zuhause verbindet Ruhe, Natur und zentrale Erreichbarkeit – in einem Wohnumfeld, das sich bestens für Familienleben eignet. Ein idealer Ort zum Ankommen und langfristig Wohlfühlen.
Sonstige Angaben
Der Kaufpreis für die Immobilie beträgt 329.000,00€ zuzüglich der vom Käufer zu zahlenden Provision in Höhe von 3,57% inkl. gesetzl. Mehrwertsteuer. Wir sind vom Eigentümer allein beauftragt, Verhandlungen mit Interessenten zu führen.
Der Makler-Vertrag mit uns kommt durch schriftliche Vereinbarung oder durch die Inanspruchnahme unserer Maklertätigkeit auf der Basis des Objekt-Exposés und seiner Bedingungen zustande. Die Käufercourtage ist bei notariellem Vertragsabschluss verdient und fällig. Grunderwerbsteuer, Notar- und Gerichtskosten trägt der Käufer. Sollte das von uns nachgewiesene Objekt bereits bekannt sein, teilen Sie uns dies bitte unverzüglich mit. Die Weitergabe dieses Exposés an Dritte ohne unsere Zustimmung löst gegebenenfalls Courtage- bzw. Schadensersatzansprüche aus.
Kleingedrucktes:
Alle Angaben basieren ausschließlich auf Informationen, die uns von unserem Auftraggeber übermittelt wurden. Wir übernehmen keine Gewähr für die Vollständigkeit, Richtigkeit und Aktualität dieser Angaben. Zwischenverkauf bleibt vorbehalten.
Grundriss
Erdgeschoss
>
>
Obergeschoss
>
>
Adresse
42699 Solingen
Interessante Orte
Preis- und Lageinformationen
Preistrend für Bestandsimmobilien in Ohligs/Aufderhöhe/Merscheid