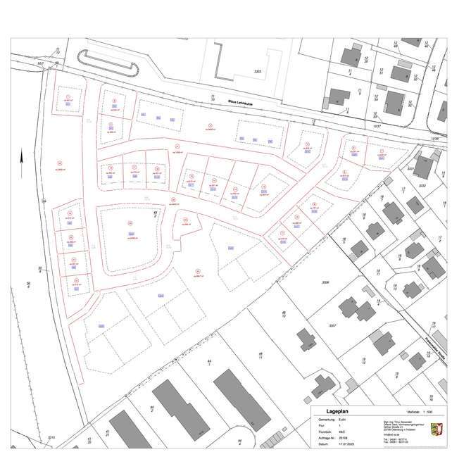
Baufeld 1 (WA 2b) – Baugrundstück im Quartier „Blaue Lehmkuhle“, Eutin
Objektbeschreibung
Im neu entstehenden Wohnquartier „Blaue Lehmkuhle“ in Eutin wird dieses attraktive Baugrundstück zum Verkauf angeboten. Das Grundstück Baufeld 1 bietet die Möglichkeit, zwei Doppelhaushälften zu errichten. Die Bebauung richtet sich nach dem Bebauungsplan Nr. 146 der Stadt Eutin, der eine hochwertige, nachhaltige und durchgrünte Quartiersentwicklung vorgibt.
⸻
Eckdaten (je Haushälfte)
• Grundstücksfläche: ca. 320 m²
• GRZ: 0,4
• Überbaubare Fläche: ca. 128 m²
• Zulässige Geschosse / Gebäudehöhe: II / TH 7,00 m – GH 10,50 m
• Max. Bruttogrundfläche (BGF): ca. 318 m²
• Max. Wohnfläche: ca. 239 m²
• Anzahl Wohneinheiten: 1 – 2 je Haushälfte
⸻
Lage
Die Grundstückshälften liegen im westlichen Teil des Quartiers „Blaue Lehmkuhle“ – ruhig, sonnig und von Grünstrukturen umgeben.
Die Lage überzeugt durch ihre Nähe zu Schulen, Kindertagesstätten, Einkaufsmöglichkeiten und dem Bahnhof.
Dank der Seenlandschaft rund um Eutin und der Ostseenähe bietet der Standort zudem einen hohen Freizeit- und Erholungswert.
⸻
Besonderheiten
• Bebauung gemäß Bebauungsplan Nr. 146 der Stadt Eutin
• Flexible Nutzung im Rahmen der Planungsvorgaben
• Erschließungsbeginn: Frühjahr 2026
• Teil eines nachhaltig entwickelten Wohnquartiers
• Keine Bauträgerbindung
• Keine Maklercourtage
⸻
Weitere Informationen finden Sie unter
www.blaue-lehmkuhle.de
Grundstück für eine Doppelhaushälfte - Wohnquartier Blaue Lehmkuhle
Blaue Lehmkuhle 12,
23701 Eutin
Auf Karte anzeigen
Finanzierungszertifikat
In nur zwei Minuten zu Ihrem persönlichen Finanzierungszertifkat.
Infos
| Vermarktungsart | Kaufen |
|---|---|
| Grundstücksfläche | 320 m2 |
| Erschließung | Erschlossen |
| Empfohlene Nutzung | Doppelhaus |
| Grundflächenzahl (GRZ) | 0.4 |
| Geschossflächenzahl (GFZ) | 2 |
| Bebaubar nach | Bebauungsplan |
| Verfügbar ab | 1.7.2026 |
Kosten
| Miete pro Jahr |
143.775 € |
|---|---|
| Provision | Nein |
Finanzierungsrechner:
Kaufpreis:
600.000 €
Eigenkapital:
600.000 €
Monatliche Rate
0 €
Effektiver Jahreszins
0 %
Sollzinsbindung
10 Jahre
Beschreibung des Objekts
Grundriss
IMG_8165
>
>
IMG_8166
>
>
IMG_8167
>
>