Wir freuen uns sehr, Ihnen ein ganz besonderes Sonnengrundstück in bester Villenlage von Königstein zum Verkauf anbieten zu dürfen.
Bei dem Grundstück handelt es sich um eine noch zu vermessende Teilfläche von 1.703 m² aus einer Gesamtfläche von 3.567 m². Diese Teilfläche sowie die daneben liegende Teilfläche ist aktuell noch mit einer Bestandsimmobilie bebaut.
Das zum Verkauf stehende, nach Süden ausgerichtete Traumgrundstück befindet sich in sehr geschützter und privilegierter Lage direkt am Naturschutzgebiet.
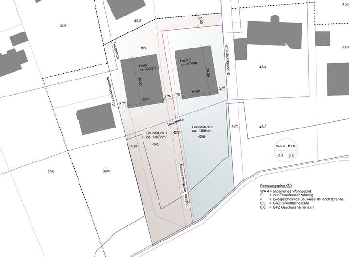
Das Grundstück ist perfekt geschnitten und bietet mit dem in Aufstellung befindlichen Bebauungsplan K 80 exzellente Bebauungsmöglichkeiten.
Die Begehung des Grundstücks wird u.a. von einem sehr erfahrenen Architekten begleitet, der als Experte des Grundstücks alle Fragen rund um die Bebauung beantworten kann.
Traumgrundstück mit perfekter Sonnenausrichtung in bester Villenlage von Königstein
61462 Königstein im Taunus
Die vollständige Adresse der Immobilie erhalten Sie vom Anbieter.
Auf Karte anzeigen
Die vollständige Adresse der Immobilie erhalten Sie vom Anbieter.
Finanzierungszertifikat
In nur zwei Minuten zu Ihrem persönlichen Finanzierungszertifkat.
Infos
| Vermarktungsart | Kaufen |
|---|---|
| Grundstücksfläche | 1.609 m2 |
| Grundflächenzahl (GRZ) | 0.3 |
| Verfügbar ab | Nach Vereinbarung |
Kosten
| Miete pro Jahr |
1.430.000 € |
|---|---|
| Provision |
3,57 % inkl. gesetzlicher MwSt. von aktuell 19 % bezogen auf den Kaufpreis |
Finanzierungsrechner:
Kaufpreis:
600.000 €
Eigenkapital:
600.000 €
Monatliche Rate
0 €
Effektiver Jahreszins
0 %
Sollzinsbindung
10 Jahre
Beschreibung des Objekts
Lage
Königstein im Taunus zählt seit jeher zu den begehrtesten Wohnadressen im Rhein-Main-Gebiet und vereint auf einzigartige Weise ländliche Idylle mit urbaner Nähe. Eingebettet in eine sanfte Hügellandschaft, geprägt von viel Grün, alten Baumbeständen und stilvollen Villen, bietet die Stadt eine erstklassige Lebensqualität, die gerade Familien mit hohen Ansprüchen begeistert. Die Verbindung aus naturnahem Wohnen, exzellenter Infrastruktur und einem lebendigen, kulturellen Angebot schafft hier ein Umfeld, das sowohl Ruhe als auch Vielfalt auf höchstem Niveau garantiert.
Im Herzen dieses exklusiven Wohnumfelds liegt die zum Verkauf stehende Immobilie in einer der elegantesten und ruhigsten Straßen Königsteins. Hier reihen sich prachtvolle Einfamilienhäuser und Villengrundstücke aneinander, die geprägt sind von architektonischer Qualität, großzügigen Gartenanlagen und einer gewachsenen, sympathischen Nachbarschaft. Die Lage besticht durch ihre absolute Privatsphäre und ihre geschützte Lage, die ein hohes Maß an Sicherheit und Geborgenheit für die ganze Familie bietet.
Die unmittelbare Nähe zu erstklassigen internationalen und deutschen Schulen sowie zu renommierten Sport- und Freizeitmöglichkeiten machen die Lage der Immobilie besonders attraktiv für Familien, die Wert auf eine ausgewogene Balance aus Bildung, Freizeit und Erholung legen. Gleichzeitig ist die Königsteiner Innenstadt mit ihren hochwertigen Einkaufsmöglichkeiten, exquisiten Restaurants und charmanten Cafés in wenigen Minuten erreichbar.
Die hervorragende Verkehrsanbindung – ob per Auto, Bahn oder Flughafen – ermöglicht eine stressfreie Erreichbarkeit der Metropolregion Frankfurt sowie der wichtigsten nationalen und internationalen Ziele. So verschmilzt in dieser Lage das Beste aus zwei Welten: ein exklusives, naturverbundenes Wohngefühl in einer der schönsten Lagen des Taunus, gepaart mit urbaner Flexibilität und Komfort.
Für Familien mit höchsten Ansprüchen an Stil, Exklusivität und Lebensqualität zählt die Lage der zum Verkauf stehenden Immobilie in Königstein zu den begehrtesten und nachhaltig wertbeständigen Wohnadressen – ein Refugium, das großzügigen Freiraum für individuelle Entfaltung, uneingeschränkte Privatsphäre und zeitgemäßes Wohnen auf höchstem Niveau gewährleistet.