_ Charmantes Einfamilienhaus, Baujahr 1987, in solider Massivbauweise errichtet
_ Elegante Klinkerfassade und großzügiges Grundstück mit ca. 724 m²
_ Ruhige Lage und durchdachte Architektur für komfortables Wohnen
_ Ca. 140 m² Wohnfläche mit klar strukturierter Raumaufteilung
_ Zusätzlich ca. 90 m² wohnlich ausgebaute Nutzfläche, vielseitig nutzbar (Hobby, Home-Office, Gäste)
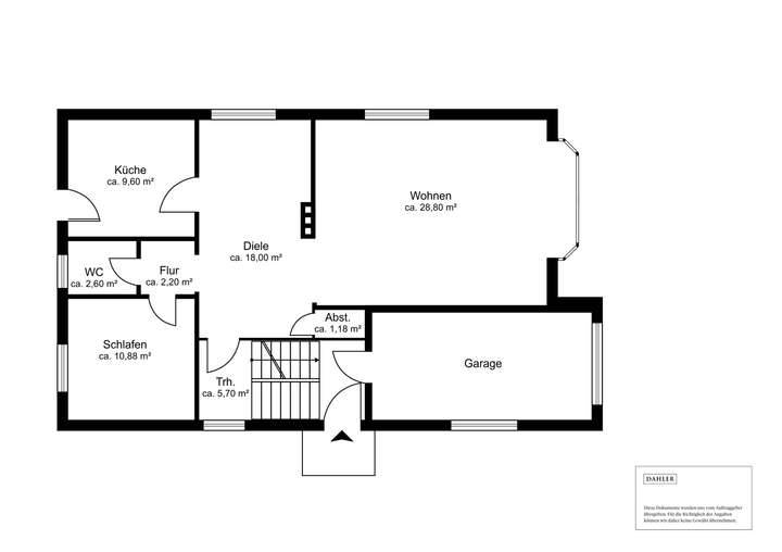
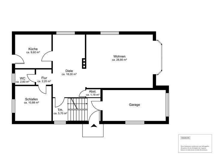
_ Funktionaler Eingangsbereich mit direktem Zugang zur Garage
_ Erhöhter Hauptwohnbereich mit großzügigem, zentralem Flur
_ Stilvoller, bogenförmiger Durchgang zum hellen Wohnbereich
_ Großzügige Fensterflächen sorgen für viel Tageslicht
_ Zentraler Kamin als wohnliches Highlight mit behaglicher Atmosphäre
_ Charmante Erker-Ecke – ideal als Lese- oder Entspannungsbereich
_ Lichtdurchfluteter Essbereich mit großzügiger Fensterfront
_ Küche mit bodentiefen Fenstern und direktem Zugang zur Terrasse
_ Reibungsloser Übergang von Innen- zu Außenbereich – perfekt für Mahlzeiten im Freien
_ Separater Bereich im Flur mit Garderobe, Gäste-WC mit Dusche und flexiblem Zimmer (z. B. Büro oder Gästezimmer)
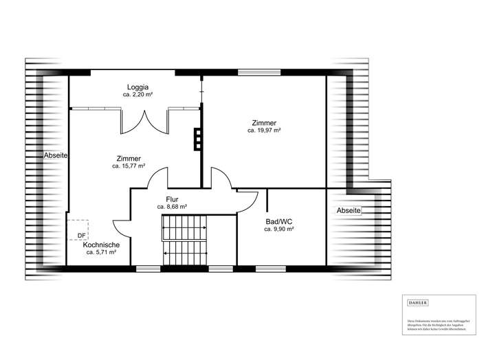
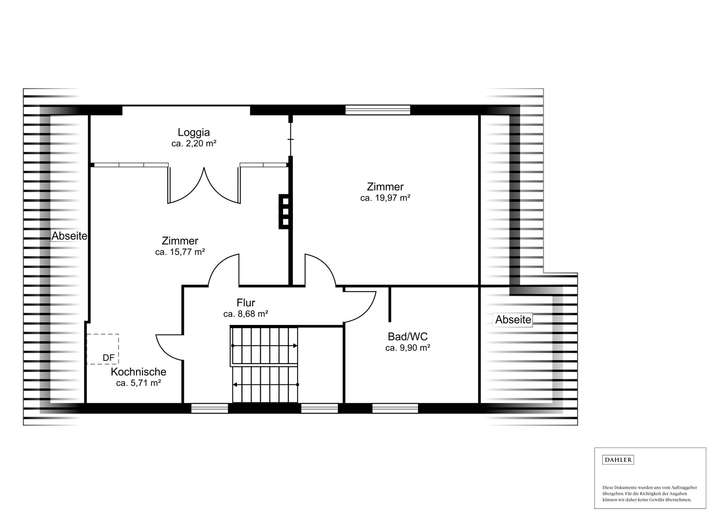
_ Obergeschoss mit offenem, vielseitig nutzbarem Bereich und vorhandenem Küchenanschluss
_ Überdachter Balkon für eine angenehme Verbindung zum Außenbereich
_ Ruhiges Schlafzimmer mit eigenem Zugang zum Balkon
_ Tageslichtbad mit Badewanne im Obergeschoss
_ Wohnlich ausgebautes Dachgeschoss mit angenehmer Belichtung – ideal als Rückzugsort oder Arbeitsbereich
_ Souterrain mit separater Küche, großzügigem Raum und vollwertigem Bad mit Badewanne
_ Flexibel nutzbar für Gäste, Arbeiten oder als eigenständige Wohneinheit
_ Zusätzliche Hauswirtschafts- und Technikräume im Untergeschoss
_ Individuelle Besichtigung auf Anfrage möglich – wir freuen uns auf Ihre Kontaktaufnahme
Charmantes Einfamilienhaus mit Anbaupotenzial in ruhiger Lage von Eidelstedt
22523 Hamburg
Die vollständige Adresse der Immobilie erhalten Sie vom Anbieter.
Auf Karte anzeigen
Die vollständige Adresse der Immobilie erhalten Sie vom Anbieter.
Finanzierungszertifikat
In nur zwei Minuten zu Ihrem persönlichen Finanzierungszertifkat.
Infos
| Haustyp | Einfamilienhaus |
|---|---|
| Wohnfläche ca. | 140 m2 |
| Grundstücksfläche | 724 m2 |
| Zimmer | 4 |
| Schlafzimmer | 3 |
| Badezimmer | 2 |
| Garage/Stellplatz | Garage |
| Anzahl Garage/Stellplatz | 1 |
Kosten
| Kaufpreis |
870.000 € |
|---|---|
| Provision |
3,57 % inkl. MwSt. bezogen auf den Kaufpreis |
Finanzierungsrechner:
Kaufpreis:
600.000 €
Eigenkapital:
600.000 €
Monatliche Rate
0 €
Effektiver Jahreszins
0 %
Sollzinsbindung
10 Jahre
Bausubstanz & Energieausweis
| Baujahr | 1987 |
|---|---|
| Objektzustand | Gepflegt |
| Heizungsart | Gas-Heizung |
| Wesentliche Energieträger | Gas |
| Energieausweis | liegt vor |
| Energieausweistyp | Verbrauchsausweis |
| Energieverbrauchskennwert | 185,7 kWh/(m²*a) |
| Energieeffizienzklasse | F |
185,7
kWh/(m²*a)
Energieeffizienzklasse F
- A+
- A
- B
- C
- D
- E
- F
- G
- H
- 0
- 25
- 50
- 75
- 100
- 125
- 150
- 175
- 200
- 225
- >250
Beschreibung des Objekts
Ausstattung
_ äußerst gepflegtes Einfamilienhaus aus dem Jahr 1987 in solider Massivbauweise
_ durchdachte Architektur mit großzügigem, flexibel nutzbarem Raumangebot
_ ca. 140 m² Wohnfläche + ca. 90 m² wohnlich ausgebaute Nutzfläche auf mehreren Ebenen
_ ideal für Familien, Paare mit Platzbedarf oder Mehrgenerationenlösungen
_ einladender Eingangsbereich mit solider Innentreppe als zentrale Verbindung aller Etagen
_ offen gestalteter Wohnbereich im Erdgeschoss mit gemauertem Kamin als stilvolles Zentrum
_ architektonisch ansprechender Wanddurchbruch zwischen Diele und Wohnraum
_ Holzpaneel Decken und helle Fliesen schaffen warme, natürliche Wohnatmosphäre
_ großzügige, teils bodentiefe Fensterflächen für optimale Belichtung
_ elektrisch bedienbare Rollläden für zusätzlichen Komfort
_ direkter Zugang zur überdachten Terrasse mit Blick in den liebevoll angelegten Südgarten
_ klassische Landhausküche mit massiven Holzfronten und dekorativen Fliesenakzenten
_ separates Gästezimmer mit Parkettboden
_ freundlich gestaltetes Gäste-WC mit Dusche im Erdgeschoss
_ Obergeschoss mit vielseitig nutzbarem Raum inkl. vorbereiteter Küchenanschlüsse
_ Zugang zum überdachten Balkon mit Sitzgelegenheit und Stauraum
_ ruhiges Schlafzimmer und Tageslichtbad mit Badewanne auf dieser Etage
_ ausgebauter Dachboden mit großzügigen Dachflächenfenstern, Heizkörpern und separatem WC
_ ideal als kreativer Arbeitsbereich, Rückzugsort oder Studio
_ wohnlich ausgebautes Untergeschoss mit eigenem Wohnbereich
_ inkl. separatem Zimmer, voll ausgestatteter Küche und Badezimmer mit Badewanne
_ größtenteils geflieste Böden für pflegeleichte Nutzung
_ zusätzlicher Hauswirtschafts- und Technikraum mit funktionalem Mehrwert
_ gepflegter Garten in sonniger Südlage mit überdachter Terrasse und Steintreppe
_ seitlicher Grundstückszugang – ideal für Fahrräder oder Gartenarbeiten
_ Gartenhaus und separater Schuppen als zusätzliche Stauraumlösungen
_ genehmigte Planung für einen rückwärtigen Anbau bereits vorhanden
_ Einzelgarage mit direktem Zugang zum Haus + zwei Außenstellplätze
_ zusätzlicher Stauraum auf dem Garagendach
_ Grundstück vollständig entwässert, inkl. Drainageanlage
_ moderne LED-Außenstrahler mit Bewegungsmeldern rund ums Haus
_ Beheizung über moderne Gasbrennwerttherme (Wolf, Baujahr 2023)
_ attraktives Gesamtpaket aus gepflegtem Ambiente, flexibler Nutzung und Entwicklungspotenzial
_ hervorragende Lösung für langfristiges Wohnen mit Raum für Veränderung und Ausbau
Lage
Dieses attraktive Einfamilienhaus liegt im lebhaften und verkehrsgünstig angebundenen Stadtteil Eidelstedt im Westen Hamburgs.
Die Nachbarschaft zeichnet sich durch eine gelungene Mischung aus modernen Neubauten, klassischen Einfamilienhäusern und Mehrfamilienhäusern aus. Hier profitieren Sie von einer hervorragenden Infrastruktur und einem vielfältigen Freizeitangebot.
Das nahegelegene Eidelstedt-Center sowie zahlreiche Supermärkte und Fachgeschäfte sorgen für bequeme Einkaufsmöglichkeiten im Alltag. Abgerundet wird das Angebot durch eine Auswahl an Restaurants, Cafés und Dienstleistern – alle Angebote sind bequem zu Fuß zu erreichen.
Die Verkehrsanbindung lässt keine Wünsche offen: Die S-Bahn-Station Eidelstedt ist in wenigen Minuten erreichbar und wird von mehreren Linien bedient. Zudem befindet sich der Busbahnhof am Eidelstedter Platz in unmittelbarer Nähe und ermöglicht eine schnelle Verbindung in alle Richtungen Hamburgs. Zwei Buslinien befinden ca. 50 m vom Grundstück entfernt. Für Autofahrer sind die Anschlussstellen zur A7 und A23 schnell erreichbar, was eine unkomplizierte Fahrt in die Stadt und ins Umland gewährleistet.
Die unkomplizierte Erreichbarkeit von Schulen, Kitas und medizinischen Einrichtungen macht das Leben für Familien hier besonders angenehm. Für Erholung im Grünen sorgt der Krupunder See, der sich hervorragend für Spaziergänge und Freizeitaktivitäten anbietet.
Das ruhige Wohnumfeld mit einer freundlichen Nachbarschaft macht dieses Haus zu einem idealen Zuhause für alle, die urbane Lebensqualität mit entspannter Wohnatmosphäre verbinden möchten.
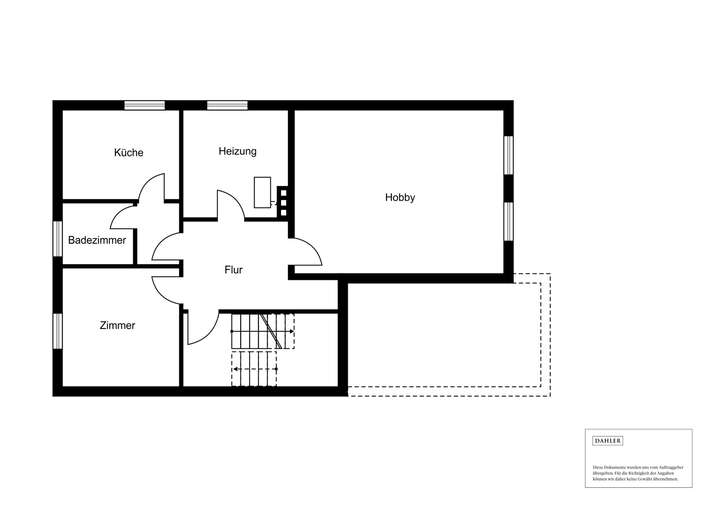
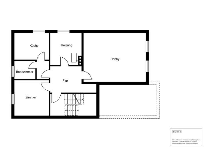
Grundriss
Erdgeschoss
>
>
Obergeschoss
>
>
Keller
>
>
Adresse
22523 Hamburg
Interessante Orte
Preis- und Lageinformationen
Preistrend für Bestandsimmobilien in Eidelstedt