In einer der begehrtesten und exklusivsten Lagen von Königstein im Taunus präsentiert sich dieses außergewöhnliche Anwesen, welches aktuell noch mit einer Immobilie bebaut ist. Diese verfügt über eine gute Grundsubstanz und kann saniert bzw. auch erweitert werden.
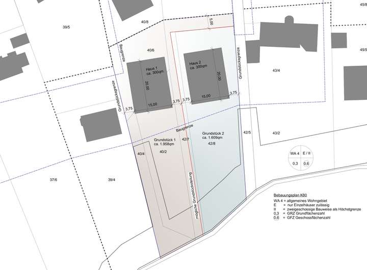
Alternativ bietet das 3.567 m² große Grundstück auch beste Voraussetzungen für eine Neubebauung bzw. die Erfüllung ganz verschiedener Wohnträume. Der für das Wohngebiet in Aufstellung befindliche Bebauungsplan sieht eine sehr großzügige Neubebauung vor – eine seltene Gelegenheit in dieser ganz besonderen Villenlage direkt am Naturschutzgebiet.
Es besteht die Möglichkeit, das Grundstück zu teilen und mit zwei Villen zu bebauen. Es ergeben sich dann Grundstücksgrößen von 1.864 m² und 1.703 m².
Teilbares Traumgrundstück mit perfekter Sonnenausrichtung in bester Blick- und Ruhelage
61462 Königstein im Taunus
Die vollständige Adresse der Immobilie erhalten Sie vom Anbieter.
Auf Karte anzeigen
Die vollständige Adresse der Immobilie erhalten Sie vom Anbieter.
Finanzierungszertifikat
In nur zwei Minuten zu Ihrem persönlichen Finanzierungszertifkat.
Infos
| Vermarktungsart | Kaufen |
|---|---|
| Grundstücksfläche | 3.567 m2 |
| Verfügbar ab | Nach Vereinbarung |
Kosten
| Miete pro Jahr |
3.180.000 € |
|---|---|
| Provision |
3,57 % inkl. gesetzlicher MwSt. von aktuell 19 % bezogen auf den Kaufpreis |
Finanzierungsrechner:
Kaufpreis:
600.000 €
Eigenkapital:
600.000 €
Monatliche Rate
0 €
Effektiver Jahreszins
0 %
Sollzinsbindung
10 Jahre
Beschreibung des Objekts
Lage
Königstein im Taunus zählt seit jeher zu den begehrtesten Wohnadressen im Rhein-Main-Gebiet und vereint auf einzigartige Weise ländliche Idylle mit urbaner Nähe. Eingebettet in eine sanfte Hügellandschaft, geprägt von viel Grün, alten Baumbeständen und stilvollen Villen, bietet die Stadt eine erstklassige Lebensqualität, die gerade Familien mit hohen Ansprüchen begeistert. Die Verbindung aus naturnahem Wohnen, exzellenter Infrastruktur und einem lebendigen, kulturellen Angebot schafft hier ein Umfeld, das sowohl Ruhe als auch Vielfalt auf höchstem Niveau garantiert.
Im Herzen dieses exklusiven Wohnumfelds liegt die zum Verkauf stehende Immobilie in einer der elegantesten und ruhigsten Straßen Königsteins. Hier reihen sich prachtvolle Einfamilienhäuser und Villengrundstücke aneinander, die geprägt sind von architektonischer Qualität, großzügigen Gartenanlagen und einer gewachsenen, sympathischen Nachbarschaft. Die Lage besticht durch ihre absolute Privatsphäre und ihre geschützte Lage, die ein hohes Maß an Sicherheit und Geborgenheit für die ganze Familie bietet.
Die unmittelbare Nähe zu erstklassigen internationalen und deutschen Schulen sowie zu renommierten Sport- und Freizeitmöglichkeiten machen die Lage der Immobilie besonders attraktiv für Familien, die Wert auf eine ausgewogene Balance aus Bildung, Freizeit und Erholung legen. Gleichzeitig ist die Königsteiner Innenstadt mit ihren hochwertigen Einkaufsmöglichkeiten, exquisiten Restaurants und charmanten Cafés in wenigen Minuten erreichbar.
Die hervorragende Verkehrsanbindung – ob per Auto, Bahn oder Flughafen – ermöglicht eine stressfreie Erreichbarkeit der Metropolregion Frankfurt sowie der wichtigsten nationalen und internationalen Ziele. So verschmilzt in dieser Lage das Beste aus zwei Welten: ein exklusives, naturverbundenes Wohngefühl in einer der schönsten Lagen des Taunus, gepaart mit urbaner Flexibilität und Komfort.
Für Familien mit höchsten Ansprüchen an Stil, Exklusivität und Lebensqualität zählt die Lage der zum Verkauf stehenden Immobilie in Königstein zu den begehrtesten und nachhaltig wertbeständigen Wohnadressen – ein Refugium, das großzügigen Freiraum für individuelle Entfaltung, uneingeschränkte Privatsphäre und zeitgemäßes Wohnen auf höchstem Niveau gewährleistet.