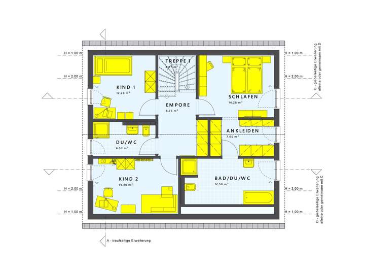
Das Einfamilienhaus in Plau am See ist ein wahres Meisterwerk, das nach deinen persönlichen Wünschen und Vorstellungen projektiert wird. Mit einer großzügigen Wohnfläche von 110 m² und vier Zimmern, darunter 3 Schlafzimmer und zwei Badezimmer, bietet es ausreichend Platz für die ganze Familie. Die Architektur besticht durch ein klassisches Satteldach, das nicht nur zeitlos elegant wirkt, sondern auch optimalen Wohnkomfort bietet. Der Panorama-Erker mit seinen großen Fenstern lässt viel Tageslicht ins Innere strömen und eröffnet dir einen traumhaften Blick auf die Umgebung. Der Zwerchgiebel mit Flachdach schafft zusätzlich einen vergrößerten Wohnraum im Obergeschoss, wo du die gesamte Deckenhöhe perfekt ausnutzen kannst.
LivingHaus bietet dir außerdem zahlreiche zusätzliche Dienstleistungen, die dein Eigenheim noch komfortabler machen. Die hochwertige Traumküche von LivingHaus wird individuell auf deinen Grundriss abgestimmt und kommt mit modernster Technik sowie cleveren Stauraumlösungen. So kannst du direkt nach dem Einzug in deinem neuen Zuhause kulinarische Köstlichkeiten zaubern. Mit dem LivingHaus Bau-Cockpit behältst du außerdem jederzeit den Überblick über dein Bauprojekt. Diese digitale App ermöglicht dir den Zugriff auf alle wichtigen Informationen, von der Dokumentenverwaltung bis zum Zeitplan, und macht so den Bauprozess stressfrei.
Mit I-KON - Intelligentes Bauen integrierst du nachhaltige Techniken in dein Zuhause, sodass es energieeffizient und umweltfreundlich ist. Für die Finanzierung steht dir das Zuhause-Darlehen zur Verfügung, das dir bis zu 250.000 EUR zu einem besonders günstigen Zinssatz bietet. Das Zuhause-Paket garantiert dir eine hochwertige Grundausstattung, die moderne Böden, edle Türen und stilvolle Sanitäranlagen umfasst. Und wenn du selbst Hand anlegen möchtest, bietet dir das DIY-Ausbau-Coaching die Möglichkeit, in nur drei Tagen von Experten zu lernen, wie du deinen Innenausbau selbst meisterst.
Plau am See - Deine Zukunft in Deinem Traumhaus mit LivingHaus !
19395 Plau am See
Die vollständige Adresse der Immobilie erhalten Sie vom Anbieter.
Auf Karte anzeigen
Die vollständige Adresse der Immobilie erhalten Sie vom Anbieter.
Finanzierungszertifikat
In nur zwei Minuten zu Ihrem persönlichen Finanzierungszertifkat.
Infos
| Haustyp | Einfamilienhaus |
|---|---|
| Wohnfläche ca. | 110 m2 |
| Grundstücksfläche | 594 m2 |
| Zimmer | 5 |
| Schlafzimmer | 4 |
| Badezimmer | 2 |
Kosten
| Kaufpreis |
507.070 € |
|---|
Finanzierungsrechner:
Kaufpreis:
600.000 €
Eigenkapital:
600.000 €
Monatliche Rate
0 €
Effektiver Jahreszins
0 %
Sollzinsbindung
10 Jahre
Bausubstanz & Energieausweis
| Baujahr | 2026 |
|---|---|
| Bauphase | Haus in Planung (projektiert) |
| Qualität der Austattung | Luxus |
| Energieausweis | liegt vor |
| Energieausweistyp | Bedarfsausweis |
| Energieverbrauchskennwert | 18,0 kWh/(m²*a) |
| Energieeffizienzklasse | A+ |
18,0
kWh/(m²*a)
Energieeffizienzklasse A+
- A+
- A
- B
- C
- D
- E
- F
- G
- H
- 0
- 25
- 50
- 75
- 100
- 125
- 150
- 175
- 200
- 225
- >250
Beschreibung des Objekts
Ausstattung
Die Ausstattung deines zukünftigen Zuhauses ist durchdacht und individuell planbar. Du erhältst eine hochwertige Traumküche, die perfekt auf deinen Grundriss zugeschnitten ist. Im Zuhause-Paket sind moderne Böden, edle Türen, stilvolle Sanitäranlagen sowie Fliesen im gesamten Erdgeschoss und bodengleiche Duschen mit Echtglasabtrennung enthalten. Dank der modernen Wärmepumpentechnik mit Komfortlüftung und Wärmerückgewinnung hast du immer ein angenehmes Raumklima. Die integrierte PV-Anlage mit Speicherbatterie von I-KON sorgt für eine umweltfreundliche Energieversorgung. Du profitierst von 30 Jahren Garantie auf die Grundkonstruktion des Gebäudes sowie von umfangreichen Bauversicherungen, die dich bei unvorhergesehenen Ereignissen absichern. Dank des hohen Vorfertigungsgrads wird der Bauprozess effizient gestaltet, und du kannst alles aus einer Hand bekommen. Dein individuelles Zuhause wird so zum perfekten Ort für dich und deine Familie - Dein "Wie ich es will Fertighaus".
Lage
Plau am See ist ein idyllischer Ort, der alles bietet, was du für ein erfülltes Leben benötigst. In der Umgebung findest du eine Vielzahl an Bildungseinrichtungen, darunter Grundschulen und weiterführende Schulen, die für eine optimale Versorgung deines Nachwuchses sorgen. Kindergärten sind ebenfalls zahlreich vorhanden und bieten liebevolle Betreuung für die Kleinsten. Die medizinische Versorgung ist durch mehrere Arztpraxen und eine Apotheke in der Nähe gesichert, sodass du immer schnell Hilfe bekommst, wenn du sie benötigst.
Für den täglichen Einkauf stehen dir mehrere Supermärkte zur Verfügung, darunter Edeka und Netto, die gut erreichbar sind. Das Freizeitangebot in Plau am See ist ebenfalls bemerkenswert. Der Plauer See lädt zum Schwimmen, Segeln und Angeln ein und bietet zahlreiche Wander- und Radwege für Naturliebhaber. In der Umgebung findest du auch diverse Spielplätze und Sporteinrichtungen, die besonders für Familien attraktiv sind. Die Anbindung an den öffentlichen Nahverkehr sowie die Autobahn sind hervorragend, wodurch Pendler schnell in die umliegenden Städte gelangen können. Plau am See vereint somit die Vorzüge eines ruhigen Lebens mit den Annehmlichkeiten einer guten Infrastruktur und ist der perfekte Ort für dein neues Zuhause.
Sonstige Angaben
Das hier angebotene Grundstück ist im obigen Preis eingerechnet, es wird ohne zusätzliche Provision an einen Living Haus-Bauherren bereitgestellt.
Zusätzliche Baunebenkosten müssen noch hinzugerechnet werden, hierüber beraten wir dich gern.
Wir bieten auch interessante Finanzierungsmöglichkeiten inklusive Beantragung aller Fördermittel!
Die Hausabbildungen und die Bilder der Inneneinrichtung zeigen möglicherweise Extras, die nicht im angegebenen Kaufpreis inbegriffen sind.
Gute Beratung ist der Anfang von Allem. Deshalb analysieren wir gemeinsam mit euch eure Vorstellungen, Wünsche und Bedürfnisse und finden so das für Dich und Deine Familie passende Living Haus.
Interessiert? Kontaktiere mich und vereinbare noch heute einen kostenlosen und unverbindlichen Beratungstermin unter +49 0176/21774090
.
Adresse
19395 Plau am See
Interessante Orte
Preis- und Lageinformationen
Preistrend für Bestandsimmobilien in Plau am See