Eingebettet in eine sehr ruhige Wohngegend nahe Meerane liegend, befindet sich das im Jahr 1934 erbaute entzückende Einfamilienhaus in Tettau.
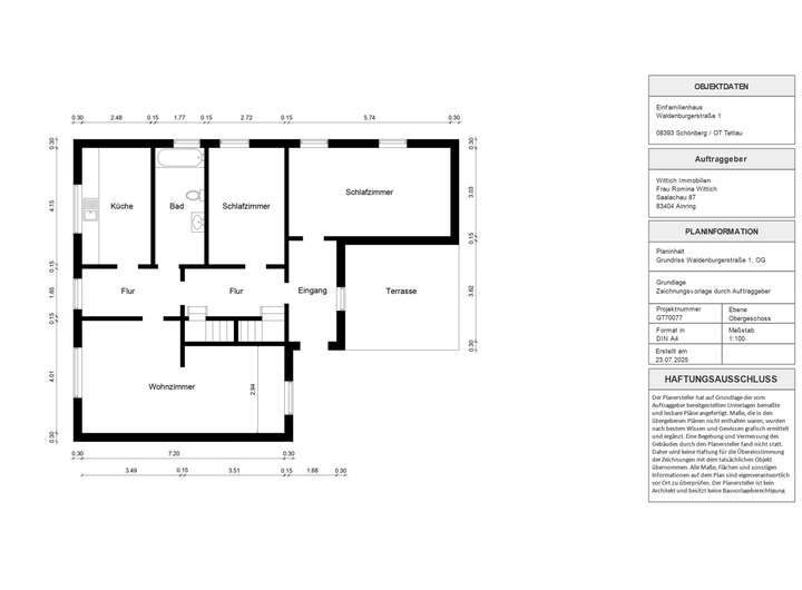
Das Haus berfindet sich dirket an einer weniger stark befahrenen Straße und garantiert somit friedvolles Wohnen. Hinter dem Haus gelegen ist ein schöner familienfreundlicher idyllischer Garten der einige Optionen der Gestaltung offen lässt. Vom Garten über die Terrasse gelangen Sie in das Obergeschoss, welches zuletzt noch bewohnt wurde und Ihnen ein Schlafzimmer, Wohnzimmer mit Essbereich und Kaminanschluss, Küche und Bad bietet. Das Erdgeschoss ist vielseitig nutzbar, derzeit ist eine Küche, Bad, Schlafzimmer, Wohnzimmer mit Kaminanschluss und Arbeitszimmer vorhanden, welches bei bedarf so genutzt werden kann aber auch nur als Schlaf-Arbeits- oder Gästebereich. Vor dem Haus finden Sie auf dem Grundstück mindestens zwei bis drei Parkmöglichkeiten. Das großzügige Dachgeschoss gibt Ihnen die Möglichkeit zur Erweiterung der Wohnfläche.
Nimm mich! Liebenswürdiges Einfamilienhaus mit Sanierungsbedarf.
08393 Schönberg
Die vollständige Adresse der Immobilie erhalten Sie vom Anbieter.
Auf Karte anzeigen
Die vollständige Adresse der Immobilie erhalten Sie vom Anbieter.
Finanzierungszertifikat
In nur zwei Minuten zu Ihrem persönlichen Finanzierungszertifkat.
Infos
| Haustyp | Einfamilienhaus |
|---|---|
| Etagenzahl | 2 |
| Wohnfläche ca. | 122 m2 |
| Nutzfläche | 74 m2 |
| Grundstücksfläche | 543 m2 |
| Zimmer | 6 |
| Schlafzimmer | 4 |
| Badezimmer | 2 |
| Garage/Stellplatz | Außenstellplatz |
| Anzahl Garage/Stellplatz | 2 |
Kosten
| Kaufpreis |
55.000 € |
|---|---|
| Provision |
3000 € zzgl. MwSt. |
Finanzierungsrechner:
Kaufpreis:
600.000 €
Eigenkapital:
600.000 €
Monatliche Rate
0 €
Effektiver Jahreszins
0 %
Sollzinsbindung
10 Jahre
Bausubstanz & Energieausweis
| Baujahr | 1934 |
|---|---|
| Objektzustand | Renovierungsbedürftig |
| Qualität der Austattung | Einfach |
| Heizungsart | Etagenheizung |
| Wesentliche Energieträger | Strom |
| Energieausweis | liegt vor |
| Energieausweistyp | Bedarfsausweis |
| Energieverbrauchskennwert | 365,4 kWh/(m²*a) |
| Energieeffizienzklasse | H |
365,4
kWh/(m²*a)
Energieeffizienzklasse H
- A+
- A
- B
- C
- D
- E
- F
- G
- H
- 0
- 25
- 50
- 75
- 100
- 125
- 150
- 175
- 200
- 225
- >250
Beschreibung des Objekts
Ausstattung
- OG teilweise Gasbetoninnendämmung
- Elektroheizung 1998/Nachtspeicher und Holz
- Durchlauferhitzer im Bad
- teilw. Holz und Kunststofffenster
- Biologische Kläranlage
- zwei bis drei Außenstellplätze
- Balkon und Terrasse
- Schuppen und Werkstatt
- Horizontalsperre von ca. 2021
- mehrere Schuppen und Lagermöglichkeiten
- ein Wein-oder Lagerkeller
Lage
Im nördlichen Gemeindegebiet von Schönberg liegt der kleine Ort Tettau des Freistaates Sachsens angrenzend zum Altenburger Land in Thüringen. Beliebt ist Tettau auch durch die jährliche hochrangige Mototsportveranstaltung. Die umliegenden Städte wie Meerane oder Altenburg gewährt Ihnen Einkaufsmöglichkeiten des täglichen Bedarfs, verschiedene Ärzte, Schulen, Kindergärten oder Baustoffversorgung. Dazu auch gleich anliegend die Autobahn A4 in Richtung Chemnitz, Dresden, Leipzig oder Gera.
Sonstige Angaben
Bitte beachten Sie, dass wir nur Anfragen mit vollständigen Kontaktdaten berücksichtigen können.
Besichtigungen nach vorheriger Absprache mit unseren Mitarbeitern.
Alle Angaben laut Auskunft des Verkäufers. Eine Haftung unsererseits für die hier gemachten Angaben kann nicht übernommen werden.
Weitere Informationen finden Sie in unserem ausführlichen Exposé.
Bei Interesse sind wir jederzeit gern für Sie zu erreichen.
Wir freuen uns auf Ihre Kontaktaufnahme.
Adresse
08393 Schönberg
Interessante Orte
Preis- und Lageinformationen
Preistrend für Bestandsimmobilien in Schönberg