In Toplage von Krefeld-Bockum befindet sich dieses attraktive Baugrundstück. Das Grundstsück ist mit einem freistehenden Einfamilienhaus aus den 50er Jahren bebaut, welches abgerissen werden müsste. Es ist voll erschlossen und bietet beste Infrastruktur. Das Baufenster ist 12 m breit und 24 m tief. Eine fertige Planung für ein 2-geschossiges 8-Familienhaus mit Staffelgeschoss und ca. 600 m² Wohnfläche kann angeboten werden.
Folgende Bebauungsmöglichkeiten sind denkbar:
+ 4-8 Familienhaus
+ Doppelhaus
+ freistehendes 1-2 Familienhaus
Der Bodenrichtwert liegt bei € 630/m²!
Für weitere Informationen und Grundstücksbesichtigungen stehen wir gerne zur Verfügung.
Das Gebäude ist bis auf die Bäder und die Gaszentralheizung im ursprünglichen Zustand des Baujahres. Bei Erhalt des Gebäudes wären somit eine umfassende Modernisierung sowie eine energetische Sanierung notwendig. Das Haus steht ca. 20 m entfernt von der Straße, es kann auch entsprechend dem Baufenster mit einem ca. 24 m tiefen und ca. 12 m breiten Gebäude bebaut werden. Linker Hand befindet sich auf dem großen Grundstück eine Doppelgarage, rechts hinter dem Gebäude eine weitere Einzelgarage.
Zur Aufteilung
Das Erdgeschoss bietet einen Eingangsbereich mit integrierter Garderobe und einem Gäste-WC. Geradeaus gelangen Sie in die wunderbar große Essdiele, diese ist mit einem offenen Kamin versehen - perfekt für gemütliches Zusammensein am großen Esstisch. Diesem schönen Bereich schließt sich auf der einen Seite die Küche an (perfekt: hier gibt es einen Zugang nach draußen) sowie der großzügige Wohnbereich. Auch dieser bietet Ihnen reichlich Platz - nicht nur für Ihre Wohnlandschaft und TV-Möbel , sondern auch für einen weiteren großen Esstisch. Vom Wohnbereich gelangen Sie zur straßenseitigen Südterrasse, von der Essdiele und der Küche aus zur Nordterrasse Richtung Garten.
Passen Sie also einfach Ihre Draußenzeit dem Sonnenverlauf an!
Eine gewendelte Betontreppe führt ins Obergeschoss, das ein schönes Raumprogramm für eine Familie mit 2 Kindern bietet. Es stehen 3 Zimmer, ein Tageslichtbad und ein separates WC zur Verfügung. Ideal: Zwei der Schlafzimmer bieten Zugang zum Südbalkon.
Dachgeschoss
Das Dachgeschoss ist nicht ausgebaut, aber ausbaufähig, eine Dämmung ist nicht vorhanden.
Krefeld-Bockum: Top-Baugrundstück für MFH oder Doppelhaus in Bestlage
47800 Krefeld
Die vollständige Adresse der Immobilie erhalten Sie vom Anbieter.
Auf Karte anzeigen
Die vollständige Adresse der Immobilie erhalten Sie vom Anbieter.
Finanzierungszertifikat
In nur zwei Minuten zu Ihrem persönlichen Finanzierungszertifkat.
Infos
| Vermarktungsart | Kaufen |
|---|---|
| Grundstücksfläche | 1.122 m2 |
| Verfügbar ab | nach Absprache |
Kosten
| Miete pro Jahr |
598.000 € |
|---|---|
| Provision |
3,57 % incl. MwSt. Käufercourtage |
Finanzierungsrechner:
Kaufpreis:
600.000 €
Eigenkapital:
600.000 €
Monatliche Rate
0 €
Effektiver Jahreszins
0 %
Sollzinsbindung
10 Jahre
Beschreibung des Objekts
Lage
Top-Wohnlage inmitten des begehrten Wohnviertels Bockum.
Zahlreiche Grünflächen prägen das Gesamtbild: Der Kaiserpark, Schönwasserpark, Schönhausenpark und nicht zuletzt der Stadtwald mit seinem vielfältigen Sport- und Freizeitangebot (Golf, Tennis, Hockey, Pferderennbahn). Direkt angrenzend befindet sich ein Grüngürtel, der sich bis zum Stadtwald zieht. Ein herrlich angelegter Radweg lädt dazu ein. Gegenüber - aber doch in ausreichender Entfernung - befindet sich der Tennisclub "Krefelder Tennisgesellschaft 1926 e.V.".
Der Krefelder Zoo ist über die Stadtgrenzen hinaus bekannt und beliebt. Das Badezentrum mit Hallen- und Freibad ist bei Jung und Alt gefragt. Zudem bietet Bockum eine sehr gute Infrastruktur. Alle Einkaufsmöglichkeiten für den täglichen Bedarf, Ärzte und Apotheken können bequem erreicht werden. Kindergärten, Grundschulen und weiterführende Schulen befinden sich in familienfreundlicher Nähe.
Sonstige Angaben
Aufteilung des bestehenden Gebäudes:
EG
Wohnen 49 m²
Essdiele 15 m²
Gäste-WC 4,5 m²
Küche 11 m²
Terrasse Südseite 14 m² (3,5 m² anteilig)
Terrasse Nordseite 40 m² (10 m² anteilig)
OG
Büro 11 m²
Gäste-WC 2,5 m²
Eltern 19 m²
Diele 4 m²
Kind 1 10,5 m²
KInd 2 19 m²
Balkon 10 m² (anteilig 5 m²)
gesamt 164 m²
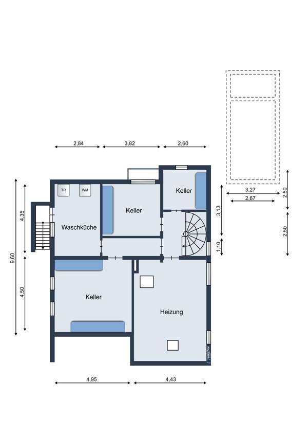
Grundriss
KG
>
>
EG
>
>
DG
>
>