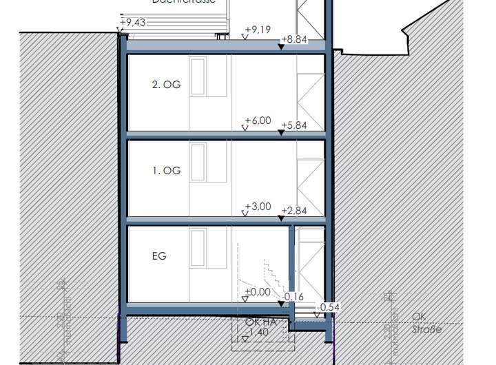
Es handelt sich hierbei um ein ca. 70 m² großes und attraktiv gelegenes Baugrundstück in bester Lage am Wöhrder See in Nürnberg. Das Grundstück kann mit einem ansehnlichen Stadthaus und einer atemberaubenden Dachterrasse bebaut werden. Dies wurde bereits 2016 von der Stadt Nürnberg genehmigt. Das bereits voll erschlossene Grundstück lässt sich ohne weitere, zusätzliche Erschließungsmaßnahmen bebauen. Die Bebauung richtet sich nach dem, für das Gebiet, zugrunde liegenden Bebauungsplan, welchen wir Ihnen gerne bei weiterem Interesse zur Verfügung stellen. Gerne beraten wir Sie zu den verschiedenen Nutzungsmöglichkeiten des charmanten Grundstücks. Vereinbaren Sie mit uns hierzu einfach einen individuellen Termin. Wir freuen uns auf Sie!
HEGERICH: Projektiertes Baugrundstück in steinwurfnähe zum Wöhrder See!
90489 Nürnberg
Die vollständige Adresse der Immobilie erhalten Sie vom Anbieter.
Auf Karte anzeigen
Die vollständige Adresse der Immobilie erhalten Sie vom Anbieter.
Finanzierungszertifikat
In nur zwei Minuten zu Ihrem persönlichen Finanzierungszertifkat.
Infos
| Vermarktungsart | Kaufen |
|---|---|
| Grundstücksfläche | 70 m2 |
| Geschossflächenzahl (GFZ) | 0.1 |
Kosten
| Miete pro Jahr |
180.000 € |
|---|---|
| Provision |
3,57% inkl. ges. MwSt. |
Finanzierungsrechner:
Kaufpreis:
600.000 €
Eigenkapital:
600.000 €
Monatliche Rate
0 €
Effektiver Jahreszins
0 %
Sollzinsbindung
10 Jahre
Beschreibung des Objekts
Lage
Das höchst attraktive Grundstück liegt in Wöhrd, einer der beliebtesten Lagen der Stadt Nürnbergs. Wöhrd gehört aufgrund seiner Nähe zum Wöhrder See und auch wegen den zahlreichen Altbauten zu den wohlhabenderen Innenstadtvierteln von Nürnberg. Die angrenzende Wöhrder Wiese wird oft von Freizeitsportlern oder Ruhesuchenden genutzt. Die Grünfläche eignet sich ideal für Spaziergänge, als auch zum Joggen und Radfahren. Das Erfahrungsfeld der Sinne befindet sich in unmittelbarer Nähe und lädt in der Zeit von Mai bis September zum Verweilen ein. Mit den nahegelegenen Bushaltestellen erreichen Sie die Nürnberger Altstadt und den Hauptbahnhof in kürzester Zeit. Alle wichtigen Einrichtungen des täglichen Bedarfs sind ebenfalls einen Katzensprung entfernt und fußläufig erreichbar.
Sonstige Angaben
Ihr Vertriebsteam der Hegerich Immobilien GmbH steht Ihnen zur Beantwortung Ihrer Fragen oder zur Vereinbarung eines Beratungstermins jederzeit gerne zur Verfügung.
Trotz sorgfältiger Aufarbeitung und regelmäßiger Prüfung der Daten und Unterlagen übernehmen wir keine Haftung für die Richtigkeit der Angaben.
Unser vollständiges Immobilienangebot sowie weitere Informationen rund um die Immobilie finden Sie auf unserer Webseite.
Gerne unterstützen wir Sie auch beim Verkauf oder bei der Vermietung Ihrer Immobilie.
Kontaktieren Sie uns unter der Tel. 0911 131 605 0 oder besuchen Sie unsere Homepage www.hegerich-immobilien.de.
SIE MÖCHTEN WISSEN, WAS IHRE IMMOBILIE WERT IST?
Berechnen Sie auf nachfolgendem Link selbst einen eventuellen Verkaufs- oder Mietpreis Ihres Objekts!
- Ergebnisbericht umgehend per E-Mail
- Kostenlos und unverbindlich
- Wissenschaftlich fundiert
Grundriss
Grundriss Erdgeschoss
>
>
Grundriss 1. Obergeschoss
>
>
Grundriss 2. Obergeschoss
>
>