Urbanität in historischer Atmosphäre und die Naherholung vor der Haustür. QNG-zertifizierte Eigentumswohnungen an der Ems!
In bevorzugter innenstadtnaher Lage, wo einst die Textilindustrie beheimatet war, entsteht in Zusammenarbeit mit dem renommierten Bauträger Büscher & Büscher GmbH & Co. KG ein architektonisch anspruchsvolles und QNG-zertifiziertes Neubauvorhaben für Jung und Alt!
Das Quartier 1, bestehend aus drei Baukörpern im angesagten urbanen Baustil, wird im gefragten „EmsAuenQuartier“ in direkter Nähe zur Ems errichtet und wird wegweisend für das zukünftige Wohnen in Rheine sein. Die moderne Fassadengestaltung mit Wandflächen- und Dachflächenbegrünung verbindet industrielles Flair mit ökologisch bewusster Architektur. Große, bodentiefe Fenster sorgen für viel natürliches Licht und ein helles, modernes Wohngefühl. Als Heizungsanlage wird eine energieeffiziente Luft-Wärmepumpe mit einem Warmwasserspeicher und einer unterstützenden Photovoltaikanlage installiert. Verbunden werden die drei Wohnhäuser, welche selbstverständlich jeweils einen eigenen Aufzug erhalten, über eine gemeinsame Tiefgarage.
...
Weitere Informationen zu dieser Immobilie erhalten Sie über das Kopieren der nachfolgenden Adresse unserer Webseite: www.volksbank-immobilien.info/immobilienangebote/?sort=rank&cid=20126_18
Urbanität in historischer Atmosphäre: QNG-zertifizierte Eigentumswohnungen an der Ems!
48429 Rheine
Die vollständige Adresse der Immobilie erhalten Sie vom Anbieter.
Auf Karte anzeigen
Die vollständige Adresse der Immobilie erhalten Sie vom Anbieter.
Finanzierungszertifikat
In nur zwei Minuten zu Ihrem persönlichen Finanzierungszertifkat.
Infos
| Wohnungskategorie | Penthouse |
|---|---|
| Etage | 4 von |
| Wohnfläche ca. | 122 m2 |
| Bezugsfrei ab | nach Fertigstellung |
| Zimmer | 4 |
| Schlafzimmer | 2 |
| Badezimmer | 1 |
| Garage/Stellplatz | Tiefgarage |
| Anzahl Garage/Stellplatz | 2 |
Kosten
| Kaufpreis |
598.000 € |
|---|---|
| Provision |
3,00 % inkl. gesetzl. MwSt. vom Käufer |
Finanzierungsrechner:
Kaufpreis:
600.000 €
Eigenkapital:
600.000 €
Monatliche Rate
0 €
Effektiver Jahreszins
0 %
Sollzinsbindung
10 Jahre
Bausubstanz & Energieausweis
| Baujahr | 2025 |
|---|---|
| Qualität der Austattung | Gehoben |
| Heizungsart | Wärmepumpe |
| Energieausweis | laut Gesetz nicht erforderlich |
Beschreibung des Objekts
Ausstattung
- Fassadenbegrünung
- min. 1 Tiefgaragenstellplatz pro Wohnung
- alle Wohnungen sind barrierefrei geplant
- Abstellraum mit Anschlüssen für Waschmaschine und Trockner
- KFW-40-NH-Standard mit QNG Zertifikat
- Luft-Wärmepumpe mit einem Warmwasserspeicher und einer unterstützenden Photovoltaikanlage
- elektrische Kunststoffrollläden
- Gemeinschaftssatellitenanlage mit jeweils drei Anschlussmöglichkeiten je Wohneinheit
- Fußbodenheizung mit Einzelraumsteuerung und Raumthermostaten ausgestattet
Lage
Mehr Region zwischen der Ems und dem Walshagenpark - Stadtteil von Rheine, rechts der Ems
- Ob zu Fuß, per Fahrrad oder mit dem PKW – das Baugebiet bietet den idealen Ausgangspunkt für Ihre Unternehmungen. Wählen Sie zwischen Spaziergang entlang der Emspromenade zum historischen Marktplatz oder der Erledigung von Einkäufen des täglichen Bedarfs unter der Nutzung der neu geschaffenen Geh- und Radwege im nahen Umfeld.
- Dieser Stadtteil ist nicht nur einer der größten Stadtteile mit beliebten Wohngebieten, sondern verfügt auch über das größte Gewerbe- und Industriegebiet der Stadt. Die dort angesiedelten Unternehmen sind bedeutende Arbeitgeber und Dienstleister wie die Bundeswehr und die Matthias Stiftung
- Einkaufsmöglichkeiten des täglichen Bedarfs, Ärzte und Apotheken im Stadtteil vorhanden
- Kindergärten, Grundschulen, Sekundarschule im Stadtteil vorhanden
- Zudem wird im EmsAuenQuartier eine LWL-Förderschule sowie eine vierzügige Kindertagesstätte entstehen
- Freizeit: Sportvereine, Walshagenpark nahe der Ems usw.
- bis zur Innenstadt Rheine oder Bahnhof ca. 2,2 km
- gute Busverbindung bis zur Innenstadt durch eigene Bushaltestelle nach Fertigstellung
Sonstige Angaben
Die Immobilienangebote verstehen sich freibleibend und unverbindlich. Zwischenverkauf ausdrücklich vorbehalten. Die Objektbeschreibungen wurde aufgrund der Angaben der Verkäufer erstellt. Für die Richtigkeit wird keine Haftung übernommen. Mit dem Eigentümer wurde vereinbart, dass Besichtigungen nur gemeinsam mit uns nach vorheriger Absprache durchgeführt werden.
WICHTIGER Hinweis!
Die von Kunden angefragten Exposés werden häufiger mal als SPAM gekennzeichnet. Daher bitten wir Sie auch in Ihrem SPAM-Ordner zu schauen, wenn Sie von uns ein Exposé erwarten.
Vielen Dank für Ihr Verständnis.
** WIR SUCHEN HÄUSER UND WOHNUNGEN FÜR VORGEMERKTE KUNDEN MIT VORHANDENER FINANZIERUNGSBESTÄTIGUNG **
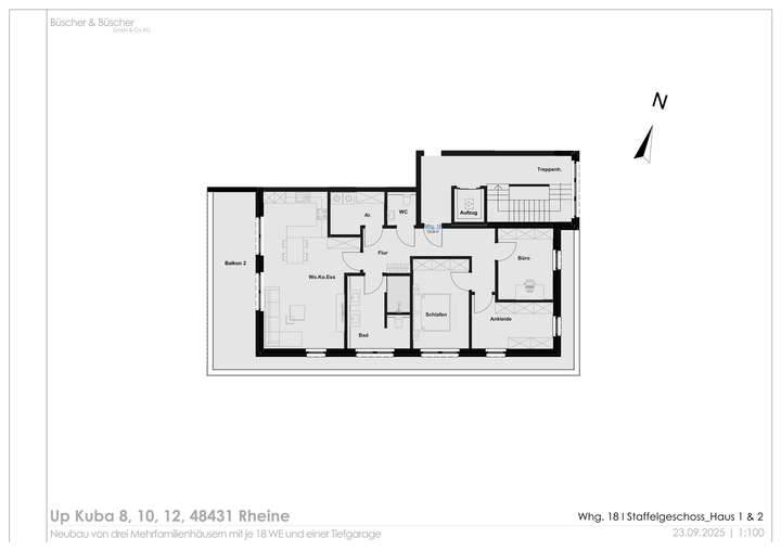
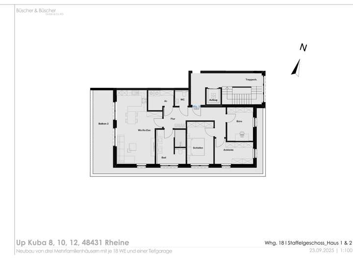
Grundriss
Wohnungsgrundriss
>
>
Übersichtsplan STG_H1+2
>
>
Adresse
48429 Rheine
Interessante Orte
Preis- und Lageinformationen
Preistrend für Bestandsimmobilien in Rheine