Die von uns angebotene Doppelhaushälfte wurde im Jahr 1986 umfassend umgebaut und bietet heute eine durchdachte Raumaufteilung über vier Etagen.
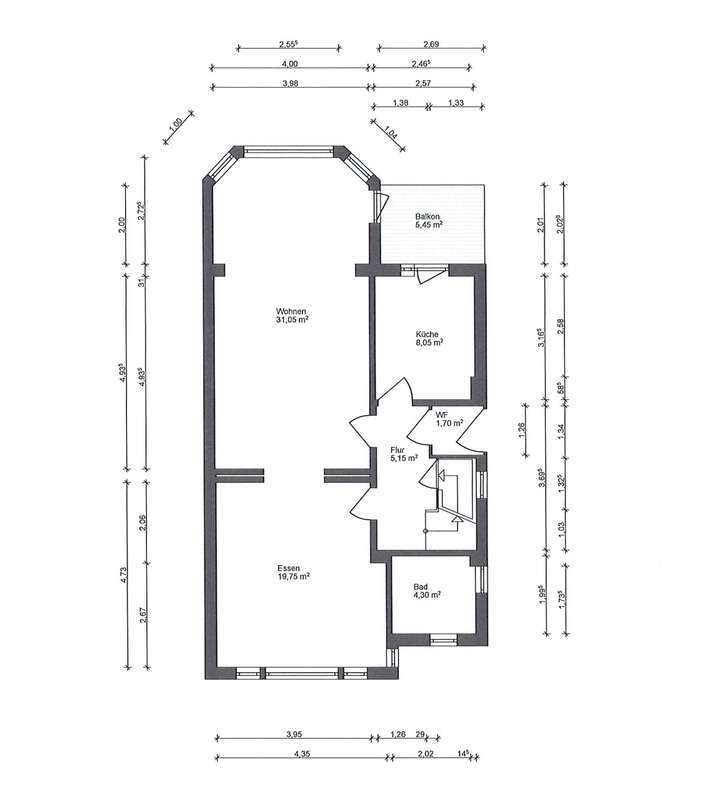
Das Hochparterre besticht durch eine klassische Raumaufteilung mit einem großzügigen Wohn- und Essbereich, der durch eine stilvolle Schiebetür flexibel voneinander getrennt oder offen gestaltet werden kann. Die angrenzende Küche ist funktional geschnitten und bietet – ebenso wie das Wohnzimmer – direkten Zugang zum Balkon. Diese durchdachte Verbindung der Räume schafft eine helle, offene Wohnatmosphäre und sorgt füreine angenehme Wohnqualität. Ebenso befindet sich ein modernes Badezimmer auf dieser Ebene.
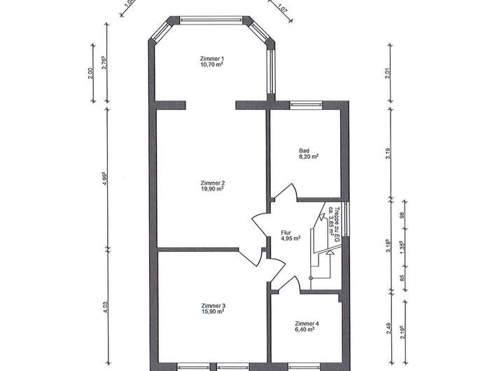
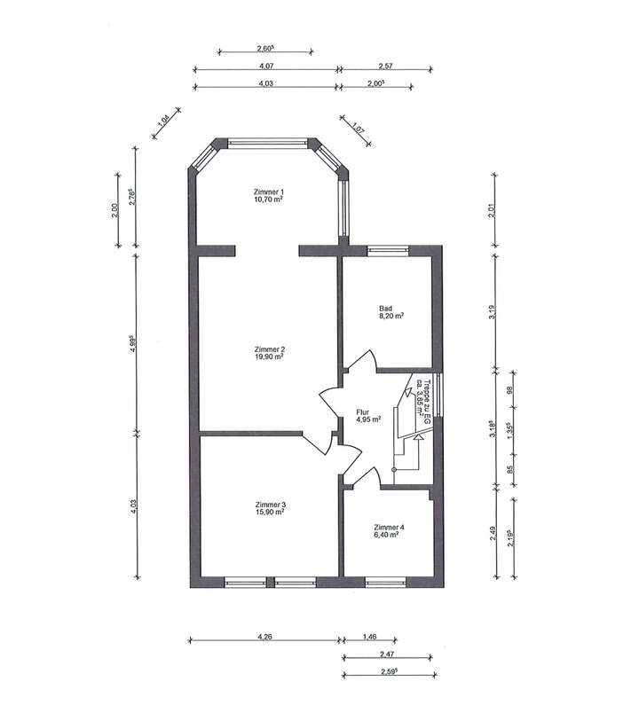
Im Obergeschoss finden sich zwei Schlafzimmer sowie ein kleineres Zimmer wieder. Ein weiteres Badezimmer ergänzt das Raumangebot und sorgt für zusätzlichen Komfort – auch bei einer größeren Haushaltsgemeinschaft.
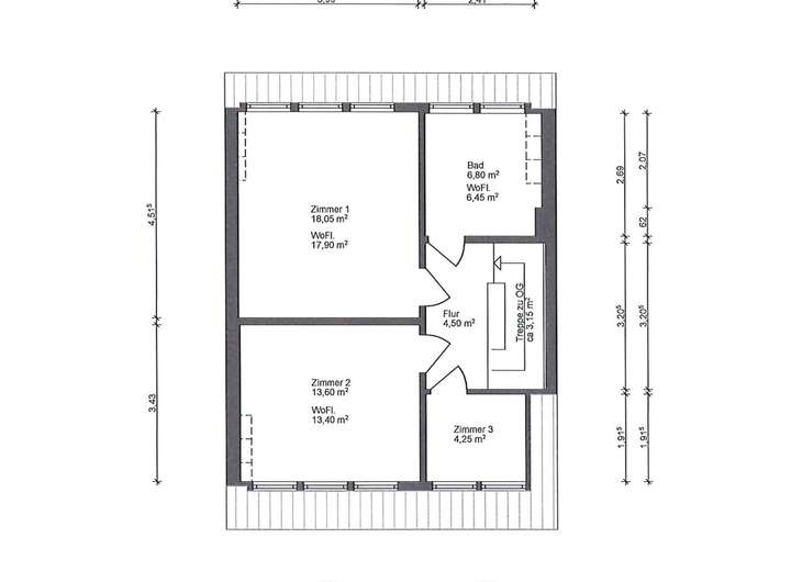
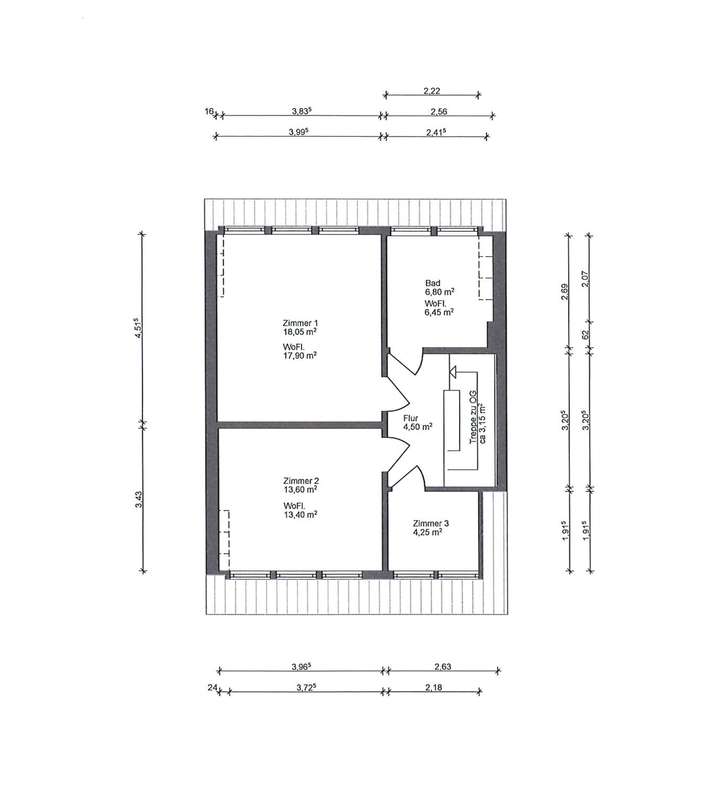
Das Dachgeschoss verfügt über drei weitere Zimmer sowie ein zusätzliches Bad mit Fenster. Die Räume lassen sich flexibel nutzen und bieten viel Platz für individuelle Wohnideen, sei es als ruhiger Rückzugsort, Arbeitsbereich oder separate Einheit für Gäste oder heranwachsende Kinder.
Ein Vollkeller mit integrierter Garage komplettiert dieses Ihnen vorliegende Angebot.
Die im hinteren Bereich liegende Doppelgarage bietet weitere Parkmöglichkeiten.
Doppelhaushälfte in hervorragender Lage von Schwachhausen
28211 Bremen
Die vollständige Adresse der Immobilie erhalten Sie vom Anbieter.
Auf Karte anzeigen
Die vollständige Adresse der Immobilie erhalten Sie vom Anbieter.
Finanzierungszertifikat
In nur zwei Minuten zu Ihrem persönlichen Finanzierungszertifkat.
Infos
| Haustyp | Einfamilienhaus |
|---|---|
| Wohnfläche ca. | 172 m2 |
| Nutzfläche | 94 m2 |
| Grundstücksfläche | 401 m2 |
| Bezugsfrei ab | EP-Nummer 33324/1 |
| Zimmer | 7 |
Kosten
| Kaufpreis |
695.000 € |
|---|---|
| Provision |
2,98 % incl. MwSt. vom Kaufpreis Provisionspflichtig für den Käufer! Unsere Objektangaben basieren auf den uns erteilten Informationen. Eine Haftung für die Richtigkeit und Vollständigkeit können wir deshalb nicht übernehmen. |
Finanzierungsrechner:
Kaufpreis:
600.000 €
Eigenkapital:
600.000 €
Monatliche Rate
0 €
Effektiver Jahreszins
0 %
Sollzinsbindung
10 Jahre
Bausubstanz & Energieausweis
| Baujahr | 1936 |
|---|---|
| Wesentliche Energieträger | Gas |
| Energieausweis | liegt vor |
| Energieausweistyp | Bedarfsausweis |
| Energieverbrauchskennwert | 198,8 kWh/(m²*a) |
| Energieeffizienzklasse | F |
198,8
kWh/(m²*a)
Energieeffizienzklasse F
- A+
- A
- B
- C
- D
- E
- F
- G
- H
- 0
- 25
- 50
- 75
- 100
- 125
- 150
- 175
- 200
- 225
- >250
Ausstattung
Lage
Die angebotene Immobilie befindet sich in einer ruhigen Seitenstrasse ohne Durchgangsverkehr im besonders beliebten Geteviertel. Das Umfeld wird geprägt durch eine Bebauung mit Reihenhäusern auf gepflegten Grundstücken. Die infrastrukturelle Anbindung ist als gut zu bezeichnen. So befinden sich sämtliche Einrichtungen zur Deckung des täglichen Bedarfes ebenso wie der öffentliche Personennahverkehr in der näheren Umgebung. Gleiches gilt für Schulen und Kindergärten. Die Immobilie ist südlich ausgerichtet und verfügt rückwärtig über einen herrlichen, weitläufigen Blick in die angrenzenden Gärten. Insgesamt handelt es sich hier um eine Liegenschaft mit höchster Lagequalität sowie außerordentlicher Wertbeständigkeit.
Grundriss
Kellergeschoss
>
>
Hochparterre
>
>
Obergeschoss
>
>
Dachgeschoss
>
>
Adresse
28211 Bremen
Interessante Orte
Preis- und Lageinformationen
Preistrend für Bestandsimmobilien in Gete