Inmitten der idyllischen Landschaft von Zetel liegt ein ca. 926 m² großes Grundstück, das bereits für den Bau eines Doppelhauses projektiert und genehmigt ist. Die Planung überzeugt mit durchdachten Grundrissen, heller und freundlicher Raumgestaltung sowie einer hochwertigen Ausstattung – ideal als Eigenheim oder als Kapitalanlage.
Das Haus ist in nachhaltiger Holzmassivbauweise geplant, die eine hervorragende Ökobilanz, ein gesundes Wohnklima und hohe Energieeffizienz bietet. Klassische Ästhetik und moderne Architektur verbinden sich zu einem stilvollen Gesamtbild mit hoher Lebensqualität.
Die familienfreundliche Lage in unmittelbarer Nähe zum Ortskern und zur Natur macht das Grundstück zu einem besonderen Ort, an dem man gerne ankommt – und bleibt. Mit der vorhandenen Planung und Baugenehmigung können Sie direkt in ein zukunftsorientiertes Projekt starten.
Mit der vorliegenden Planung und Baugenehmigung haben Sie die Möglichkeit, direkt in ein zukunftsorientiertes Projekt einzusteigen.
Bauträger aufgepasst: Baugrundstück mit Projektierung in Zetel mit Baugenehmigung
26340 Zetel
Die vollständige Adresse der Immobilie erhalten Sie vom Anbieter.
Auf Karte anzeigen
Die vollständige Adresse der Immobilie erhalten Sie vom Anbieter.
Finanzierungszertifikat
In nur zwei Minuten zu Ihrem persönlichen Finanzierungszertifkat.
Infos
| Vermarktungsart | Kaufen |
|---|---|
| Grundstücksfläche | 926 m2 |
Kosten
| Miete pro Jahr |
149.000 € |
|---|---|
| Provision | Nein |
Finanzierungsrechner:
Kaufpreis:
600.000 €
Eigenkapital:
600.000 €
Monatliche Rate
0 €
Effektiver Jahreszins
0 %
Sollzinsbindung
10 Jahre
Beschreibung des Objekts
Lage
Im idyllischen Zetel befindet sich das projektierte Grundstück – ein Wohnstandort, der naturnahes Leben, hohe Lebensqualität und optimale Infrastruktur in sich vereint. Das projektierte Grundstück liegt in einer ruhigen, grünen Umgebung, geprägt von Einfamilien- und Doppelhäusern sowie viel Freifläche. Diese Lage schafft eine harmonische Wohnatmosphäre und lädt zum Spazierengehen, Radfahren und zu sportlichen Aktivitäten in der Natur ein.
Im Zentrum von Zetel sind Supermärkte, Bäckereien, Cafés sowie Ärzte und Apotheken in wenigen Minuten mit dem Fahrrad oder dem Auto erreichbar. Das charmante Ortsbild von Zetel vermittelt ein Gefühl von Wohlbehagen und Vertrautheit. Gleichzeitig zeichnet sich der Standort durch eine ausgezeichnete Verkehrsanbindung aus: Über die B 437 erreicht man schnell die A 29, die direkten Anschluss an das überregionale Autobahnnetz bietet. In etwa 20–30 Min. erreicht man Städte wie Wilhelmshaven, Varel oder Oldenburg.
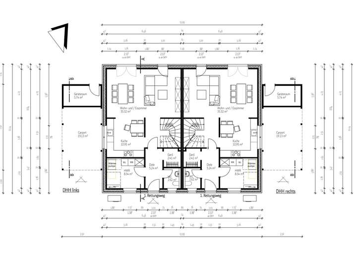
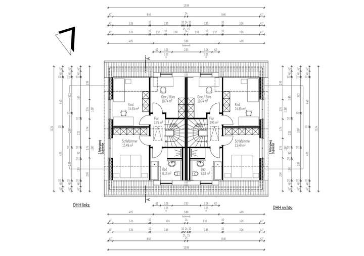
Grundriss
Grundriss EG
>
>
Grundriss OG
>
>