*BEZUGSFREI AB SPÄTSOMMER 2027*
Dieses charmante Reihenendhaus überzeugt durch eine durchdachte Raumaufteilung, den gepflegten Zustand und bereits erfolgten Modernisierungen.
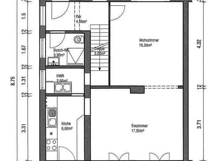
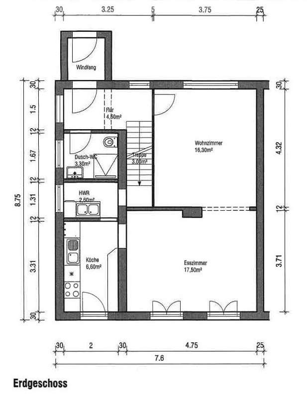
Im Erdgeschoss erwarten Sie ein Wohnzimmer und ein Esszimmer, die offen miteinander verbunden sind und ein harmonisches Wohngefühl schaffen. Ein gemütlicher Kamin sorgt im Wohnzimmer für eine behagliche Atmosphäre. Beide Räume sind mit Echtholzparkett ausgestattet, der im Jahr 2020 neu verlegt wurde. Die Küche schließt direkt an das Esszimmer an und führt weiter in den Hauswirtschaftsraum. Das Gäste-WC wurde 2023 im Zuge eines seniorengerechten Umbaus vollständig modernisiert und mit einer bodengleichen Dusche sowie einer Toilettenerhöhung erneuert und präsentiert sich modern und gepflegt.
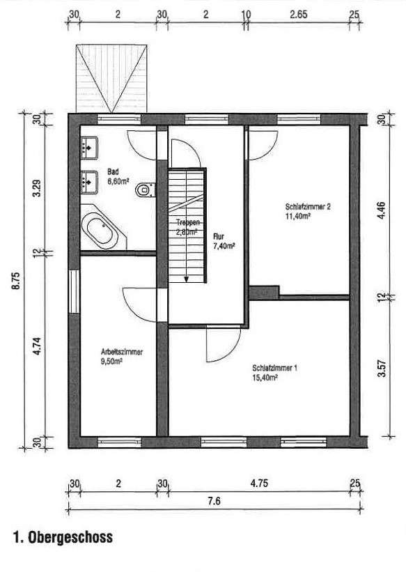
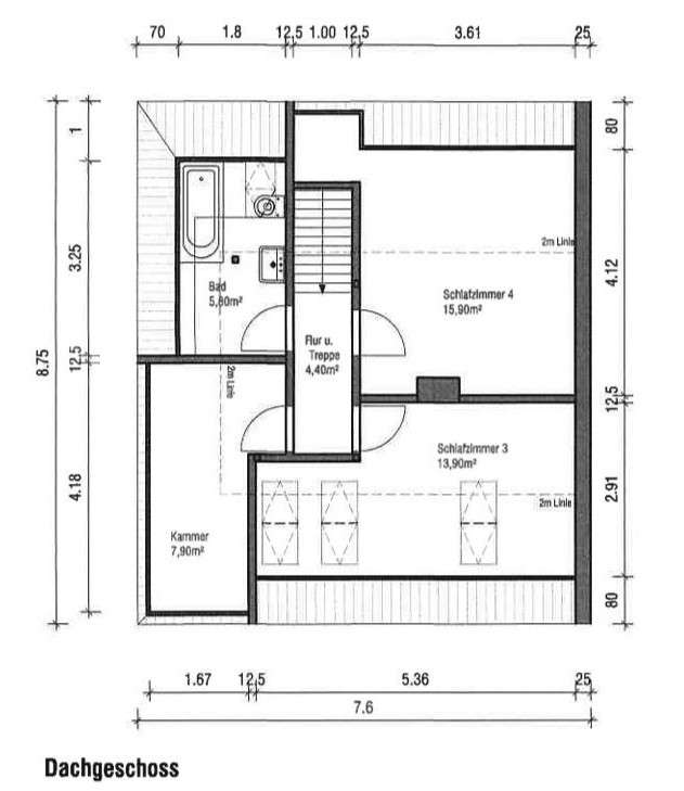
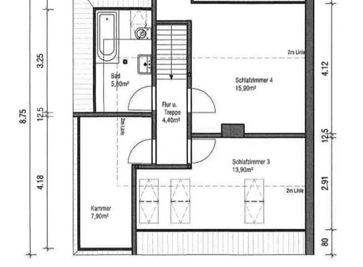
Im Obergeschoss befinden sich zwei Zimmer und ein halbes Zimmer, welche mit Laminatboden ausgelegt sind. Ergänzend hierzu befindet sich im Obergeschoss ein geräumiges Badezimmer mit zwei Waschbecken und einer Eckbadewanne. Das 2008 ausgebaute Dachgeschoss mit Zwischensperrdämmung bietet zwei weitere Zimmer, ein Bad mit Badewanne und eine praktische Kammer.
Der Keller mit rund 16 m² und einer Deckenhöhe von 1,75 m bietet zusätzlichen Stauraum. Ein 30 m² großer Schuppen rundet das Platzangebot ab.
Die durchdachte Ausstattung, die energieeffiziente Technik und das stimmige Gesamtbild machen dieses Objekt zu einem Ort, an dem man sich gerne niederlässt und der eine ideale Grundlage für ein dauerhaft schönes und zukunftsorientiertes Wohnen bietet. Ein Zuhause mit Wohlfühlcharakter, das Komfort, Charme und Nachhaltigkeit auf gelungene Weise miteinander verbindet.
Sanierungen und Modernisierungen
Das Haus wurde in den Jahren 1990 bis 1993 komplett entkernt, aus- und umgebaut. Der Dachstuhl wurde teilweise erneuert und das Dach neu gedeckt. Eine Fassadendämmung mit einer Dicke von 8 cm aus dem Jahr 2005, zweifach verglaste Fenster (1991), eine dreifach verglaste Terrassentür der Küche (2015), welche auf die Terrasse führt sowie Jalousien sorgen für guten Wärmeschutz.
Die Brennwertheizung (Erdgas) wurde 2022 inklusive Schornsteinsanierung und neuem Kamin installiert und trägt zu einer effizienten Heizleistung bei. Im September wurde eine Photovoltaikanlage mit einer Leistung von 5 kW installiert, die das Gebäude energetisch aufwertet und zur nachhaltigen Reduzierung der Stromkosten beiträgt.
Großzügiges Reihenendhaus mit viel Platz und Charme
12307 Berlin
Die vollständige Adresse der Immobilie erhalten Sie vom Anbieter.
Auf Karte anzeigen
Die vollständige Adresse der Immobilie erhalten Sie vom Anbieter.
Finanzierungszertifikat
In nur zwei Minuten zu Ihrem persönlichen Finanzierungszertifkat.
Infos
| Haustyp | Reiheneckhaus |
|---|---|
| Etagenzahl | 2 |
| Wohnfläche ca. | 103 m2 |
| Nutzfläche | 63,5 m2 |
| Grundstücksfläche | 483 m2 |
| Bezugsfrei ab | Spätsommer 2027 |
| Zimmer | 5,5 |
| Schlafzimmer | 4 |
| Badezimmer | 3 |
| Garage/Stellplatz | Außenstellplatz |
Kosten
| Kaufpreis |
599.000 € |
|---|---|
| Provision |
3,57 % inkl. gesetzl. MwSt |
Finanzierungsrechner:
Kaufpreis:
600.000 €
Eigenkapital:
600.000 €
Monatliche Rate
0 €
Effektiver Jahreszins
0 %
Sollzinsbindung
10 Jahre
Bausubstanz & Energieausweis
| Baujahr | 1919 |
|---|---|
| Letzte Sanierung | 1993 |
| Objektzustand | Gepflegt |
| Qualität der Austattung | Normal |
| Heizungsart | Gas-Heizung |
| Wesentliche Energieträger | Erdgas schwer |
| Energieausweis | liegt vor |
| Energieausweistyp | Verbrauchsausweis |
| Energieverbrauchskennwert | 127,2 kWh/(m²*a) |
| Energieeffizienzklasse | D |
127,2
kWh/(m²*a)
Energieeffizienzklasse D
- A+
- A
- B
- C
- D
- E
- F
- G
- H
- 0
- 25
- 50
- 75
- 100
- 125
- 150
- 175
- 200
- 225
- >250
Beschreibung des Objekts
Lage
Das Reihenendhaus befindet sich in einer ruhigen, gepflegten Wohnlage im Berliner Ortsteil Lichtenrade (Bezirk Tempelhof-Schöneberg). Die Umgebung ist geprägt von Reihen- und Einfamilienhäusern sowie grünen Vorgärten und baumgesäumten Straßen.
Einkaufsmöglichkeiten des täglichen Bedarfs, Apotheken, Ärzte und Restaurants liegen im weiteren Wohnumfeld und sind in wenigen Fahrminuten erreichbar. Schulen, wie die Annedore-Leber-Grundschule und Kindertagesstätten befinden sich ebenfalls in der Nähe und unterstreichen die Familienfreundlichkeit der Umgebung.
Mehrere Buslinien verkehren in der Umgebung, und der S-Bahnhof Schichauweg bietet eine direkte Verbindung in die Berliner Innenstadt.
Über die B96 gelangt man zudem schnell nach Tempelhof, Steglitz oder ins Brandenburger Umland.
Die nahegelegenen Grünanlagen, wie das Wäldchen am Königsgraben, der Dorfteich Lichtenrade und Felder am Stadtrand laden zu Spaziergängen, Jogging oder Fahrradtouren ein und schaffen einen angenehmen Ausgleich zum städtischen Alltag.
Grundriss
Grundriss EG
>
>
Grundriss OG
>
>
Grundriss DG
>
>
Adresse
12307 Berlin
Interessante Orte
Preis- und Lageinformationen
Preistrend für Bestandsimmobilien in Lichtenrade (Tempelhof)