Am Rande des Ortskerns von Heidenrod-Kemel steht ein ca. 9.889 m2 Grundstück zum Verkauf. Es ist bebaubar mit 27 Reihenhäusern.
Am Rande des Standorts eines römischen Kulturdenkmals, einem ehemaligen Römerkastell, hat das Architekturbüro eine interessante Wohnanlage entwickelt. In Anlehnung an die sogenannten "Streifenhäuser" aus der Römerzeit wurden 27 moderne und lichtdurchflutete 4-Zimmer-Häuser geplant. Mit den malerischen Innenhöfen entstehen neben spannenden Blickachsen ganz einmalige Aufenthaltsbereiche im Freien.
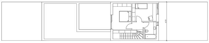
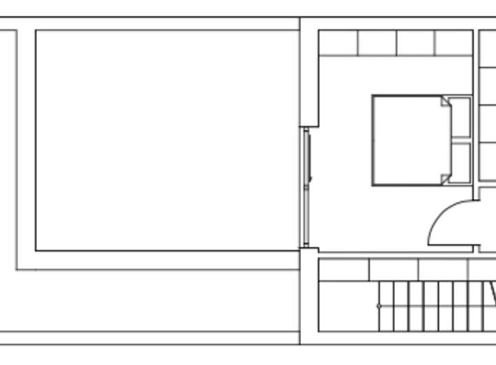
Die in modulartiger Bauweise konzipierten Häuser sind als ein Wohnen für jedes Alter entwickelt worden. Das stufenfreie Erdgeschoss mit Schlafzimmer und Wohnzimmer ist für ältere Käufer ideal. Genauso ist das Haus auch für eine Familie geeignet, da sich im 1. OG noch zwei weitere Schlafzimmer und ein Bad befinden.
Die Wohnflächen sind mit ca. 130 – 137 m2 pro Haus funktional geplant.
Aufgrund der Serienproduktion und des interessanten Kaufpreises des Grundstücks können Sie bspw. für junge Familien ein bezahlbares Angebot entwickeln, welches trotz der Zinsentwicklung marktgängig ist.
Mit der guten Anbindung nach Wiesbaden werden Sie dann ein spannendes Angebot an den Markt bringen, welches Familien den Kauf eines Hauses leistbar im Speckgürtel Wiesbadens ermöglicht.
Bebaubarkeit: 27 Reihenhäuser (WFL ca. 130-137 m2) mit Stellplätzen. Baugenehmigung liegt vor.
++ Lukratives Baugrundstück für 27 RH im Einzugsgebiet Wiesbadens ++
65231 Heidenrod
Die vollständige Adresse der Immobilie erhalten Sie vom Anbieter.
Auf Karte anzeigen
Die vollständige Adresse der Immobilie erhalten Sie vom Anbieter.
Finanzierungszertifikat
In nur zwei Minuten zu Ihrem persönlichen Finanzierungszertifkat.
Infos
| Vermarktungsart | Kaufen |
|---|---|
| Grundstücksfläche | 9.889 m2 |
| Erschließung | Unerschlossen |
| Empfohlene Nutzung | Reihenhaus |
| Bebaubar nach | Bebauungsplan |
| Verfügbar ab | sofort |
Kosten
| Miete pro Jahr |
1.199.000 € |
|---|---|
| Provision | Nein |
Finanzierungsrechner:
Kaufpreis:
600.000 €
Eigenkapital:
600.000 €
Monatliche Rate
0 €
Effektiver Jahreszins
0 %
Sollzinsbindung
10 Jahre
Beschreibung des Objekts
Lage
Heidenrod ist eine Verbandsgemeinde, idyllisch vor den Toren Wiesbadens gelegen, mit fast 10.000 Einwohnern. Die gesunde und schöne Lage im Taunus ist bei Familien äußerst beliebt, da Kinder hier noch behütet aufwachsen können. Mit der Anbindung an die Landeshauptstadt Wiesbaden befindet sich der Standort in einem stabilen Speckgürtel.
Aufgrund der Lage nahe Wiesbaden, im Rhein-Main-Gebiet, ist Heidenrod-Kemel gut angeschlossen an potentielle Arbeitgeber. Auch in Bad Schwalbach sowie Taunusstein finden sich weitere Arbeitgeber.
Heidenrod-Kemel ist an Wiesbaden über die Bundesstraße 260 gut angebunden. In ca. 25 Minuten Fahrzeit ist man in Wiesbaden schon angekommen. Eine Busverbindung ist eingerichtet, welche Wiesbaden und Bad Schwalbach auch mit öffentlichen Verkehrsmitteln gut erreichbar macht.
Schulen: Heidenrod verfügt über Kindergärten, sowie eine Grundschule. Weiterführende Schulen sind in Bad Schwalbach und Aarbergen mit Bus gut zu erreichen.
Die Bushaltestelle sowie ein Supermarkt sind zu Fuß bequem zu erreichen.
Grundriss
Grundriss Erdgeschoss
>
>
Grundriss Obergeschoss
>
>