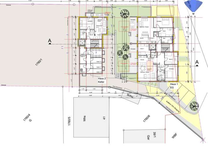
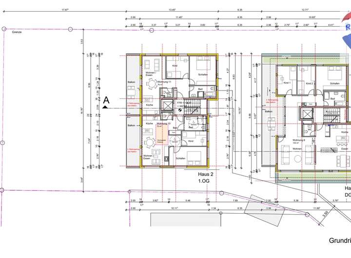
Willkommen in Schwäbisch Gmünd, wo sich eine einmalige Gelegenheit bietet: Ein attraktives Grundstück mit einer bereits erteilten Baugenehmigung für zwei Wohnblöcke, die insgesamt 12 Wohneinheiten umfassen. Dieses exklusive Baugrundstück richtet sich an Investoren und Bauträger, die auf der Suche nach einer neuen Entwicklungsmöglichkeit in einer begehrten Wohnlage sind.
Mit einer großzügigen Grundstücksgröße von ca. 1.412 m² bietet dieses Areal eine optimale Grundlage für Wohnprojekte. Die geplante Wohnfläche beträgt ca. 1.000 m², verteilt auf zwei Wohnblöcke, die jeweils Platz für 6 geräumige Wohneinheiten bieten. Die Baupläne sind vollständig erstellt und erleichtern einen schnellen Baubeginn.
Die Lage in Schwäbisch Gmünd zeichnet sich durch eine ausgezeichnete Infrastruktur, malerische Umgebung und eine hohe Lebensqualität aus. Diese Faktoren machen das Grundstück zu einem hervorragenden Investitionsobjekt, das zukünftigen Bewohnern eine perfekte Kombination aus städtischem Komfort und natürlicher Schönheit bietet.
Seien Sie Teil dieser spannenden Entwicklungsmöglichkeit und gestalten Sie mit diesem Bauprojekt die Wohntrends von morgen. Kontaktieren Sie uns für weitere Informationen oder um einen Besichtigungstermin zu vereinbaren.
Bauträgerprojekt für 12 WE - Grundstück mit fertiger Planung & Baugenehmigung ca. 1.000qm Wohnfläche
73527 Schwäbisch Gmünd
Die vollständige Adresse der Immobilie erhalten Sie vom Anbieter.
Auf Karte anzeigen
Die vollständige Adresse der Immobilie erhalten Sie vom Anbieter.
Finanzierungszertifikat
In nur zwei Minuten zu Ihrem persönlichen Finanzierungszertifkat.
Infos
| Vermarktungsart | Kaufen |
|---|---|
| Grundstücksfläche | 1.412 m2 |
Kosten
| Miete pro Jahr |
0 € |
|---|---|
| Provision |
4.76% des notariellen Kaufpreises inklusive gesetzlicher MwSt. |
Finanzierungsrechner:
Kaufpreis:
600.000 €
Eigenkapital:
600.000 €
Monatliche Rate
0 €
Effektiver Jahreszins
0 %
Sollzinsbindung
10 Jahre
Beschreibung des Objekts
Lage
Zentral gelegenes Baugrundstück direkt am Freibad und Badesee – mitten in Schwäbisch Gmünd!
Dieses attraktive Grundstück befindet sich in zentraler Lage von Schwäbisch Gmünd, einer charmanten Stadt in Baden-Württemberg. Besonders hervorzuheben ist die direkte Nachbarschaft zum städtischen Freibad und Badesee – ein echtes Highlight für Familien, Sportbegeisterte und Naturliebhaber.
Top-Lage für Familien:
Die Grundschule ist in nur ca. 1,1 km erreichbar, Realschule und Gymnasium liegen etwa 2,9 km entfernt – bequem erreichbar mit dem Rad oder Bus.
Erholung direkt vor der Haustür:
Durch die direkte Lage am Freibad und Badesee profitieren zukünftige Bewohner von kurzen Wegen zu sommerlichen Freizeitangeboten. Die Umgebung lädt außerdem zu Spaziergängen, Radtouren und Naturerlebnissen ein – eine perfekte Kombination aus Urbanität und Natur.
Zentrale Infrastruktur:
Einkaufsmöglichkeiten, Restaurants, Cafés sowie kulturelle Einrichtungen sind in wenigen Minuten erreichbar. Die exzellente Anbindung macht das Grundstück auch für Pendler äußerst attraktiv.
Fazit:
Ein Baugrundstück in bester innerstädtischer Lage und ideal für moderne Wohnprojekte, die urbanes Leben mit hoher Lebensqualität verbinden.
- Die Umgebung ist bekannt für ihre malerische Landschaft, die zahlreiche Möglichkeiten für Outdoor-Aktivitäten wie Wandern und Radfahren bietet.
Sonstige Angaben
Rechtshinweis:
Da wir Objekte nicht selbst ermitteln, übernehmen wir hierfür keine Gewähr.
Sämtliche Angaben in diesem Exposé basieren auf Informationen, die uns vom Eigentümer/Vermieter genannt wurden. Wir bemühen uns, möglichst vollständige und richtige Angaben zu erhalten und weiterzuleiten. Eine Haftung für Richtigkeit und Vollständigkeit können wir jedoch nicht übernehmen.