Das klassische, im Jahre 1966 in Massivbauweise errichtete Einfamilienhaus, befindet sich in einer verkehrsberuhigten Spielstraße. Die Grundstücksgröße umfasst 540 m². Die unmittelbare Umgebung ist geprägt von Bestandsimmobilien adäquater Bauweisen und verleiht dieser Liegenschaft ein attraktives und einheitliches Gesamtbild. Im Zeitraum von 2014 bis 2016 wurde die Immobilie kernsaniert. Das helle und modern gestaltete Treppenhaus verbindet die Etagen KG, EG und DG und bietet somit Familien oder Mehrgenerationen ein ideales Wohnkonzept. Die gesamte Wohnfläche beträgt ca. 184 m². Im EG befinden sich der offen gestaltete Wohn-Koch- und Essbereich, überdachte Terrasse, Wintergarten, zwei Schlafräume und ein TGL-Bad. Im Zuge der Kernsanierung wurde eine Grundrissoptimierung vollzogen. Der damalige Abstellraum und das Gäste-WC wurden zu einer Kombination aus Ankleidezimmer und Abstellraum umfunktioniert. Das DG-Studio mit seinem offenen Gebälk wurde mit einem TGL-Duschbad ausgestattet. Dieser Wohnbereich eignet sich hervorragend für heranwachsende Kinder oder die Nutzung als Gästezimmer. Die hausinterne Kommunikation auf allen Etagen ist durch eine Sprechanlage möglich. Ein besonderes Highlight dieser effizienten Immobilie ist das ausgebaute Kellergeschoss. Ergänzend zu der konventionellen Nutzung dieser Etage wurden zwei großzügige Hobbyräume eingerichtet sowie ein attraktives Wellness-Bad mit Whirlpool-Wanne und TV-Anschluss. Das KG ist ebenso über die Peripherie zu erreichen. Der Gartenbereich wurde pflegeleicht und komfortabel angelegt und verfügt über einen Gartenbrunnen zur Bewässerung. Zentraler Mittelpunkt ist der Freisitz mit Loungefläche und einem Hot Tub Badezuber. Die moderne Zaun- und Toranlage bietet ausreichend Privatsphäre und verleiht dem gesamten Objekt eine moderne und stimmige Außenoptik. Abgerundet wird dieses Außendesign durch den Vorgartenbereich mit geschicktem Einsatz von Naturstein und Begrünung.
Die Einzelgarage nebst den ergänzenden PKW-Stellplätzen im Vorgartenbereich runden dieses überaus attraktive Kaufobjekt ideal ab.
Das gesamte Objekt mitsamt dem Grundstück befindet sich aufgrund der Kernsanierung in einem sehr guten und überaus gepflegten Allgemein-Zustand. Durch die stetige Fürsorge und einwandfreien Instandhaltung der Eigentümer sind derzeit keine Renovierungsmaßnahmen zu verzeichnen.
Diese Immobilie ist nach notarieller Beurkundung zeitnah verfügbar. Es bestehen weder Erbbaurechte oder Baulasten.
Dorfidylle und moderne Effizienz im perfekten Einklang – Freistehendes EFH mit Garten, Garage & SPs
67259 Kleinniedesheim
Die vollständige Adresse der Immobilie erhalten Sie vom Anbieter.
Auf Karte anzeigen
Die vollständige Adresse der Immobilie erhalten Sie vom Anbieter.
Finanzierungszertifikat
In nur zwei Minuten zu Ihrem persönlichen Finanzierungszertifkat.
Infos
| Haustyp | Einfamilienhaus |
|---|---|
| Etagenzahl | 2 |
| Wohnfläche ca. | 183 m2 |
| Nutzfläche | 287 m2 |
| Grundstücksfläche | 540 m2 |
| Bezugsfrei ab | nach Absprache |
| Zimmer | 4,5 |
| Schlafzimmer | 3 |
| Badezimmer | 3 |
| Garage/Stellplatz | Garage |
| Anzahl Garage/Stellplatz | 1 |
Kosten
| Kaufpreis |
549.000 € |
|---|---|
| Provision |
3,57% inkl. MwSt. Die Käufercourtage in Höhe von 3,57% inkl. MwSt. des Kaufpreises ist verdient und fällig nach notarieller Beurkundung des Kaufvertrages. Ein provisionspflichtiger Maklervertrag mit dem Verkäufer in gleicher Höhe wurde abgeschlossen. |
Finanzierungsrechner:
Kaufpreis:
600.000 €
Eigenkapital:
600.000 €
Monatliche Rate
0 €
Effektiver Jahreszins
0 %
Sollzinsbindung
10 Jahre
Bausubstanz & Energieausweis
| Baujahr | 1966 |
|---|---|
| Letzte Sanierung | 2016 |
| Bauphase | Haus fertig gestellt |
| Objektzustand | Saniert |
| Qualität der Austattung | Gehoben |
| Heizungsart | Wärmepumpe |
| Wesentliche Energieträger | Strom |
| Energieausweis | liegt vor |
| Energieausweistyp | Bedarfsausweis |
| Energieverbrauchskennwert | 45,4 kWh/(m²*a) |
| Energieeffizienzklasse | A |
45,4
kWh/(m²*a)
Energieeffizienzklasse A
- A+
- A
- B
- C
- D
- E
- F
- G
- H
- 0
- 25
- 50
- 75
- 100
- 125
- 150
- 175
- 200
- 225
- >250
Beschreibung des Objekts
Ausstattung
• Kunststoff-Fenster weiß mit Dreifach-Verglasung aus 2015
• Insektenschutz an diversen Fensterelementen
• Überwiegend Rollläden, elektrisch
• TGL-Bad EG niveauarme Großraum-DU, Doppel-WB, Wand-WC, Nassb. ¾ hoch gefliest
• TGL-Dusch-Bad DG, Nischendusche mit Glas-Pendeltür, Wand-WC, Design-Waschtisch
• TGL-Bad KG Whirlpool-BW, Design-WB, Wand-WC, Nassb. fugenlos Design
• TV-Anschluss & Infrarotheizplatte im KG-Bad
• Waschmaschinen- und Trockneranschluss im KG
• Hochwertige Sanitärausstattung in allen Bädern
• Fußbodenbeläge: Design-Vinyl (Klicktechnik), Fliesen, PVC (Kellerraum I),
• Innentüren: Holztüren, weiß, Glastüren (teilweise blickdicht)
• Innenwandbeläge: tapeziert und gestrichen, Holzdielen-Verkleidung Wintergarten
• Decken: einheitliche weiße Holzdecken, überwiegend mit integrierter Beleuchtung
• Überdachte Veranda in Ausrichtung Süden
• Wintergarten in Ausrichtung Süden
• Wärmepumpe aus 2015
• Einzelgarage mit Starkstromanschluss und elektrischem Garagentor
• Drei ergänzende PKW-Stellplätze
• Moderne Zaunanlage im Garten & Hofbereich
• Gepflegte Einbauküche mit E-Geräten
• Überwiegend Zentrale Warmwasseraufbereitung
• Outdoor-Wellnessbereich mit Lounge und Hot Tub Badezuber
• Gartenbrunnen
• Autarker Etagenzugang per Treppenhaus
• Überdachter Hauseingang
• Sicherheits-Haustür
• Haussprechanlage
• Kabelanschluss & Internet
• Diverse Außenbeleuchtung, teilweise mit Bewegungsmelder
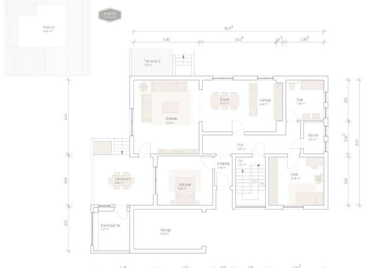
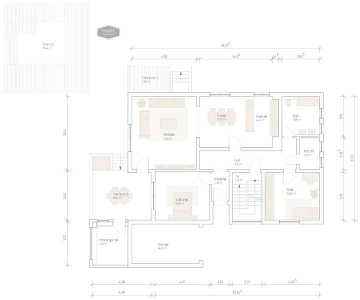
EG
Kochen 6,40 m²
Wohnen 26,11 m²
Essen 12,92 m²
Wintergarten 6,75 m² = 50% WFL. 3,37 m²
Terrasse I 16,01 m² = 50% WFL. 8,04 m²
Terrasse II 6,00 m² = 25% WFL. 1,50 m²
Freisitz 42,56 m² = 25% WFL. 10,64 m²
Schlafen 14,81 m²
Kind 14,40 m²
Bad 7,89 m²
Flur 11,13 m²
Eingang 2,90 m²
Abstellraum 3,55 m²
Treppenhaus 1,32 m²
DG
Studio 44,93 m²
Bad 7,87 m²
Abstellraum 2,82 m²
Treppenhaus 1,31 m²
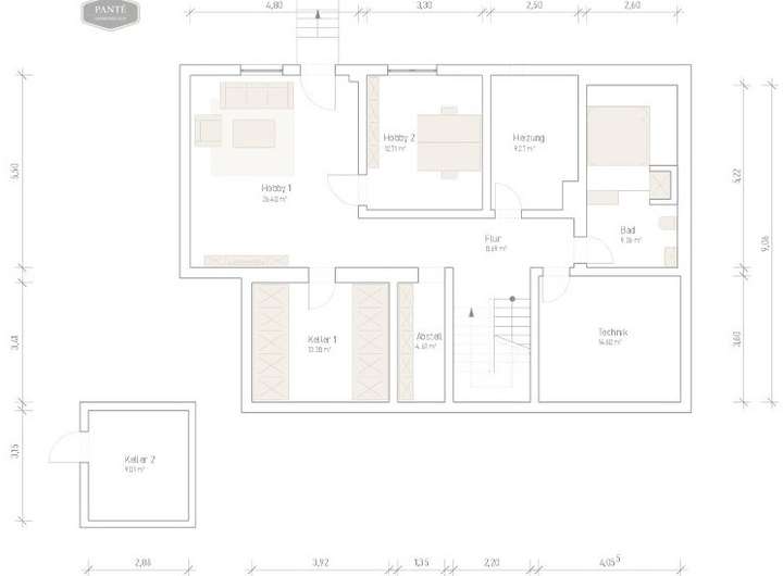
KG
Hobby I 26,40 m²
Hobby II 12,71 m²
Bad 9,36 m² = 50% WFL. 4,68 m²
Abstellraum 4,61 m²
Keller I 13,38 m²
Technik 14,60 m²
Heizung 9,27 m²
Flur 8,69 m²
Außenbereich
Keller II 9,01 m²
Lage
Das charmante und beschauliche Dorf Kleinniedesheim liegt in der Vorderpfalz des Rhein-Pfalz-Kreises. Kleinniedesheim bildet mit seinen 950 Einwohnern die kleinste Kommune des Rhein-Pfalz-Kreises und gehört der Verbandsgemeine Lambsheim-Heßheim an. Im Norden grenzt Kleinniedesheim an das rheinhessische Worms.
Der ursprüngliche landwirtschaftliche Charakter wurde größtenteils beibehalten und bietet für ruhesuchende Familien die ideale Wohnlage.
Kleinniedesheim verfügt über eine Kindertagesstätte. Die Grundschule befindet sich im Nachbarort Großniedesheim, weiterführende Schulen befinden sich in Grünstadt und Bobenheim-Roxheim. Der Stadtbus Frankenthal verbindet die kleinen Gemeinden und verfügt über drei Buslinien 462, 4958 & 4959. Die Landesstraße L 457 verläuft durch Kleinniedesheim und führt binnen wenigen Fahrminuten nach Bobenheim-Roxheim. Hier findet sich ein namhafter Verbrauchermarkt für die tägliche Versorgung sowie Ärzte und Apotheken.
Auch für das kulturelle und leibliche Wohl herrscht hier eine Vielfalt von Angeboten.
Wirtschaftlich findet man im benachbarten Ludwigshafen und Frankenthal namhafte Firmen wie BASF SE (Hauptsitz), Joseph Vögele AG sowie das neue Amazon Logistikzentrum.
Der Bahnhof Bobenheim-Roxheim ist per Buslinie zu erreichen und schließt sich an die Bahnstrecke Mainz-Mannheim an. Autofahrer profitieren zudem von der schnellen Verbindung zur B9 sowie zur A6 & A61.
Sonstige Angaben
Dieses Objekt wird exklusiv von PANTÉ Immobilien angeboten. Alle Angaben sind ohne Gewähr und basieren ausschließlich auf Informationen, die uns von unserem Auftraggeber bzw. Eigentümer übermittelt wurden. Wir übernehmen keine Gewähr für die Vollständigkeit, Richtigkeit und Aktualität dieser Angaben. Qualifizierte Wertermittlung wurde durchgeführt.
Gerne stehen wir Ihnen für weitere Informationen sowie der Vereinbarung zu einem individuellen Besichtigungstermin zur Verfügung. Sie erreichen uns Montag bis Freitag von 09:00 Uhr bis 18:00 Uhr, Samstag und Sonntag nach Vereinbarung.
Grundriss
Grundriss_EG-Neu_PI
>
>
Grundriss_DG-Neu_PI
>
>
Grundriss_KG-Neu_PI
>
>
Adresse
67259 Kleinniedesheim
Interessante Orte
Preis- und Lageinformationen
Preistrend für Bestandsimmobilien in Kleinniedesheim