In Berlin-Grünau, direkt an der Dahme, entsteht als glanzvolles Finale des mehrfach preisgekrönten Quartiers 52° Nord das Ensemble BUWOG DAHMEGLANZ. Das im Südosten Berlins gelegene Projekt vereint ruhiges Wohnen am Wasser mit hervorragender Anbindung.
Dieses Duett von Eleganz und Stil umfasst 52 Wohnungen in unvergleichlich ästhetischer Architektursprache. Die außergewöhnliche Form der beiden Gebäude ermöglicht jeder Wohnung einen freien Blick aufs Wasser. Dank der leicht verspringenden, runden Balkone genießen Bewohner besonders viel Sonne, da eine gegenseitige Beschattung vermieden wird. Die Glasbrüstungen ermöglichen es, den wunderschönen Blick auf die Dahme aus jeder Perspektive zu genießen.
Die Keramikfassade erzeugt immer wieder neue, funkelnde Lichteffekte, die an die Reflexionen einer Wasseroberfläche im Spiel mit dem Wind erinnern – eine Fassade in perfekter Harmonie mit der Dahme. Eine langlebige Bauweise im KfW-55-Standard schafft ein neues Zuhause für kommende Generationen.
Repräsentative 4-Zimmer-Wohnung mit großem Balkon am Wasser
An der Dahme 7 und 9,
12527 Berlin
Auf Karte anzeigen
Finanzierungszertifikat
In nur zwei Minuten zu Ihrem persönlichen Finanzierungszertifkat.
Infos
| Wohnungskategorie | Etagenwohnung |
|---|---|
| Etage | 1 von 4 |
| Wohnfläche ca. | 110 m2 |
| Bezugsfrei ab | 2028 |
| Zimmer | 4 |
| Schlafzimmer | 3 |
| Badezimmer | 2 |
| Garage/Stellplatz | Tiefgarage |
| Anzahl Garage/Stellplatz | 1 |
Kosten
| Kaufpreis |
819.000 € |
|---|---|
| Preis für Garage/Stellplatz | 32.000 € |
| Provision | Nein |
Finanzierungsrechner:
Kaufpreis:
600.000 €
Eigenkapital:
600.000 €
Monatliche Rate
0 €
Effektiver Jahreszins
0 %
Sollzinsbindung
10 Jahre
Bausubstanz & Energieausweis
| Baujahr | 2028 |
|---|---|
| Objektzustand | Erstbezug |
| Heizungsart | Fußbodenheizung |
Beschreibung des Objekts
Ausstattung
Die komfortable Ausstattung mit hochwertigen, zeitlosen Materialien schafft ein behagliches Wohnambiente. Im Zusammenspiel mit einer Fußbodenheizung sorgt Echtholzparkett für ein angenehmes Raumklima.
Die großzügigen Wohn-Ess-Bereiche werden durch bodentiefe Fenster mit natürlichem Licht durchflutet und schaffen eine offene Atmosphäre. Alle Wohnungen verfügen über ein barrierearmes Duschbad, die meisten 3- bis 4-Zimmer-Wohnungen zusätzlich über ein Wannenbad oder ein Gäste-WC.
Platz schafft der praktische Hauswirtschaftsraum, wo Waschmaschine und Trockner bequem unterkommen. Ein eigener, geräumiger Kellerraum bietet zusätzlichen Stauraum.
Hochwertige Armaturen, Lichtschalter und Steckdosen sowie wertige Griffe namhafter Markenhersteller runden das Gesamtbild ab. Die moderne Video-Gegensprechanlage sorgt für zusätzlichen Komfort.
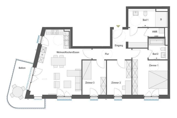
Eckdaten der Wohnung:
• Wohnen/Kochen/Essen: ca. 35 m²
• Zimmer 1: ca. 18 m²
• Zimmer 2: ca. 11 m²
• Zimmer 3: ca. 11 m²
• Zwei Badezimmer
• Hauswirtschaftsraum mit Waschmaschinenanschluss
• Balkon: ca. 12 m²
Ausstattungshighlights:
• Jede Wohnung mit unverbaubarem Wasserblick
• Echtholzparkett mit Fußbodenheizung für behagliches Raumklima
• Bodentiefe Fenster für maximalen Lichteinfall
• Großzügige Balkone mit Glasbrüstung
• Barrierearmes Duschbad
• Hauswirtschaftsraum mit Waschmaschinenanschluss
• Eigener, geräumiger Kellerraum
• Hochwertige Armaturen, Lichtschalter und Steckdosen namhafter Markenhersteller
• Moderne Video-Gegensprechanlage
• Repräsentative Foyers mit ca. 3,70 m Deckenhöhe
• Aufzüge von der Tiefgarage direkt in die Wohnetagen
• Alle PKW-Stellplätze in der Tiefgarage für eine E-Lademöglichkeit vorbereitet
Provision trägt der Verkäufer
Lage
Perle an der Dahme. Ruhig und entspannt. Bekannt für Sport und Erholung am und im Wasser.
Zugleich punktet das im Südosten Berlins gelegene Grünau mit einer Anbindung, die den pulsierenden Herzschlag der Hauptstadt noch spüren lässt. Vom Plätschern der Wellen vor der Tür in kurzer Zeit in Mitte oder Charlottenburg.
Das mehrfach ausgezeichnete Quartier 52° Nord erstreckt sich über 600 Meter an der Dahme mit abwechslungsreichen Baustilen und zahlreichen grünen Oasen. In der unmittelbaren Umgebung findet sich eine gute Nahversorgung von Supermarkt bis Apotheke, viel Grün zur Erholung sowie Kitas, Schulen und Spielplätze direkt in der Nachbarschaft. Eine quartierseigene Kita rundet das familienfreundliche Angebot ab.
Die Uferpromenade und das 6.000 m² große Wasserbecken laden zum Entspannen ein.
Entfernungen:
• S-Bahnhof Grünau (direkte Anbindung): 2 km
• Technologiepark Adlershof: 3,4 km
• Flughafen Berlin Brandenburg BER: 10 km
• Alexanderplatz: 18 km
• Potsdamer Platz: 20 km
• Brandenburger Tor: 20 km
• Hauptbahnhof: 25,5 km
• Altstadt Köpenick (freiheit fünfzehn): 6,5 km
• Großer Müggelsee: 7,4 km
• Regattastrecke Grünau Dahme: 2,1 km
• Strandbad Wendenschloss: 7 km
• Parkbühne Wuhlheide: 4,6 km
• Stadion An der Alten Försterei: 6,4 km
• Optimale Anbindung an die A 113
Grundriss
Grundriss
>
>
Grundriss
>
>
Adresse
An der Dahme 7 und 9, 12527 Berlin
Interessante Orte
Preis- und Lageinformationen
Preistrend für Bestandsimmobilien in Grünau (Köpenick)