ERST BAUEN – DANN ZAHLEN ! Bei uns zahlen Sie erst, wenn Ihr ScanHaus steht.
Hauspreis ohne Grundstück 299.490,- €
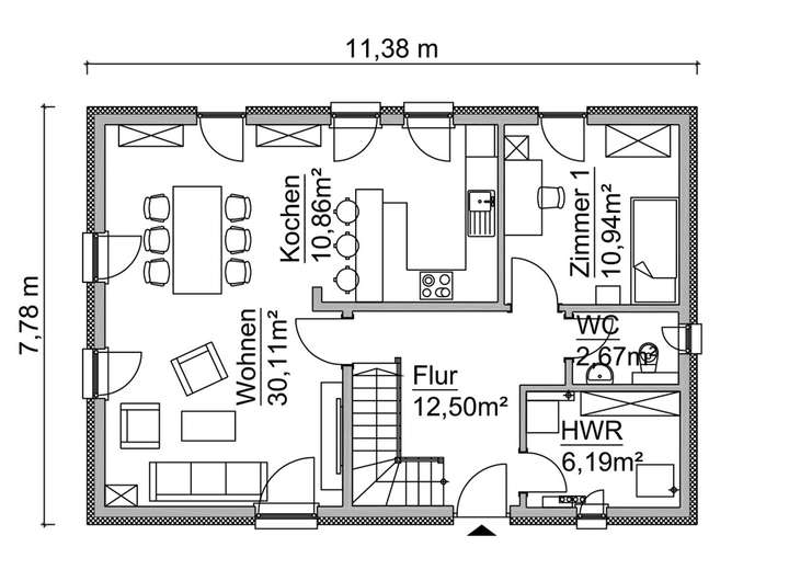
Mehr Wohnfläche und Licht ermöglicht Ihnen das SH 142 D FS dank des attraktiven Frontspießes und raumhoher Verglasung. Ein großzügiger Wohn-Essbereich mit Küche, der sich zum Garten hin öffnet, sowie klare Raumschnitte schaffen ein angenehmes Raumgefühl. Unterm Dach erwarten Sie drei weitere Zimmer und Bad – alle von der Diele aus begehbar.
Bei ScanHaus Marlow haben bereits viele Haustypen mehrere Grundrissvarianten. Sollte Ihnen keine Variante zusprechen, ist es selbstverständlich möglich den Grundriss nach Ihren individuellen Wünschen und Bedürfnissen in Abstimmung mit unseren Architekten anzupassen.
Ihr neues Zuhause, das ScanHaus SH 142 incl. Grundstück
38108 Braunschweig
Die vollständige Adresse der Immobilie erhalten Sie vom Anbieter.
Auf Karte anzeigen
Die vollständige Adresse der Immobilie erhalten Sie vom Anbieter.
Finanzierungszertifikat
In nur zwei Minuten zu Ihrem persönlichen Finanzierungszertifkat.
Infos
| Haustyp | Einfamilienhaus |
|---|---|
| Etagenzahl | 2 |
| Wohnfläche ca. | 142 m2 |
| Nutzfläche | 141 m2 |
| Grundstücksfläche | 810 m2 |
| Zimmer | 5 |
| Schlafzimmer | 3 |
| Badezimmer | 1 |
Kosten
| Kaufpreis |
598.190 € |
|---|---|
| Provision | Nein |
Finanzierungsrechner:
Kaufpreis:
600.000 €
Eigenkapital:
600.000 €
Monatliche Rate
0 €
Effektiver Jahreszins
0 %
Sollzinsbindung
10 Jahre
Bausubstanz & Energieausweis
| Baujahr | 2026 |
|---|---|
| Bauphase | Haus in Planung (projektiert) |
| Objektzustand | Erstbezug |
| Qualität der Austattung | Gehoben |
| Heizungsart | Wärmepumpe |
| Energieausweis | liegt vor |
Beschreibung des Objekts
Ausstattung
ERST BAUEN – DANN ZAHLEN ! Bei uns zahlen Sie erst, wenn Ihr ScanHaus steht.
Mit einer absoluten Festpreisgarantie sind Sie auf der sicheren Seite.
Inklusive folgender Ausstattungsmerkmale:
° KfW Effizienzhaus 40 im Grundpreis
° 20 cm Erdarbeiten u. Bodenplatte
° Estrich im gesamten EG+OG
° Putzfassade inkl. Wärmedämmverbundsystem
° Fußbodenheizung im EG + OG sowie modernster Luft/Wasser/Wärmepumpe
° 3-fach-verglaste Kunststoff-Isolierfenster inkl. Grundlüftungssystem und Aluminium-Rolläden
° komplett fertiger Innenausbau
° Innentüren inkl. Drückergarnituren
° Sanitärelemente für Hauptbad und Gäste-WC inkl.
° Blower Door Test
° NUR Bodenbeläge sowie Maler- und Spachtelarbeiten in Eigenleistung.
Lage
Baugrundstück in perfekter Lage von Braunschweig Dibbesdorf
Baugrundstück mit unverbauter Sicht
Ruhige Anliegerstr./Sackgasse Die Autobahn A2 erreicht man innerhalb von ca. 3 PKW-Minuten
Sonstige Angaben
ScanHaus Marlow ist nicht der Eigentümer des Grundstücks.
Dieses wird von einem externen Anbieter veräußert. Ein sofortiger Baubeginn ist möglich.
Die in dieser Anzeige dargestellten Abbildungen enthalten zum Teil aufpreispflichtige Sonderausstattungen.
Profitieren Sie von einem der gesündesten und erfahrensten Unternehmen in der Branche! Auch dieses Jahr, wurden wir wieder mit der Bestnote im Bereich
Unternehmensliquidität ausgezeichnet! BESSER GEHT ES NICHT!
Ihr Vorteile bei ScanHaus auf einen Blick
° Sie zahlen Ihr Haus erst nach der Endabnahme
° Sie erhalten von uns eine 18-monatige Festpreisgarantie
° Bei ScanHaus Marlow erhalten Sie alles "aus einer Hand"
° Jahrzehnte lange Erfahrung im Hausbau
° eigene Architekten
° wir verwenden ausschließlich Markenprodukte von deutschen Herstellern
° keine ausgelagerte Produktion - alle Arbeiten werden in unserem Werk in Marlow (Mecklenburg- Vorpommern) durchgeführt
Wir führen Sie sicher durch das unbekannte Gewässer "Hausbau", denn ScanHaus Marlow ist Ihr Lotse auf dem Weg zu Ihrem Traumhaus. Sie genießen umfangreiche Garantien und einen aufmerksamen Kundenservice.
Nicht das passende Haus für Ihre Bedürfnisse?
Nicht das passende Grundstück?
Nicht Ihr gewünschtes Budget?
Wir finden eine individuelle Lösung für Sie und beraten Sie gerne kostenlos und unverbindlich. Finanzierungsanfragen ebenfalls möglich.
Kontaktieren Sie mich am besten über den Button Nachrichten !
Beratungsbüro
Handelsvertretung Jens Steffen
Deliusstraße 2
38855 Wernigerode
Tel.: 0179/5343242
Mail: steffen@scanhaus.de
und
Musterhaus Hannover/Laatzen
Oesselser Straße 36
30880 Laatzen
Grundriss
SH_142d_fs-eg
>
>
SH_142d_fs-og
>
>
Adresse
38108 Braunschweig
Interessante Orte
Preis- und Lageinformationen
Preistrend für Bestandsimmobilien in Volkmarode