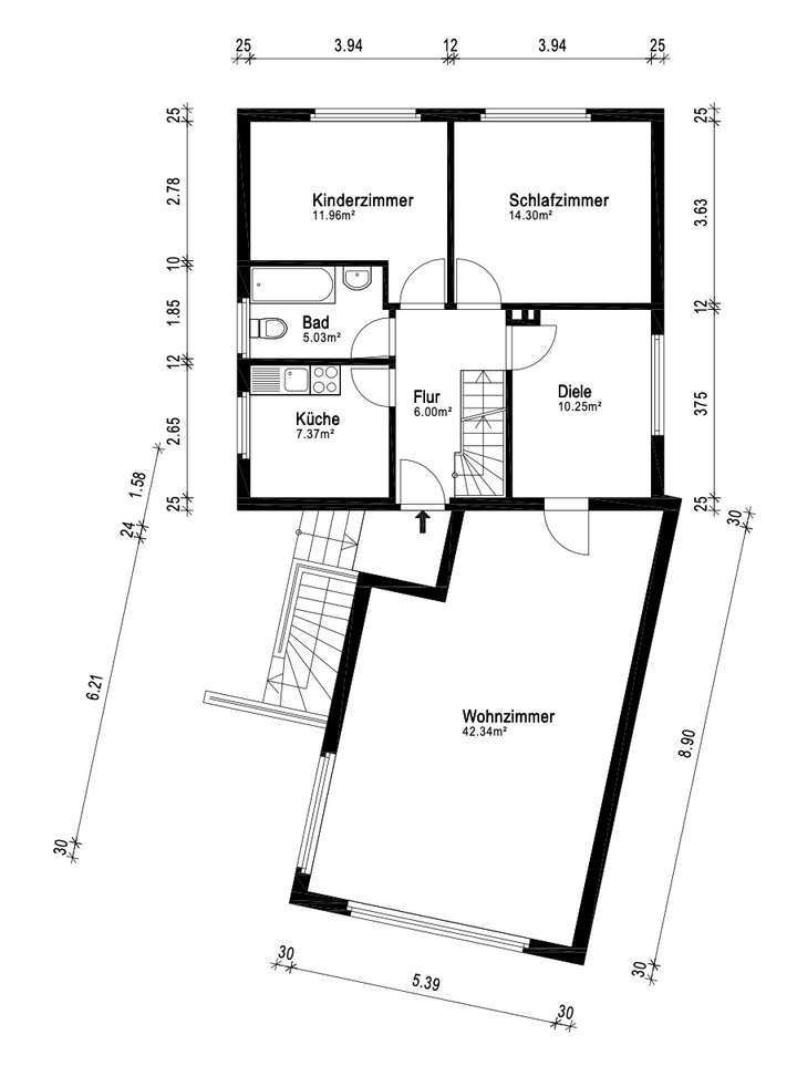
Dieses freistehende Einfamilienhaus wurde um 1900 erbaut und bietet auf einer großzügigen Wohnfläche von ca. 162 m² vier Zimmer, eine Küche, ein Badezimmer sowie ein Gäste-WC. Es eignet sich ideal für Paare oder Familien, die sich ihr zukünftiges Zuhause auf dem rund 400 m² großen Grundstück schaffen möchten.
Im Jahr 1971 wurde das Haus umfassend kernsaniert und durch einen Anbau erweitert, dabei wurden auch einige Fenster erneuert. Im laufe der Jahre fanden weitere Modernisierungen statt. Somit ist die technische Ausstattung in wesentlichen Bereichen bereits auf dem heutigen Standard.
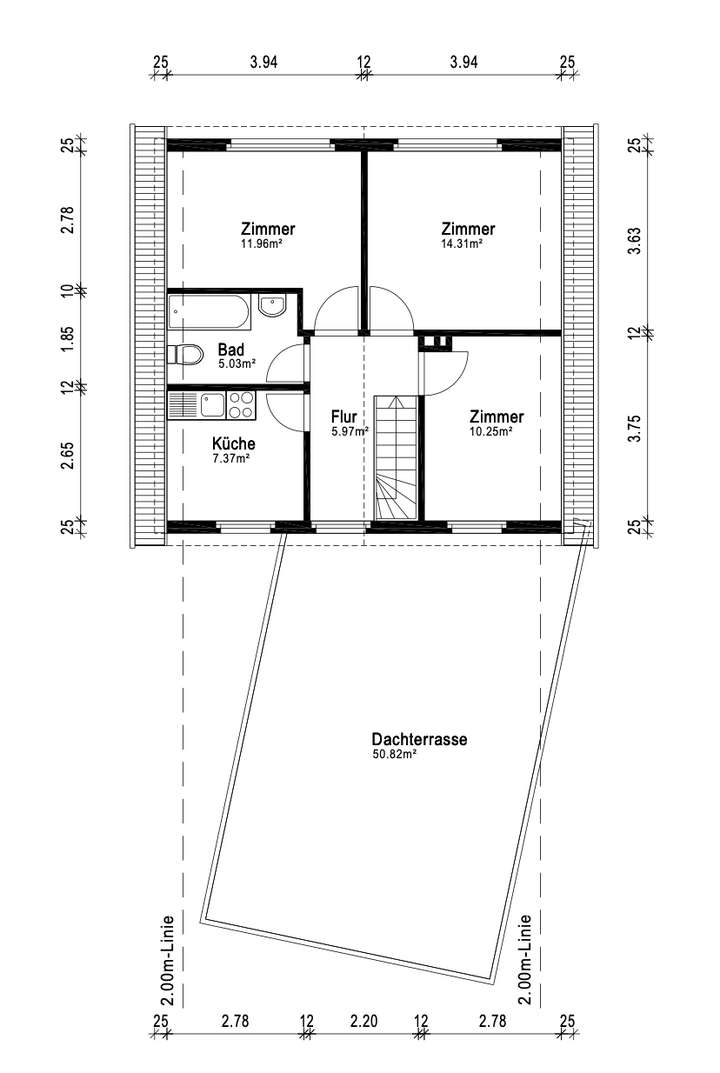
Die Raumaufteilung überzeugt durch Großzügigkeit und Flexibilität. Zwei Zimmer im Obergeschoss sind derzeit verbunden, können jedoch jederzeit wieder getrennt werden.
Zusätzlich verfügt das Angebot über eine Garage, die nicht nur Platz für ein Fahrzeug, sondern auch zusätzliche Abstellfläche bietet. Im Keller befinden sich zudem ein einladender Partyraum und eine Infrarotsauna, die zusätzlichen Komfort und Freizeitmöglichkeiten bieten.
Dieses Einfamilienhaus stellt eine solide Basis für neue Eigentümer dar, die Wert auf Charme, Substanz und Gestaltungsspielraum legen. Eine Besichtigung vermittelt Ihnen den besten Eindruck von den vielfältigen Möglichkeiten, die dieses Haus bereithält.
Charmantes Einfamilienhaus mit gemütlichem Garten und Garage
65931 Frankfurt am Main
Die vollständige Adresse der Immobilie erhalten Sie vom Anbieter.
Auf Karte anzeigen
Die vollständige Adresse der Immobilie erhalten Sie vom Anbieter.
Finanzierungszertifikat
In nur zwei Minuten zu Ihrem persönlichen Finanzierungszertifkat.
Infos
| Haustyp | Einfamilienhaus |
|---|---|
| Etagenzahl | 2 |
| Wohnfläche ca. | 162 m2 |
| Grundstücksfläche | 400 m2 |
| Bezugsfrei ab | 31.10.2025 |
| Zimmer | 4 |
| Schlafzimmer | 2 |
| Badezimmer | 2 |
| Garage/Stellplatz | Garage |
| Anzahl Garage/Stellplatz | 1 |
Kosten
| Kaufpreis |
500.000 € |
|---|---|
| Provision |
3,57% Käuferprovision beträgt 3,57 % (inkl. MwSt.) des beurkundeten Kaufpreises. |
Finanzierungsrechner:
Kaufpreis:
600.000 €
Eigenkapital:
600.000 €
Monatliche Rate
0 €
Effektiver Jahreszins
0 %
Sollzinsbindung
10 Jahre
Bausubstanz & Energieausweis
| Baujahr | 1900 |
|---|---|
| Letzte Sanierung | 2025 |
| Bauphase | Haus fertig gestellt |
| Objektzustand | Gepflegt |
| Qualität der Austattung | Normal |
| Heizungsart | Gas-Heizung |
| Wesentliche Energieträger | Gas |
| Energieausweis | liegt vor |
| Energieausweistyp | Bedarfsausweis |
| Energieverbrauchskennwert | 175,9 kWh/(m²*a) |
| Energieeffizienzklasse | F |
175,9
kWh/(m²*a)
Energieeffizienzklasse F
- A+
- A
- B
- C
- D
- E
- F
- G
- H
- 0
- 25
- 50
- 75
- 100
- 125
- 150
- 175
- 200
- 225
- >250
Beschreibung des Objekts
Lage
Sindlingen ist ein Stadtteil mit besonderem Charakter – oft als „Ort mit zwei Gesichtern“ beschrieben. Im Süden liegt der rund 1.200 Jahre alte Ortskern mit etwa 150 denkmalgeschützten Häusern, im Norden prägen moderne Neubauten das Bild.
Der Stadtteil bietet mehrere Schulen, darunter eine Grund- und Hauptschule sowie die Internationale Schule Frankfurt-Rhein-Main. Einkaufsmöglichkeiten sind ebenfalls vorhanden.
Dank der S-Bahn-Linie S1 besteht eine direkte Verbindung zum Frankfurter Hauptbahnhof. Die Bushaltestelle Allesinastraße (Linien 54, 837, M55, X53) ist in wenigen Minuten erreichbar. Auch die A5 und B40 sorgen für eine gute Anbindung mit dem Auto.
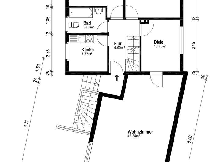
Grundriss
Bemannter Grundriss - EG
>
>
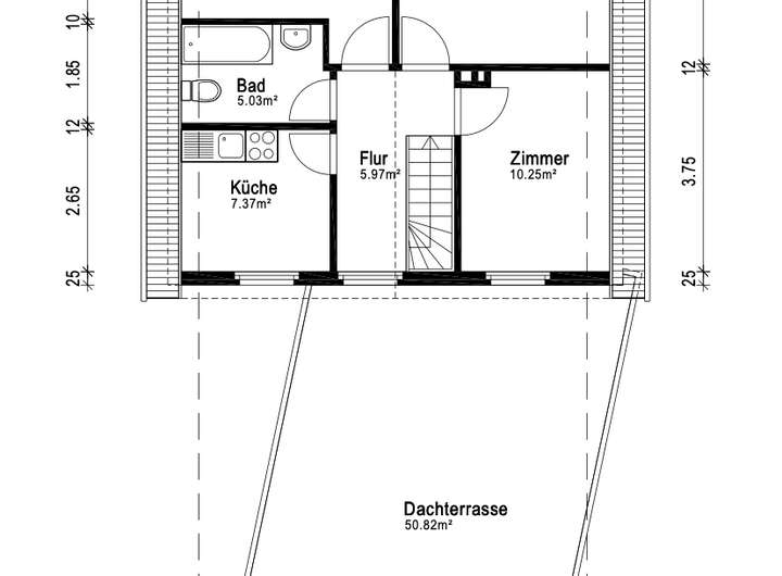
Bemaßter Grundriss - OG
>
>
Bemaßter Grundriss - KG
>
>
Adresse
65931 Frankfurt am Main
Interessante Orte
Preis- und Lageinformationen
Preistrend für Bestandsimmobilien in Sindlingen