**Großzügiges Ein- bis Zweifamilienhaus mit vielseitigen Nutzungsmöglichkeiten und gehobener Ausstattung**
Dieses beeindruckende Ein- bis Zweifamilienhaus überzeugt mit einer großzügigen Wohnfläche von ca. 332 m² und einem weitläufigen Grundstück von rund 2.158 m². Die Kombination aus durchdachtem Raumkonzept, moderner Ausstattung und liebevoll gepflegtem Garten bietet außergewöhnliche Möglichkeiten für unterschiedliche Wohn- und Nutzungskonzepte – ideal für Familien, Mehrgenerationenwohnen, Kapitalanleger oder zur teilweisen Vermietung, beispielsweise einer Einliegerwohnung.
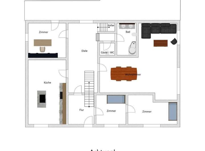
Das ursprünglich 1952 errichtete Gebäude wurde 2011 im Rahmen einer Kernsanierung umfassend modernisiert und befindet sich heute in einem äußerst gepflegten Zustand. Mit insgesamt 10 Zimmern, davon 6 Schlafzimmern und 3 Badezimmern, ist die Immobilie sowohl für größere Familien als auch für zwei getrennte Wohneinheiten hervorragend geeignet. Dank getrennter Zähler für Wasser, Strom und Heizung in Erd- und Obergeschoss ist eine klare Abrechnung und getrennte Nutzung problemlos möglich – ein wichtiger Vorteil für Anleger oder Vermieter.
Im Erdgeschoss öffnet sich der Eingangsbereich zu einem hellen Wohn- und Esszimmer mit Zugang zur Terrasse und Blick in den Garten. Elektrische Rollläden sorgen hier für zusätzlichen Komfort; in den weiteren Wohnräumen des Erd- und Obergeschosses sind Rollläden ebenfalls vorhanden.
Zwei hochwertige Einbauküchen (EG & OG) bieten viel Platz und Funktionalität – ideal sowohl für Familienalltag als auch für zwei unabhängige Haushalte. Im Zuge der Sanierung wurden Heizungsanlage (Gaszentralheizung mit Fußbodenheizung im Untergeschoss) und Elektroinstallation vollständig erneuert. Für ein angenehmes Wohnklima sorgen zusätzliche Dämmmaßnahmen an Dachboden und Gauben sowie moderne Fenster. Die Energieeffizienz wurde weiter optimiert: Der Wärmespeicher wurde 2025 erneuert. Die Ausstattung ist auf Langlebigkeit und Komfort ausgelegt, ergänzt durch eine Sicherheitstür (2016).
An sonnigen Tagen sorgt eine elektrische Sonnenmarkise mit Wetter- und Sturmwarnsystem (2018) für angenehmen Schatten, gesteuert per Sonnensensor. Neue Bodenbeläge in großen Teilen des Hauses, insbesondere im Obergeschoss (2021), unterstreichen den gepflegten und modernen Eindruck. Der Garten ist pflegeleicht angelegt – mit Spielflächen, Staudenbeeten (neu 2025) und einer Umzäunung mit Doppelstabmatten (2020). Eine Gartenpumpe und ein Mähroboter (im Kaufpreis enthalten) erleichtern die Pflege zusätzlich.
Auch die Außenanlagen überzeugen mit zahlreichen Stellmöglichkeiten: Eine Doppelgarage mit zusätzlichem Hobbyraum im Dachgeschoss, drei Carportplätze und sechs weitere Außenstellplätze bieten Platz für Familie, Gäste oder Mieter. Das Haus ist teilunterkellert (Heizungskeller). Zudem ist Glasfaser bereits bis ins Haus verlegt – ein Anschlussvertrag kann direkt abgeschlossen werden.
Diese Immobilie vereint großzügiges Wohnen, gehobenen Komfort und flexible Nutzungsmöglichkeiten – ob als klassisches Einfamilienhaus, Zweifamilienhaus mit getrennter Einheit, Mehrgenerationenhaus oder Investmentobjekt mit attraktiver Vermietungsoption.
Gerne senden wir Ihnen ein ausführliches Exposé zu oder vereinbaren einen Besichtigungstermin. Überzeugen Sie sich selbst vor Ort von den zahlreichen Vorzügen dieses besonderen Angebots.
**Viel Platz + tolle Ausstattung! Familienfreundliches EFH mit großem Garten in Bergen-Eversen**
29303 Bergen
Die vollständige Adresse der Immobilie erhalten Sie vom Anbieter.
Auf Karte anzeigen
Die vollständige Adresse der Immobilie erhalten Sie vom Anbieter.
Finanzierungszertifikat
In nur zwei Minuten zu Ihrem persönlichen Finanzierungszertifkat.
Infos
| Haustyp | Einfamilienhaus |
|---|---|
| Etagenzahl | 2 |
| Wohnfläche ca. | 332 m2 |
| Grundstücksfläche | 2.158 m2 |
| Zimmer | 10 |
| Schlafzimmer | 6 |
| Badezimmer | 3 |
| Garage/Stellplatz | Garage |
| Anzahl Garage/Stellplatz | 2 |
Kosten
| Kaufpreis |
490.000 € |
|---|---|
| Provision |
Käuferprovision beträgt 3,57 % (inkl. MwSt.) des beurkundeten Kaufpreises |
Finanzierungsrechner:
Kaufpreis:
600.000 €
Eigenkapital:
600.000 €
Monatliche Rate
0 €
Effektiver Jahreszins
0 %
Sollzinsbindung
10 Jahre
Bausubstanz & Energieausweis
| Baujahr | 1952 |
|---|---|
| Letzte Sanierung | 2011 |
| Bauphase | Haus fertig gestellt |
| Qualität der Austattung | Gehoben |
| Heizungsart | Fußbodenheizung |
| Wesentliche Energieträger | Erdgas leicht |
| Energieausweis | liegt vor |
| Energieausweistyp | Bedarfsausweis |
| Energieverbrauchskennwert | 208,6 kWh/(m²*a) |
| Energieeffizienzklasse | G |
208,6
kWh/(m²*a)
Energieeffizienzklasse G
- A+
- A
- B
- C
- D
- E
- F
- G
- H
- 0
- 25
- 50
- 75
- 100
- 125
- 150
- 175
- 200
- 225
- >250
Beschreibung des Objekts
Ausstattung
-2011 Gaszentral Heizung
-
-2011 Fußbodenheizung in der unteren Etage
-
-2011 Modernisierung der Stromanlage
-
-2011 Wärmeerhalt: Dämmung (Dachboden, Gauben), Fenster
-
-2016 Einbau Sicherheitstür
-
-2018 elektrische Markise mit Sturmwarnsystem
-
-2020 Umzäunung mit Doppelstabmatte
-
-2021 neuer Bodenbelag in großen Teilen des Hauses
-
-2025 Tausch des Wärmespeichers der Heizung
-
-2025 Anlage neuer Staudenbeete
Hinweis: der Mähroboter kann übernommen werden.
Lage
Willkommen in Eversen
Ca. 16 km nördlich von Celle befindet sich die Ortschaft Eversen, welche zur niedersächsischen Stadt Bergen gehört. Eversen liegt am Rande des Naturparks Südheide ,ca. 10 km südwestlich von Hermannsburg.
Für den alltäglichen Bedarf ist im Ort gesorgt. Einkaufsmöglichkeiten bieten der Supermarkt und die Landbäckerei. Desweiteren befinden sich dort ein Friseur und ein Restaurant mit Hotel.
Die Bildung der Kleinen und Großen ist durch einen Kindergarten, die Grundschule und weiterführende Schulen, die in nur 10-12 km bequem per Bus zu erreichen sind, gewährleistet.
Um den Alltagsstress zu entfliehen gibt es mehrere Vereine unter anderem den Schützenverein Eversen von 1745 e. V., RSG - Reitsportgemeinschaft Feuerschütz von 2001 e. V. und den TUS Eversen/Sülze, welcher sowohl Badminton, Basketball, Faustball, Fußball, Tennis, Tischtennis, Turnen, Walking als auch Gymnastik anbietet.
Sonstige Angaben
GELDWÄSCHE: Als Immobilienmaklerunternehmen ist die von Poll Immobilien GmbH nach § 2 Abs. 1 Nr. 14 und § 11 Abs. 1, 2 Geldwäschegesetz (GwG) dazu verpflichtet, bei der Begründung einer Geschäftsbeziehung die Identität des Vertragspartners festzustellen und zu überprüfen, bzw. sobald ein ernsthaftes Interesse an der Durchführung des Immobilienkaufvertrages besteht. Hierzu ist es erforderlich, dass wir nach § 11 Abs. 4 GwG die relevanten Daten Ihres Personalausweises festhalten (wenn Sie als natürliche Person handeln) – beispielsweise mittels einer Kopie. Bei einer juristischen Person benötigen wir eine Kopie des Handelsregisterauszugs, aus welchem der wirtschaftlich Berechtigte hervorgeht. Das Geldwäschegesetz sieht vor, dass der Makler die Kopien bzw. Unterlagen fünf Jahre aufbewahren muss. Als unser Vertragspartner haben Sie auch eine Mitwirkungspflicht nach § 11 Abs. 6 GwG.
HAFTUNG: Wir weisen darauf hin, dass die von uns weitergegebenen Objektinformationen, Unterlagen, Pläne etc. vom Verkäufer bzw. Vermieter stammen. Eine Haftung für die Richtigkeit oder Vollständigkeit der Angaben übernehmen wir daher nicht. Es obliegt daher unseren Kunden, die darin enthaltenen Objektinformationen und Angaben auf ihre Richtigkeit hin zu überprüfen. Alle Immobilienangebote sind freibleibend und vorbehaltlich Irrtümer, Zwischenverkauf- und Vermietung oder sonstiger Zwischenverwertung.
UNSER SERVICE FÜR SIE ALS EIGENTÜMER:
Planen Sie den Verkauf oder die Vermietung Ihrer Immobilie, so ist es für Sie wichtig, deren Marktwert zu kennen. Lassen Sie kostenfrei und unverbindlich den aktuellen Wert Ihrer Immobilie professionell durch einen unserer Immobilienspezialisten einschätzen. Unser bundesweites und internationales Netzwerk ermöglicht es uns, Verkäufer bzw. Vermieter und Interessenten bestmöglich zusammenzuführen.
Weitere Dokumente
360° TourGrundriss
Erdgeschoss
>
>
Obergeschoss-1
>
>
Adresse
29303 Bergen
Interessante Orte
Preis- und Lageinformationen
Preistrend für Bestandsimmobilien in Bergen