Dieses großzügige Einfamilienhaus in Schmitten im Taunus, erbaut im Jahr 1965, vereint klassische Architektur mit modernen Akzenten und bietet auf drei Etagen rund 318 m² Wohnfläche. Insgesamt acht Zimmer, darunter vier Schlafzimmer und drei stilvolle Badezimmer sowie ein zusätzliches Gäste WC, eröffnen vielfältige Gestaltungsmöglichkeiten und schaffen ein Zuhause, das sowohl durch seine Großzügigkeit als auch durch seine Flexibilität überzeugt.
Das ca. 343 m² große Grundstück ist optimal genutzt und bietet neben einer Garage auch ein Carport, praktisch und komfortabel für den Alltag wie auch für Gäste. Zahlreiche Modernisierungen, darunter eine neue Ölheizung mit Warmwasseraufbereitung aus dem Jahr 2023, größtenteils erneuerte Fenster, neue Zimmertüren mit Magnetschloss sowie überwiegend elektrische Rollläden, unterstreichen den hohen Wohnstandard und die Zukunftssicherheit dieser Immobilie.
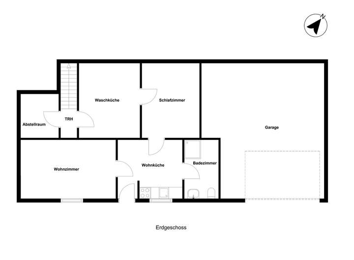
Im Erdgeschoss befindet sich eine separate, aktuell zu einem attraktiven Mietzins vermietete Einliegerwohnung mit etwa 40 m², die mit zwei Zimmern und hochwertigen Fliesen ausgestattet ist. Sie eignet sich sowohl als Gästeapartment oder Wohnraum für Familienmitglieder als auch als sichere Möglichkeit zur Kapitalanlage. Ergänzend stehen praktische Abstell- und Technikräume zur Verfügung, die zusätzlichen Komfort bieten.
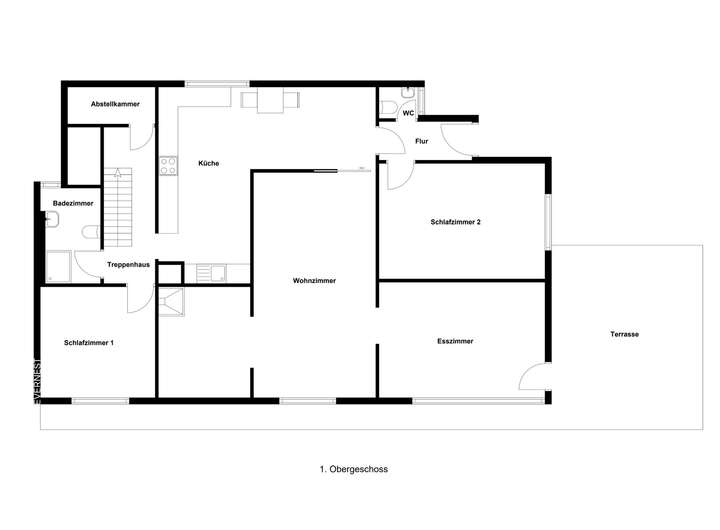
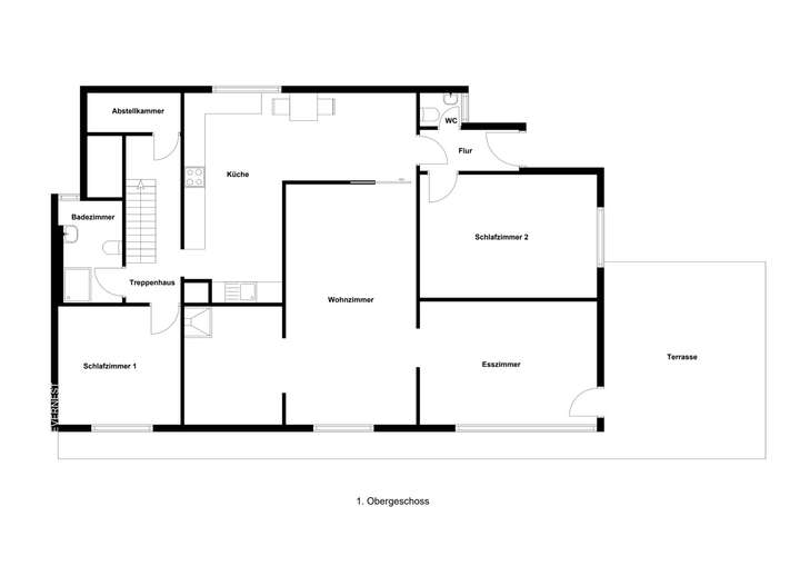
Das erste Obergeschoss bildet das Herzstück des Hauses: Das helle Wohnzimmer geht auf der einen Seite in ein gemütliches Kamin- oder Lesezimmer über, ein Ort zum Wohlfühlen und Entspannen, und grenzt auf der anderen Seite an das weitläufige Esszimmer mit direktem Zugang zur Terrasse, die 2023 neu gefliest wurde und ein wunderbarer Platz für geselliges Beisammensein im Freien ist. Die hochwertige Küche mit edler Arbeitsplatte aus Kompositgestein und modernen Markengeräten begeistert jeden Hobbykoch. Zwei mögliche Schlafzimmer, ein Abstellraum, ein stilvolles Badezimmer und ein Gäste WC runden die Etage ab. Besonders charmant sind die edlen Bodenbeläge: Elegantes Fischgrät Vinyl und hochwertiger Naturstein verleihen den Räumen eine warme, einladende Atmosphäre. Der Natursteinboden hebt sich dabei als besonderes Highlight hervor, seine feine Maserung, die natürliche Kühle im Sommer und die warme Ausstrahlung im Winter machen ihn zu einem zeitlosen Klassiker, der dem Haus Charakter und Beständigkeit verleiht.
Das zweite Obergeschoss bietet mit einem weiteren Schlafzimmer, einem zusätzlichen Abstellraum sowie einem Badezimmer zusätzlichen Raum. Eine zweite, ebenfalls hochwertige Küche eröffnet hier flexible Nutzungsmöglichkeiten, sei es für Gäste, Familienmitglieder oder als unabhängige Wohneinheit. Das Highlight dieser Etage ist der exklusive Kinobereich, der direkt in den Wintergarten führt. Hier erwartet Sie ein luxuriöser Jacuzzi, der in Kombination mit dem Panoramablick eine private Wohlfühloase schafft, ideal um den Alltag hinter sich zu lassen und entspannte Stunden zu genießen, insbesondere in den Wintermonaten.
Dieses Einfamilienhaus verbindet auf eindrucksvolle Weise Großzügigkeit, Qualität und Wohnkomfort. Mit rund 318 m² Wohnfläche, acht Zimmern, vier Schlafzimmern, drei Badezimmern, einem Gäste WC sowie Garage, Carport und einem einzigartigen Mix aus klassischen Naturstein Elementen und modernen Ausstattungsdetails bietet es nicht nur viel Platz, sondern auch ein besonderes Wohngefühl mit Charakter und Charme.
Gepflegtes Domizil für zwei Generationen im Herzen des Taunus
61389 Schmitten
Die vollständige Adresse der Immobilie erhalten Sie vom Anbieter.
Auf Karte anzeigen
Die vollständige Adresse der Immobilie erhalten Sie vom Anbieter.
Finanzierungszertifikat
In nur zwei Minuten zu Ihrem persönlichen Finanzierungszertifkat.
Infos
| Haustyp | Einfamilienhaus |
|---|---|
| Etagenzahl | 3 |
| Wohnfläche ca. | 318 m2 |
| Grundstücksfläche | 343 m2 |
| Zimmer | 8 |
| Schlafzimmer | 4 |
| Badezimmer | 3 |
| Garage/Stellplatz | Garage |
| Anzahl Garage/Stellplatz | 1 |
Kosten
| Kaufpreis |
645.000 € |
|---|---|
| Provision |
2.19 % inkl. MwSt. Bei Abschluss eines notariellen Kaufvertrages ist eine Käuferprovision vom Käufer in Höhe von 2.19 % inkl. MwSt. aus dem Kaufpreis fällig. |
Finanzierungsrechner:
Kaufpreis:
600.000 €
Eigenkapital:
600.000 €
Monatliche Rate
0 €
Effektiver Jahreszins
0 %
Sollzinsbindung
10 Jahre
Bausubstanz & Energieausweis
| Baujahr | 1965 |
|---|---|
| Letzte Sanierung | 2024 |
| Objektzustand | Modernisiert |
| Qualität der Austattung | Gehoben |
| Heizungsart | Öl-Heizung |
| Wesentliche Energieträger | Öl |
| Energieausweis | liegt vor |
| Energieausweistyp | Bedarfsausweis |
| Energieverbrauchskennwert | 99,9 kWh/(m²*a) |
| Energieeffizienzklasse | C |
99,9
kWh/(m²*a)
Energieeffizienzklasse C
- A+
- A
- B
- C
- D
- E
- F
- G
- H
- 0
- 25
- 50
- 75
- 100
- 125
- 150
- 175
- 200
- 225
- >250
Beschreibung des Objekts
Ausstattung
- Unverbaubarer Blick
- Familienfreundlicher Grundriss
- Verschiedene Nutzungsmöglichkeiten
- Wintergarten
- Heimkino
- Einliegerwohnung
- Elektrische Rollläden
Lage
Schmitten, ein staatlich anerkannter Luftkurort im Herzen des Hochtaunus, vereint naturnahe Lebensqualität mit guter Erreichbarkeit. Eingebettet in die waldreiche Mittelgebirgslandschaft am Fuße des Großen Feldbergs genießen Bewohner hier Ruhe, frische Luft und einen hohen Erholungswert. Die charmanten Ortsteile der Gemeinde fügen sich harmonisch in die Natur ein und bieten eine Atmosphäre, die gleichermaßen Familien, Berufspendler und Ruhesuchende anspricht.
Vor Ort finden sich Einkaufsmöglichkeiten für den täglichen Bedarf, Kindergärten und Grundschulen. Weiterführende Schulen, Ärzte und ein breiteres Einkaufsangebot sind in den umliegenden Städten wie Usingen, Wehrheim oder Königstein schnell erreichbar. Damit ist eine sehr gute Versorgung sichergestellt.
Auch die Verkehrsanbindung überzeugt: Über die Bundesstraßen B8 und B456 sind Bad Homburg, Frankfurt sowie die Autobahnen A5 und A661 gut zu erreichen. Mit dem öffentlichen Nahverkehr bestehen regelmäßige Busverbindungen zu den umliegenden Städten und S-Bahn-Anschlüssen, sodass die Frankfurter Innenstadt in etwa 40 Minuten erreichbar ist.
Die Freizeitmöglichkeiten sind vielfältig und beginnen direkt vor der Haustür. Zahlreiche Wanderwege, darunter der bekannte Weiltalweg, führen durch Wälder, Täler und über Höhenzüge. Der Große Feldberg bietet ideale Bedingungen für Wanderer, Mountainbiker und im Winter sogar für Wintersportler. Ergänzt wird das Angebot durch Sportvereine, Reitmöglichkeiten, Wellnessangebote und ein aktives Vereinsleben, das für ein starkes Gemeinschaftsgefühl sorgt.
Schmitten ist mehr als nur ein Wohnort – es ist ein Rückzugsort für alle, die Natur, Ruhe und Lebensqualität schätzen, ohne auf die Nähe zur Metropolregion Rhein-Main verzichten zu wollen.
Grundriss
Erdgeschoss
>
>
1.Obergeschoss
>
>
2.Obergeschoss
>
>
Adresse
61389 Schmitten
Interessante Orte
Preis- und Lageinformationen
Preistrend für Bestandsimmobilien in Schmitten