WELCOME HOME. WELCOME TO YOUR FUTURE.
Dein Zuhause ist mehr als vier Wände – es ist dein Rückzugsort, dein Investment, dein neuer Lebensabschnitt.
White&Black macht Wohneigentum bezahlbar, modern und flexibel.
Jetzt ist der richtige Moment, um anzukommen.
Exklusives Aktionsangebot – Haus & Grundstück perfekt kombiniert!
49632 Essen (Oldenburg)
Die vollständige Adresse der Immobilie erhalten Sie vom Anbieter.
Auf Karte anzeigen
Die vollständige Adresse der Immobilie erhalten Sie vom Anbieter.
Finanzierungszertifikat
In nur zwei Minuten zu Ihrem persönlichen Finanzierungszertifkat.
Infos
| Haustyp | Einfamilienhaus |
|---|---|
| Wohnfläche ca. | 139 m2 |
| Nutzfläche | 0 m2 |
| Grundstücksfläche | 400 m2 |
| Zimmer | 4 |
| Schlafzimmer | 3 |
| Badezimmer | 1 |
| Anzahl Garage/Stellplatz | 0 |
Kosten
| Kaufpreis |
315.353 € |
|---|---|
| Provision | Nein |
Finanzierungsrechner:
Kaufpreis:
600.000 €
Eigenkapital:
600.000 €
Monatliche Rate
0 €
Effektiver Jahreszins
0 %
Sollzinsbindung
10 Jahre
Bausubstanz & Energieausweis
| Baujahr | 2026 |
|---|---|
| Bauphase | Haus in Planung (projektiert) |
| Qualität der Austattung | Gehoben |
| Heizungsart | Wärmepumpe |
Beschreibung des Objekts
Ausstattung
THINK FAST-VOLLENDET – Der perfekte Mittelweg.
- Technik, Heizung & Sanitärinstallation sind drin – du kümmerst dich nur um den Feinschliff
- Professionell vorbereitet für deinen Innenausbau – sauber, trocken & startklar
- Keine Rohbauphase mehr – sofort loslegen mit Boden, Wand & Co.
- Ideal für Teil-Eigenleistung – mit smartem Budget zum eigenen Zuhause
- Effizient & zukunftssicher – Haustechnik und Dämmung auf Top-Niveau
Für alle, die noch selbst Hand anlegen – aber nicht bei null anfangen wollen.
Lage
Baugrundstück mit viel Potenzial für Ihr Eigenheim
Das ebene und gut zugeschnittene Grundstück befindet sich in einer gewachsenen Wohngegend und bietet ausreichend Platz für ein Einfamilien- oder Stadtvilla. Durch die vorhandene Infrastruktur ist eine reibungslose Erschließung gewährleistet.
Sonstige Angaben
Das hier angebotene Grundstück ist im oben genannten Preis bereits enthalten und wird ohne zusätzliche Provision an Danhaus-Bauherren vermittelt.
Zusätzliche Baunebenkosten sind noch zu berücksichtigen – hierzu beraten wir dich selbstverständlich gern im Detail.
Wir bieten außerdem attraktive Finanzierungslösungen an, inklusive Unterstützung bei der Beantragung aller verfügbaren Fördermittel.
Die gezeigten Haus- und Innenraumabbildungen können Ausstattungsdetails enthalten, die nicht im angegebenen Kaufpreis enthalten sind.
Eine gute Beratung ist der Schlüssel zu einem erfolgreichen Bauprojekt. Gemeinsam besprechen wir deine Vorstellungen, Wünsche und Bedürfnisse – und finden so das für dich und deine Familie perfekt passende Danhaus.
Interessiert? Kontaktiere mich gern und vereinbare noch heute ein kostenloses und unverbindliches Beratungsgespräch:
0152/09774819
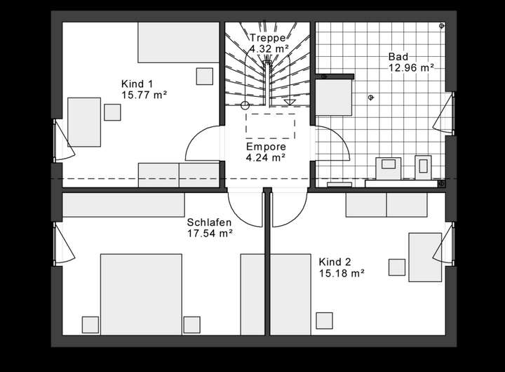
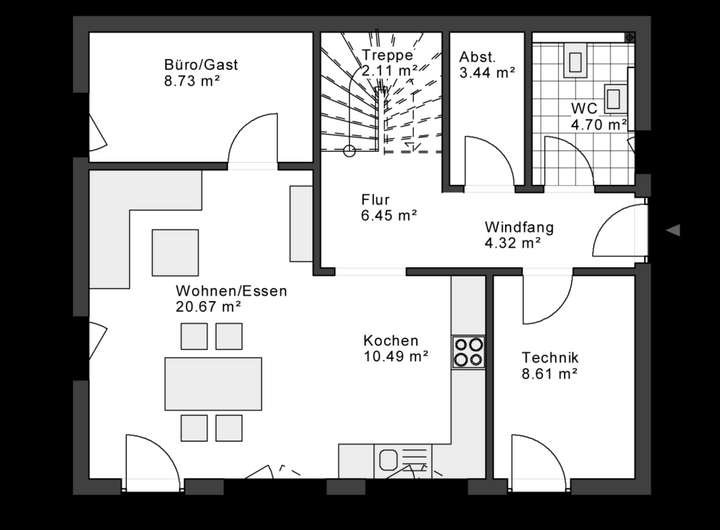
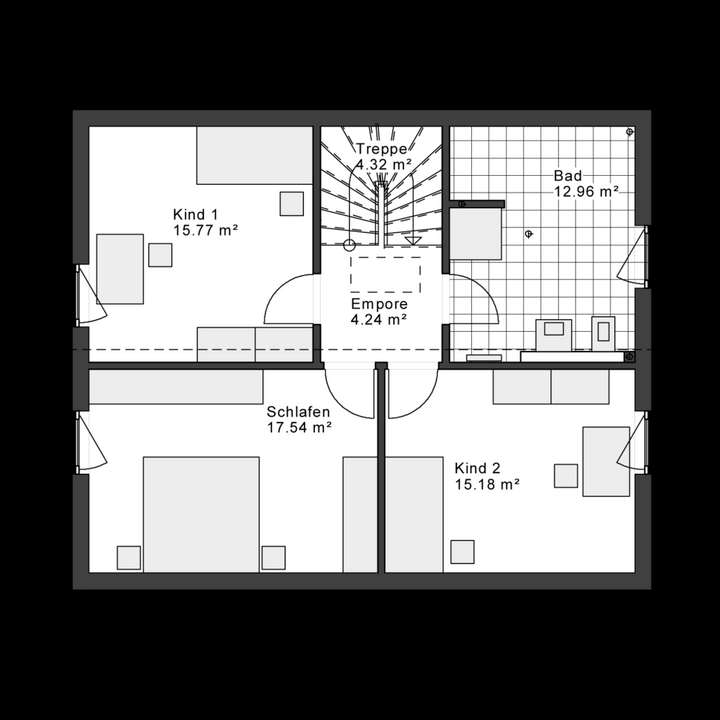
Grundriss
Grundriss EG
>
>
Grundriss OG
>
>
Adresse
49632 Essen (Oldenburg)
Interessante Orte
Preis- und Lageinformationen
Preistrend für Bestandsimmobilien in Essen (Oldenburg)