Das Doppelhaus Double 1 heißt Sie herzlich willkommen mit einem ansprechenden Eingangsbereich und eröffnet Ihnen zahlreiche Möglichkeiten zur individuellen Gestaltung. Der großzügige und lichtdurchflutete Wohnbereich, der mit einer modernen Küche und einem separaten Esszimmer kombiniert ist, schafft eine behagliche Atmosphäre in Ihrem neuen Zuhause. In der oberen Etage erwarten Sie zwei bis drei einladende Zimmer sowie ein zeitgemäß gestaltetes Badezimmer, das der gesamten Familie von Beginn an einen Rückzugsort der Gemütlichkeit bietet. Darüber hinaus bietet der Spitzboden mit etwa 30 m² Ausbaureserve hervorragende Chancen zur persönlichen Gestaltung nach Ihren Wünschen.
Wohnen in Top-Aussichtslage !
71665 Vaihingen an der Enz
Die vollständige Adresse der Immobilie erhalten Sie vom Anbieter.
Auf Karte anzeigen
Die vollständige Adresse der Immobilie erhalten Sie vom Anbieter.
Finanzierungszertifikat
In nur zwei Minuten zu Ihrem persönlichen Finanzierungszertifkat.
Infos
| Haustyp | Doppelhaushaelfte |
|---|---|
| Etagenzahl | 2 |
| Wohnfläche ca. | 113 m2 |
| Grundstücksfläche | 250 m2 |
| Zimmer | 3 |
| Schlafzimmer | 2 |
| Badezimmer | 1 |
Kosten
| Kaufpreis |
625.000 € |
|---|
Finanzierungsrechner:
Kaufpreis:
600.000 €
Eigenkapital:
600.000 €
Monatliche Rate
0 €
Effektiver Jahreszins
0 %
Sollzinsbindung
10 Jahre
Bausubstanz & Energieausweis
| Baujahr | unbekannt |
|---|---|
| Bauphase | Haus in Planung (projektiert) |
| Qualität der Austattung | Gehoben |
| Heizungsart | Wärmepumpe |
Beschreibung des Objekts
Ausstattung
Im Preis enthalten:
Kaufpreis für aktuell verfügbaren Bauplatz
Dein tolles Energieeffizienzhaus in KfW55 Standard (auf
Wusch in KfW 40+)
Architektenleistung: Entwurfsplanung und Erstellung der
Bauanträge
Planänderungspauschale für freie Grundrissanpassung
Vermessungsleistung des Bauplatzes zur Erstellung des
Bauantrags
Bodengutachten von unabhängigem Gutachter
Moderne Wärmepumpe von ELCO, Buderus oder Tecalor
Sicherheitshaustüre mit Mehrfachverriegelung
3-fach verglaste Fenster im ganzen Haus
Dacheindeckung mit Betondachziegel
Dachrinnen und Fallrohre aus Titan-Zink
Aluminiumrolläden an allen Fenstern
Material für den Innenausbau: Dämm- und
Beplankungspaket, Spachtelmasse, Innenwandfarbe usw.
Gesamtes Innenaustattungspaket (Türen, Sanitärobjekte,
Bodenbeläge uvm.)
Blower Door Test und Erstellung des Energieausweises
Lieferung und Hausmontage inkl. Baukran
Bau-Sicherheitspaket (R+V Versicherungspaket):
inkl. Bauleistungsversicherung
inkl. Bauherren-Haftpflichtversicherung
inkl. Wohngebäudeversicherung
inkl. Feuer-Rohbauversicherung
inkl. Arbeitslosenversicherung
zzgl. Baunebenkosten
zzgl. Kaufnebenkosten des Grundstücks
Selbstverständlich bieten wir Ihnen das Haus in verschiedenen Ausbaustufen an.
Vom AUSBAUHAUS bis hin zum fertigen Objekt, stehen alle Möglichkeiten zur Verfügung.
Wir bieten Ihnen eine große Auswahl an Einfamilienhäusern mit einer Wohnfläche zwischen 114m² und 275m². Vom klassischen Haus für Paare oder kleine Familien über praktische Stadthäuser mit schmalem Schnitt bis hin zur großen Stadtvilla oder modernem Bungalow ist alles dabei.
Dabei können Sie unsere Fertighäuser ganz nach Ihren eigenen Wünschen gestalten. Sowohl die Dachform (Satteldach, Walmdach, Flachdach oder Pultdach) als auch zusätzliche Bauteile wie Erker, Balkon oder Giebel sind frei wählbar.
Lage
Bitte haben Sie Verständnis dafür, dass wir keine direkten Gespräche über Grundstücke führen. Wir bieten stattdessen einen umfassenden und kostenfreien Grundstücksservice für alle Hausinteressenten an. Wir möchten betonen, dass wir keine Grundstücksmakler sind, sondern vielmehr daran interessiert sind, Ihnen bei der Suche nach einem geeigneten Grundstück zu helfen.
Unser Grundstücksservice ist darauf ausgerichtet, Ihnen bestmöglich bei Ihrer Suche zu unterstützen. Wir halten ständig aktuelle Grundstücksangebote bereit, die wir je nach Ihren individuellen Wünschen und Ihrem Budget weiterleiten können. Dies ermöglicht es Ihnen, aus einer Auswahl von Grundstücken dasjenige auszuwählen, das am besten zu Ihren Vorstellungen passt.
Bitte zögern Sie nicht, uns für ein persönliches Gespräch zu kontaktieren, um herauszufinden, wie unser Grundstücksservice Ihnen helfen kann. Wir sind bestrebt, Ihnen dabei zu helfen, das ideale Grundstück für Ihr Traumhaus zu finden, und stehen Ihnen gerne mit unserem Fachwissen und unserer Erfahrung zur Seite.
Sonstige Angaben
Allkauf steht für maximale Sicherheit, kurze Lieferzeiten und garantierte Fertigstellung. Wer sich den Traum vom eigenen Zuhause erfüllen möchte, sieht sich oft vielen Unsicherheiten gegenüber. Was passiert, wenn die vereinbarten Liefertermine nicht eingehalten werden oder der Innenausbau nicht wie geplant beginnen kann? Oder wenn die Kosten höher ausfallen als ursprünglich vereinbart? Mit einem allkauf Fertighaus sind solche Bedenken unbegründet! Allkauf bietet Ihnen kurze Lieferzeiten, eine Liefergarantie, garantierte Sicherheit, eine Festpreisgarantie sowie eine Fertigstellungsgarantie. Zu allen Häusern gehört: ein individuell gestaltbares Zuhause, das genau auf Ihre Bedürfnisse abgestimmt ist.
Weitere Dokumente
SiegelGrundriss
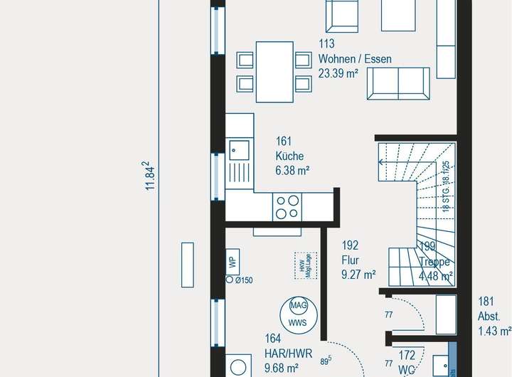
Grundriss Erdgeschoss
>
>
Grundriss Obergeschoss
>
>
Grundriss Dachgeschoss
>
>
Adresse
71665 Vaihingen an der Enz
Interessante Orte
Preis- und Lageinformationen
Preistrend für Bestandsimmobilien in Vaihingen an der Enz