Dieses großzügige Einfamilienhaus mit separater Remise befindet sich im idyllischen Alt-Rudow und vereint Wohnen, Arbeiten und Erholung auf einem außergewöhnlichen Grundstück. Das Hauptgebäude aus dem Jahr 1987 bietet mit einer Wohnfläche von 181 m² und einer zusätzlichen Nutzfläche von rund 103 m² + Garage ein großzügiges Zuhause mit vielfältigem Potenzial. Das Nebengebäude aus dem Jahr 1894, zuletzt in den 1980er-Jahren saniert, umfasst 157 m² Gewerbefläche auf zwei Ebenen und bietet sich ideal für ein stilles Gewerbe, Atelier oder eine Kombination aus Wohnen und Arbeiten an.
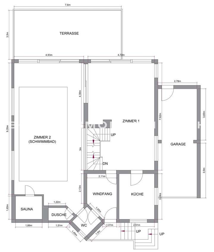
Beim Betreten des Haupthauses empfängt Sie ein heller Eingangsbereich, von dem aus Sie in das Gäste-WC sowie die angrenzende Küche gelangen. Der anschließende, weitläufige Wohn- und Essbereich besticht durch seine offene Gestaltung und den direkten Zugang zur großen Sonnenterrasse – perfekt für gesellige Stunden im Freien. Ein besonderes Highlight ist der integrierte Innenpoolbereich mit Sauna und Dusche, der Ihnen Wellnesskomfort in den eigenen vier Wänden bietet.
Über die Treppe im Flur gelangen Sie in das Obergeschoss, das drei gut geschnittene Zimmer bereithält, die flexibel als Schlaf-, Kinder- oder Arbeitsräume genutzt werden können. Ein weiteres Bad rundet diese Etage ab. Der ausgebaute Spitzboden bietet zusätzlichen Raum – ideal als Rückzugsort, Hobbyraum oder Atelier.
Die unterkellerte Immobilie hält auf 103 m² ausreichend Platz für Hauswirtschaft, Lager oder individuelle Nutzung bereit.
Das Nebengebäude mit jeweils drei Zimmern und Bad pro Etage verfügt über ca. 2 × 80 m² Nutzfläche sowie rund 75 m² zusätzliche Lagerfläche im Keller. Es befindet sich in einem renovierungsbedürftigem Zustand und bietet vielseitige Gestaltungsmöglichkeiten – ob für ein Atelier, eine Werkstatt oder Büroräume.
Dieses Objekt vereint Wohnkomfort, Freizeitwert und geschäftliches Potenzial in einer ruhigen Lage mit historischem Charme. Überzeugen Sie sich selbst von den Möglichkeiten.
Rudow, zentral: 1.167m² Grdst., Einfamilienhaus mit 181m² Wfl. & Innenpool + 235m² BGF Nebengebäude!
12355 Berlin
Die vollständige Adresse der Immobilie erhalten Sie vom Anbieter.
Auf Karte anzeigen
Die vollständige Adresse der Immobilie erhalten Sie vom Anbieter.
Finanzierungszertifikat
In nur zwei Minuten zu Ihrem persönlichen Finanzierungszertifkat.
Infos
| Haustyp | Einfamilienhaus |
|---|---|
| Wohnfläche ca. | 181 m2 |
| Nutzfläche | 241,45 m2 |
| Grundstücksfläche | 1.167 m2 |
| Bezugsfrei ab | sofort / frei |
| Zimmer | 4 |
| Badezimmer | 1 |
Kosten
| Kaufpreis |
899.000 € |
|---|---|
| Provision |
3,57 |
Finanzierungsrechner:
Kaufpreis:
600.000 €
Eigenkapital:
600.000 €
Monatliche Rate
0 €
Effektiver Jahreszins
0 %
Sollzinsbindung
10 Jahre
Bausubstanz & Energieausweis
| Baujahr | 1987 |
|---|---|
| Objektzustand | Renovierungsbedürftig |
| Heizungsart | Öl-Heizung |
| Wesentliche Energieträger | Öl |
| Energieausweis | liegt vor |
| Energieausweistyp | Bedarfsausweis |
| Energieverbrauchskennwert | 167,8 kWh/(m²*a) |
| Energieeffizienzklasse | F |
167,8
kWh/(m²*a)
Energieeffizienzklasse F
- A+
- A
- B
- C
- D
- E
- F
- G
- H
- 0
- 25
- 50
- 75
- 100
- 125
- 150
- 175
- 200
- 225
- >250
Beschreibung des Objekts
Ausstattung
- Einfamilienhaus mit Innenpool mit Sauna und Dusche
- 3 Schlafzimmer plus ausgebauter Spitzboden
- Fußbodenheizung
- großzügige Terrasse
- Garage am Haus
- Keller sehr großzügig, mit 103m²
- Nebengebäude mit 2x80m² Gewerbe/- Nutzfläche, voll unterkellert
Lage
Das angebotene Einfamilienhaus befindet sich in einem ruhigen und dennoch gut angebundenen Stadtteil im Süden Berlins. Die Wohngegend bietet eine familienfreundliche Umgebung mit ausgezeichneter Infrastruktur. In unmittelbarer Nähe befinden sich ein Kindergarten und eine Grundschule, die beide problemlos zu Fuß erreichbar sind. Höhere Bildungseinrichtungen wie ein Gymnasium sind ebenfalls in der Nähe, was die Lage ideal für Familien mit Kindern verschiedener Altersgruppen macht.
Die ausgezeichnete Verkehrsanbindung zeichnet sich durch die Nähe zur nächstgelegenen Autobahn aus, die eine schnelle und unkomplizierte Anbindung an das Berliner Stadtzentrum und darüber hinaus ermöglicht. Die Umgebung bietet zudem zahlreiche Einkaufsmöglichkeiten, Freizeitaktivitäten und Naherholungsgebiete, was die Wohnqualität zusätzlich erhöht.
Durch die Lage im grünen Umland der Stadt können Sie die Vorzüge des städtischen Lebens mit der Ruhe und Entspannung natürlicher Umgebung verbinden. Dies macht das Haus nicht nur zu einem idealen Rückzugsort, sondern auch zu einem attraktiven Ausgangspunkt, um die kulturellen und geschäftlichen Angebote Berlins zu erleben.
Sonstige Angaben
Das Objekt wird im qualifizierten Alleinauftrag angeboten. Bitte beachten Sie, dass wir keine telefonischen Auskünfte erteilen können.
Nachfragen können nur bei vollständiger Angabe von Name, Adresse, Telefonnummer
beantwortet werden.
Courtage
Der Maklervertrag mit der Bölitz Immobilien GmbH und/oder einem von uns Beauftragten kommt durch die Bestätigung der Inanspruchnahme unserer Maklertätigkeit in Textform zustande, z. B. insbesondere durch die Unterschrift des Suchkundenvertrages und/oder des Objekt-Exposés.
Die Höhe der Courtage richtet sich nach den ab dem 23.12.2020 geltenden gesetzlichen Regelungen zur Teilung der Maklercourtage. Danach wird die Courtage regelmäßig für beide Parteien (Eigentümer und Käufer) jeweils in Höhe von 3 % zuzüglich Umsatzsteuer in der jeweils geltenden Höhe verdient und fällig, derzeit also insgesamt 3,57 % des Kaufpreises einschließlich Umsatzsteuer bei notariellem Vertragsabschluss.
Die Höhe der Bruttocourtage passt sich automatisch an, wenn sich der Umsatzsteuersatz ändert. Grunderwerbssteuer, Notar- und Gerichtskosten trägt der Käufer.
Hinweise
Alle Angaben erfolgen ohne Gewähr und basieren ausschließlich auf Informationen, die uns von unserem Auftraggeber übermittelt wurden. Für Vollständigkeit, Richtigkeit und Aktualität dieser Angaben übernehmen wir keine Haftung. Ein Zwischenverkauf bleibt vorbehalten.
Ist das von uns nachgewiesene Objekt dem Interessenten bereits bekannt, ist uns dies unverzüglich mitzuteilen. Die Weitergabe dieses Exposés an Dritte ohne unsere Zustimmung kann Courtage- bzw. Schadensersatzansprüche auslösen.
Im Übrigen gelten die beigefügten Allgemeinen Geschäftsbedingungen der Bölitz Immobilien GmbH für die Rechtsbeziehung zwischen Ihnen und uns.
Grundriss
Grundriss EFH HP
>
>
Grundriss EFH DG
>
>
Grundriss EFH Dachboden
>
>
Grundriss EFH KG
>
>
Grundriss Remise EG
>
>
Grundriss Remise OG
>
>
Grundriss Remise KG
>
>
Adresse
12355 Berlin
Interessante Orte
Preis- und Lageinformationen
Preistrend für Bestandsimmobilien in Rudow (Neukölln)