Vorgestellt wird hier ein neu zu erstellendes, 2,5 stöckiges Einfamilienhaus.
Bodentiefe, schlanke Kunststofffensterelemente und großzügige Terrassenflächen sind äußerliche Charakteristika dieses modernen Baustils. Im Inneren überzeugt ein durchdachter Grundriss plan mit Platz für eine größere Familie. Hohe Räume und große Fensterfronten bringen viel Licht und Weite ins Innere und sorgen so für mehr Behaglichkeit und gefühlten Lebensraum. Edle Materialien und raffinierte Details sind weitere Attribute gehobenen Wohnkomforts.
Das Haus ist lediglich ein Vorschlag und wird an Ihre individuellen Wünsche angepasst. Ihr entstehendes Traumhaus wird in solider Bauqualität innerhalb von nur 14 Monaten durch qualifizierte regionale Handwerksbetriebe erbaut und erfüllt durch die integrierte Luft-Wasser-Wärmepumpe selbstverständlich die aktuellsten Energienormen. So können Sie auf ein exzellentes Design setzen, ohne die Umwelt unnötig zu belasten.
Außerdem bieten wir Ihnen eine Festpreisgarantie von 12 Monaten und eine Bauzeitgarantie von 14 Monaten.
Weitere Details zur Ausstattung entnehmen Sie bitte der beigefügten Baubeschreibung.
Dieses Haus ist auf Wunsch auch mit Keller erhältlich.
DHH in Düsseldorf - Benrath, inkl. Grundstück, freie Planung, Fußbodenheizung, schlüsselfertig
40593 Düsseldorf
Die vollständige Adresse der Immobilie erhalten Sie vom Anbieter.
Auf Karte anzeigen
Die vollständige Adresse der Immobilie erhalten Sie vom Anbieter.
Finanzierungszertifikat
In nur zwei Minuten zu Ihrem persönlichen Finanzierungszertifkat.
Infos
| Haustyp | Doppelhaushaelfte |
|---|---|
| Etagenzahl | 3 |
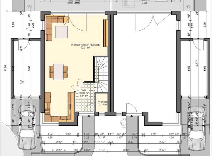
| Wohnfläche ca. | 130 m2 |
| Grundstücksfläche | 450 m2 |
| Bezugsfrei ab | 2026 |
| Zimmer | 4 |
| Schlafzimmer | 1 |
| Badezimmer | 1 |
| Garage/Stellplatz | Garage |
| Anzahl Garage/Stellplatz | 1 |
Kosten
| Kaufpreis |
974.860 € |
|---|---|
| Preis für Garage/Stellplatz | 13.000 € |
| Provision |
3,57 % Die Käufercourtage beträgt 3,57 % (inkl. MwSt.) auf den Grundstückspreis und ist nach notarieller Beurkundung des Kaufvertrages fällig. |
Finanzierungsrechner:
Kaufpreis:
600.000 €
Eigenkapital:
600.000 €
Monatliche Rate
0 €
Effektiver Jahreszins
0 %
Sollzinsbindung
10 Jahre
Bausubstanz & Energieausweis
| Baujahr | 2025 |
|---|---|
| Qualität der Austattung | Gehoben |
| Heizungsart | Fußbodenheizung |
Beschreibung des Objekts
Ausstattung
Es werden Häuser in Massivbauweise Stein auf Stein mit 17,5 cm Hochlochziegel oder Kalksandstein mit ca. 12-16 cm Wärmedämmverbundsystem gebaut. Da die Häuser für Qualität stehen, wird ausschließlich mit Experten zusammen gearbeitet und es werden ausnahmslos hochwertige Materialien verbaut. Der angegebene Preis beinhaltet neben den bereits eingerechneten Grundstückskosten eine hohe Anzahl von Extras und Sonderausstattungen. Unsere Grundausstattung umfasst:
- Alle Architekten-, Planungsleistungen sowie den Bauantrag
- Eine professionelle und unabhängige Bauleitung durch fachkundige Ingenieure vor Ort.
- Eine separate Baubetreuung zur Bauvorbereitung.
- Luft-Wasser-Wärmepumpe Marke Vissmann
- Fußbodenheizung
- Elektr. Rollläden im Erd- Obergeschoss
- Sanitärausstattung der Marke Ideal
- Ebenerdige Dusche
- Bad-Armaturen der Marke Grohe
- Bodenfliesen in Bad, Dusche, WC
- Dachziegel der Marke Braas Pfettendachkonstruktion
- Fenster und Terrassentür aus farbigen Kunststoffprofilen mit 3-Fach-Verglasung
- PV 6,2kWp
- TÜV-Abnahme
- Keller (optional)
- Erker (optional)
- Giebel (optional)
- Garage (optional)
- Balkon (optional)
- offner Kamin (optional)
Lage
Das Grundstück befindet sich in Düsseldorf - Benrath, einer der
beliebtesten Wohnlagen im Süden der Landeshauptstadt. Benrath verbindet auf ideale Weise Leben mit hohem Freizeitwert und naturnaher Umgebung – ein Standort, der gleichermaßen Familien, sowie Berufspendler wie auch Ruhesuchende anspricht.
Ein besonderes Highlight ist das nahegelegene Schloss Benrath, ein architektonisches Juwel mit einer beeindruckenden Parkanlage, die zu erholsamen Spaziergängen, sportlichen
Aktivitäten oder kulturellen Veranstaltungen einlädt. Die Nähe zum Rhein, diversen Grünflächen
und dem Unterbacher See unterstreicht den hohen Naherholungswert dieser Lage.
Auch infrastrukturell lässt Benrath keine Wünsche offen: Der S-Bahnhof Düsseldorf-Benrath sowie zahlreiche Bus- und Straßenbahnlinien ermöglichen eine schnelle und direkte Anbindung an die Innenstadt von Düsseldorf, den Flughafen sowie umliegende Städte wie Köln, Solingen oder Leverkusen. Mit dem Auto erreicht man die Autobahnen A59 und A46 in wenigen Minuten, ideal für Berufspendler.
Zahlreiche Einkaufsmöglichkeiten, darunter Supermärkte, Bäckereien, Apotheken sowie ein vielfältiges gastronomisches Angebot, sind in unmittelbarer Umgebung vorhanden. Darüber hinaus sorgen Kindergärten, Schulen aller Schulformen sowie ärztliche Versorgung und
Freizeitangebote für eine ausgezeichnete Infrastruktur vor Ort.
Düsseldorf-Benrath ist ein Stadtteil mit hoher Lebensqualität, gewachsener Nachbarschaft und einem charmanten, fast kleinstädtischen Flair. Eine Lage, die Wohnen mit Komfort, Natur und Top Anbindung in bester Weise vereint.
Sonstige Angaben
Die Bilder zeigen Ausstattungsvarianten anhand von Beispielen. Da alle Häuser auf Ihre Bedürfnisse abgestimmt werden, kann die tatsächliche Ausführung, Ihren Anforderungen entsprechend, abweichen. Es handelt sich bei diesem Inserat um ein unverbindliches Angebot, was nach gründlicher Prüfung, Abstimmung mit Ihnen und unter Berücksichtigung Ihrer individuellen Wünsche und Bedürfnisse erst verbindlich erstellt werden kann. Die Bilder können kostenpflichtige Sonderausstattungen enthalten.
Weiterhin weisen wir darauf hin, dass zum kalkulierten Preis noch die Entwicklungs-, Kauf- und Baunebenkosten sowie eine Vermittlungsgebühr für die Dienstleistung addiert werden müssen.
Bauphase: Haus mit freier Planung (projektiert)
Die in diesem Angebot enthaltenen Angaben, Abmessungen und Preisangaben stammen ausschließlich vom Eigentümer (oder eines Dritten). Eine Haftung unseres Unternehmens hierfür ist ausgeschlossen.
MB Immobilien ist ein Dienstleistungs & Vermittlungsunternemen. Es ist unabhängig von der Firma BauFormArt und handelt auf eigene Rechnung.
Irrtum und Zwischenverkauf vorbehalten. Dieses Exposé ist eine Vorabinformation.
Alle Angaben ohne Gewähr Irrtümer und Änderungen vorbehalten.
Info zum Energieausweis: noch nicht vorhanden, da Neubau.
Weitere Dokumente
Baubeschreibung Kurzfassung 3Adresse
40593 Düsseldorf
Interessante Orte
Preis- und Lageinformationen
Preistrend für Bestandsimmobilien in Benrath