Wir freuen uns, Ihnen dieses moderne und stilvoll konzipierte Einfamilienhaus im Herzen von Gauting vorstellen zu dürfen.
Mit einer Wohnfläche von ca. 180 m², verteilt auf drei Ebenen (Untergeschoss, Erdgeschoss und Dachgeschoss), überzeugt das Haus durch Großzügigkeit, hochwertige Bauweise und ein durchdachtes Raumkonzept – ideal für Familien oder Paare mit dem Wunsch nach Raum und Qualität.
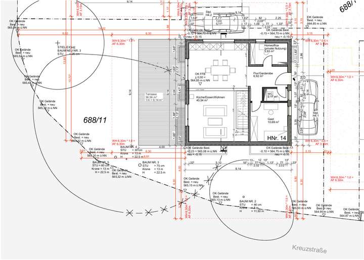
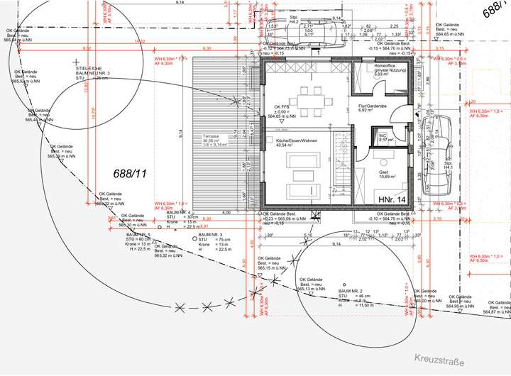
Das Erdgeschoss empfängt Sie mit einem offen gestalteten Wohn- und Essbereich, der dank der großzügigen Fensterflächen mit Tageslicht durchflutet wird und eine angenehm helle, freundliche Wohnatmosphäre schafft. Die angrenzende Küche fügt sich harmonisch ins Raumkonzept ein und bietet beste Voraussetzungen für moderne Wohnküche-Ideen. Großformatige Fliesen in den Bädern sowie einheitlich hochwertiges Echtholz-Parkett – Eiche Landhausdiele – unterstreichen das stimmige Designkonzept des Hauses. Ein Büro- oder Gästezimmer sowie ein Gäste-WC runden das Erdgeschoss funktional ab.
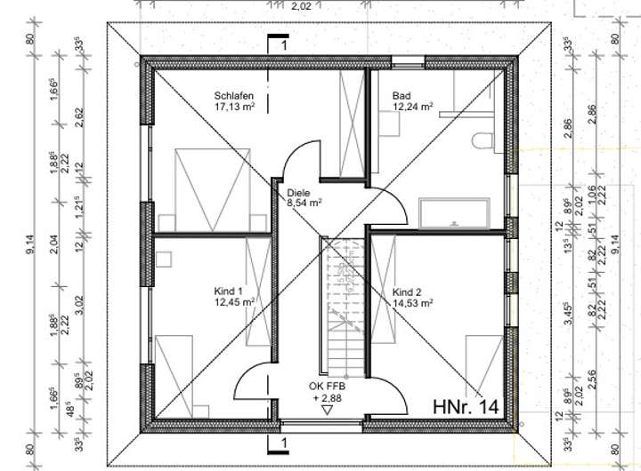
Im Obergeschoss erwarten Sie zwei großzügige Kinderzimmer, ein ca. 12 m² großes Tageslichtbad mit Badewanne und Dusche, sowie das etwa 18 m² große Elternschlafzimmer mit viel Platz zur persönlichen Entfaltung. Hohe Decken und viel Licht lassen die Räume besonders weitläufig und wohnlich wirken und setzen architektonische Akzente.
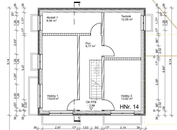
Abgerundet wird das Angebot durch das vollwertige Untergeschoss, das mit ca. 41 m² Wohnfläche überzeugt. Es umfasst zwei großzügige, vielseitig nutzbare Räume sowie einen Flurbereich und bietet damit ideale Voraussetzungen für Homeoffice, Fitness, Gäste oder kreative Hobbys. Ein separater Technikraum ist ebenfalls vorhanden, wurde jedoch nicht in die Wohnfläche eingerechnet.
Auch der Garten wird schlüsselfertig und gepflegt übergeben – mit frisch verlegtem Rollrasen, der sofort ein grünes, einladendes Gesamtbild schafft und den Außenbereich abrundet.
Dieses Haus bietet modernen Wohnkomfort auf hohem Niveau – in ruhiger Lage und mit zeitloser Ästhetik, die den Alltag verschönert. Ein Zuhause, das gleichermaßen funktional, stilvoll und behaglich ist.
Wir beraten Sie gerne ausführlich zu den Möglichkeiten und begleiten Sie auf dem Weg in Ihr neues Zuhause.
Wir freuen uns, dieses besondere Einfamilienhaus in Gauting im Rahmen eines Besichtigungstermins persönlich vorstellen zu dürfen!
Modernes Einfamilienhaus mit Stil – im Herzen von Gauting
82131 Gauting
Die vollständige Adresse der Immobilie erhalten Sie vom Anbieter.
Auf Karte anzeigen
Die vollständige Adresse der Immobilie erhalten Sie vom Anbieter.
Finanzierungszertifikat
In nur zwei Minuten zu Ihrem persönlichen Finanzierungszertifkat.
Infos
| Haustyp | Einfamilienhaus |
|---|---|
| Wohnfläche ca. | 182 m2 |
| Grundstücksfläche | 353 m2 |
| Bezugsfrei ab | ab sofort |
| Zimmer | 7 |
| Schlafzimmer | 3 |
| Badezimmer | 2 |
| Anzahl Garage/Stellplatz | 1 |
Kosten
| Kaufpreis |
1.490.000 € |
|---|---|
| Preis für Garage/Stellplatz | 10.000 € |
| Provision |
3,57 % inkl. gesetzl. MwSt. |
Finanzierungsrechner:
Kaufpreis:
600.000 €
Eigenkapital:
600.000 €
Monatliche Rate
0 €
Effektiver Jahreszins
0 %
Sollzinsbindung
10 Jahre
Bausubstanz & Energieausweis
| Baujahr | 2025 |
|---|---|
| Bauphase | Haus fertig gestellt |
| Objektzustand | Erstbezug |
| Qualität der Austattung | Gehoben |
| Heizungsart | Wärmepumpe |
| Wesentliche Energieträger | Strom |
| Energieausweis | liegt vor |
| Energieausweistyp | Bedarfsausweis |
| Energieverbrauchskennwert | 6,1 kWh/(m²*a) |
| Energieeffizienzklasse | A+ |
6,1
kWh/(m²*a)
Energieeffizienzklasse A+
- A+
- A
- B
- C
- D
- E
- F
- G
- H
- 0
- 25
- 50
- 75
- 100
- 125
- 150
- 175
- 200
- 225
- >250
Beschreibung des Objekts
Ausstattung
IHRE AUSSTATTUNG IM ÜBERBLICK:
- Ca. 179,78 m² Wohnfläche verteilt auf drei Ebenen (UG, EG, DG)
- Lichtdurchfluteter Wohn- und Essbereich mit großzügigen Fensterflächen
- Moderne, offen integrierte Küche mit optimalem Schnitt
- Schöne, großformatige Fliesen in den Badezimmern
- Hochwertiges Echtholz Parkett - Eiche Landhausdiele - in allen Wohnräumen
- Gäste-WC und zusätzliches Büro-/Gästezimmer im Erdgeschoss
- Zwei große Kinderzimmer im Obergeschoss
- Tageslichtbad mit Dusche und offener Badewanne (ca. 12 m²)
- Geräumiges Elternschlafzimmer mit ca. 18 m²
- Vollwertiges Untergeschoss mit ca. 41 m² Wohnfläche (zwei vielseitig nutzbare Räume + Flur)
- Separater Technik-/ Hauswirtschaftsraum
- Angelegte Außenanlagen inklusive Rollrasen
- Ruhige Lage im Herzen von Gauting
- Perfekte Anbindung aufgrund der Nähe zur S-Bahn
- Zeitloses, stimmiges Gesamtkonzept mit moderner Architektur und hoher Funktionalität
- Uvm.
Lage
Nur 8 min zu Fuß an der S-Bahn!
Dieses wunderschöne Einfamilienhaus befindet sich zentral in der Gemeinde Gauting im Landkreis Starnberg, in unmittelbarer Nähe zur Münchner Stadtsilhouette – und dennoch ruhig gelegen in einer Wohnstraße, die von Einfamilienhäusern geprägt ist. Das Haus besticht durch seine hervorragende Lage: Geschäfte des täglichen Bedarfs, Schulen, Kindergärten sowie Cafés und Ärzte sind bequem in wenigen Minuten erreichbar, sodass Alltag und Lebensqualität hier ideal ineinandergreifen.
Gleichzeitig profitieren Sie von einer exzellenten Verkehrsanbindung: Die S‑Bahnstation S6 Gauting oder eine nahegelegene Schnellverbindung bringt Sie in ca. 20 Minuten ins Münchner Zentrum. Die Nähe zur Bundesstraße sowie zu den Autobahnen erleichtert zudem Pendlern den Wechsel zwischen Stadt und Umland. Trotz dieser guten Erreichbarkeit bleibt die Lage angenehm ruhig – der Wohnkomfort wird durch Begrünung, kurze Wege und zurückhaltenden Verkehr deutlich erhöht.
Für Familien, Paare oder Menschen mit Anspruch auf Lebensqualität bietet diese Lage eine seltene Kombination: Stadtnähe trifft auf ländliche Ruhe, Infrastruktur trifft auf Natur – und alles ist wirklich sehr gut erreichbar. Mit dieser Wohnadresse in Gauting erwerben Sie mehr als nur ein Haus: Sie sichern sich ein Zuhause mit hoher Lebensqualität und bester Anbindung.
Sonstige Angaben
Wir freuen uns, Ihnen dieses Objekt bei einem Besichtigungstermin ausführlich vorzustellen. Aus rechtlichen Gründen bitten wir Sie, für Ihre erste Kontaktaufnahme mit uns das Kontaktformular des Portals zu nutzen, auf dem Sie diese Immobilie gefunden haben. Finestep bietet dieses Objekt provisionspflichtig zum Kauf an. Für die vom Eigentümer übernommenen Objektdaten übernimmt Finestep keine Gewähr in Bezug auf die Vollständigkeit, Richtigkeit und Aktualität dieser Informationen. Irrtum und Zwischenverkauf ist vorbehalten. Die Käuferprovision in Höhe von 3,57 % inkl. 19 % USt. ist verdient und fällig mit Beurkundung des notariellen Kaufvertrages. Ist Ihnen das von Finestep nachgewiesene Objekt bereits bekannt, ist dies Finestep schriftlich spätestens innerhalb von fünf Werktagen unter Nennung der Quelle und des Nachweisdatums mitzuteilen. Sämtliche Unterschriften und Mitteilungen haben auch bei Übermittlung per Telefax und E-Mail Ihre Rechtsgültigkeit. Als Gerichtsstand wird München vereinbart sowie die Anwendung Deutschen Rechts. Alle Angaben nach bestem Wissen und nach Angabe des Verkäufers. Irrtum und Zwischenverkauf vorbehalten. Dieses Exposé ist eine Vorabinformation, als Rechtsgrundlage gilt allein der notariell abgeschlossene Kaufvertrag Finestep Immobilien GmbH Humboldtstr. 8 81543 München www.finestep.de
Grundriss
ERDGESCHOSS
>
>
OBERGESCHOSS
>
>
UNTERGESCHOSS
>
>
Adresse
82131 Gauting
Interessante Orte
Preis- und Lageinformationen
Preistrend für Bestandsimmobilien in Gauting