Im Bremer Stadtteil Woltmershausen bieten wir dieses kernsanierte Zweifamilienhaus zum Kauf an.
Das Objekt befindet sich an einer Hauptstraße und verfügt auf 5 Etagen über ca. 228 m².
Baujahrbedingt kann das Objekt sowohl als Ein- als auch als Zweifamilienhaus genutzt werden (getrennte Zähler).
Auch die Vermietung einzelner Zimmer könnte ein attraktives Investmentszenario sein.
Derzeit wird das Objekt aufwendig saniert und wird dementsprechend im sanierten Zustand übergeben.
Details entnehmen Sie bitte der Ausstattungsbeschreibung.
Teilweise sind die dargestellten Bilder Visualisierungen nach der Sanierung (in Bildunterschrift gekennzeichnet).
Kernsaniertes Zweifamilienhaus in Woltmershausen // Kapitalanlage möglich
28197 Bremen
Die vollständige Adresse der Immobilie erhalten Sie vom Anbieter.
Auf Karte anzeigen
Die vollständige Adresse der Immobilie erhalten Sie vom Anbieter.
Finanzierungszertifikat
In nur zwei Minuten zu Ihrem persönlichen Finanzierungszertifkat.
Infos
| Haustyp | Mehrfamilienhaus |
|---|---|
| Etagenzahl | 5 |
| Wohnfläche ca. | 228 m2 |
| Nutzfläche | 20,08 m2 |
| Grundstücksfläche | 236 m2 |
| Bezugsfrei ab | nach Absprache |
| Zimmer | 9 |
| Schlafzimmer | 7 |
| Badezimmer | 2 |
Kosten
| Kaufpreis |
569.000 € |
|---|---|
| Provision | Nein |
Finanzierungsrechner:
Kaufpreis:
600.000 €
Eigenkapital:
600.000 €
Monatliche Rate
0 €
Effektiver Jahreszins
0 %
Sollzinsbindung
10 Jahre
Bausubstanz & Energieausweis
| Baujahr | 1951 |
|---|---|
| Objektzustand | Saniert |
| Heizungsart | Wärmepumpe |
| Energieausweis | liegt vor |
| Energieausweistyp | Bedarfsausweis |
| Energieverbrauchskennwert | 198,3 kWh/(m²*a) |
| Energieeffizienzklasse | E |
198,3
kWh/(m²*a)
Energieeffizienzklasse E
- A+
- A
- B
- C
- D
- E
- F
- G
- H
- 0
- 25
- 50
- 75
- 100
- 125
- 150
- 175
- 200
- 225
- >250
Beschreibung des Objekts
Ausstattung
A. Allgemein
• Ein-/Zweifamilienhaus
• ca. 228 m² Wohnfläche
• ca. 236 m² Grundstücksfläche
• 9 Zimmer
B. Ausstattung
• Beheizung über Wärmepumpe (2025)
• Elektrik 3-adrig, einzeln abgesichert, in 2 Einheiten geteilt (2025)
• 2-fach verglaste Kunststofffenster (2025)
• Dach-Isolation und Abdichtung Schornstein (2025)
• Fassade gestrichen (2025)
• Laminatböden in Wohnräumen (2025)
• sanierte Bäder (2025)
• Wände gespachtelt und gestrichen (2025)
• Balkone saniert (2025)
• Neue Dachtreppe (2025)
• Gartenreinigung (2025)
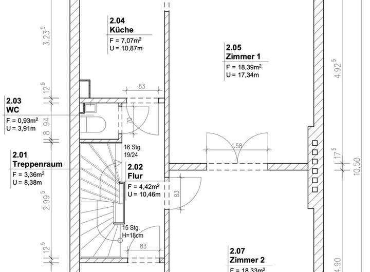
C. Aufteilung und Flächen
Das Objekt wird in 2 Einheiten übergeben (nicht grundbuchlich geteilt).
• WE 1 (Souterrain und EG): 89,75 m²
• WE 2 (1. OG, 2.OG und DG): 138,67 m²
Lage
Das Zweifamilienhaus liegt im Bremer Stadtteil Woltmershausen („Pusdorf“) direkt an einer Hauptstraße – einer gut angebundenen Adresse zwischen Weser, Überseestadt und der Bremer Innenstadt. Die Mikrolage verbindet gewachsene Wohnquartiere mit Nahversorgung und Handwerks-/Dienstleistungsbetrieben; durch die Hauptstraße ist die Erreichbarkeit sehr gut und die Sichtbarkeit hoch.
Verkehr & Anbindung
• Auto: Direkte Anbindung über die B75/B6 in Richtung Innenstadt und zu den Autobahnen A281/A27.
• ÖPNV: Buslinien entlang der Hauptstraße mit kurzen Takten; Anschluss Richtung City, Neustadt und Hbf.
• Rad & Fuß: Durchgehende Radwege und Gehwege; die Weserpromenade und die Überseestadt sind per Fahrrad gut erreichbar.
• Flughafen Bremen: je nach Verkehr 10–15 Min. per Auto/ÖPNV.
Umfeld & Versorgung
• Einkaufsmöglichkeiten (Supermarkt, Bäcker, Discounter) sowie Ärzte, Apotheken und Gastronomie im nahen Umfeld.
• Kitas und Schulen im Stadtteil vorhanden; Spiel- und Sportangebote in erreichbarer Nähe.
• Naherholung: Grünflächen und Wesernähe bieten Freizeit- und Laufstrecken; die Überseestadt mit Hafenflair, Gastronomie und Kultur ist schnell erreichbar.
Charakter der Lage
• Urbane Wohnlage mit gemischter Nutzung; die Hauptstraße bringt kurze Wege, gute ÖPNV-Anbindung und Alltagskomfort.
• Durch die Lage an der Hauptverkehrsachse ist mit erhöhtem Verkehrsaufkommen zu rechnen; moderne Fenstertechnik/Grundrissausrichtung kann Innenräume dennoch ruhig halten.
Fazit
Eine verkehrsgünstige, stadtnahe Lage in Woltmershausen: gut angebunden, alltagsnah versorgt und mit schneller Verbindung in die Bremer City und die Überseestadt – ideal für Haushalte, die zentrale Erreichbarkeit und urbanes Umfeld schätzen.
Sonstige Angaben
Alle Angaben sind ohne Gewähr und basieren ausschließlich auf Informationen, die uns von unserem Auftraggeber zur Verfügung gestellt wurden. Wir übernehmen keine Gewähr für die Vollständigkeit, Richtigkeit und Aktualität dieser Angaben.
Das Objekt wird provisionsfrei für den Käufer angeboten.
Der Ansprechpartner für dieses Immobilienangebot ist:
David Mergelmeyer
selbstständiger Immobilienmakler
+49 421 49957560
+49 176 56532263
dm@mergelmeyer-immobilien.de
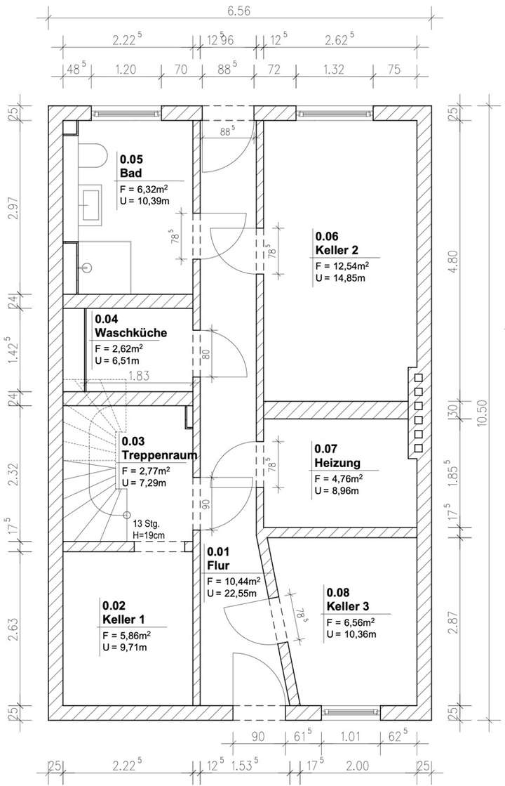
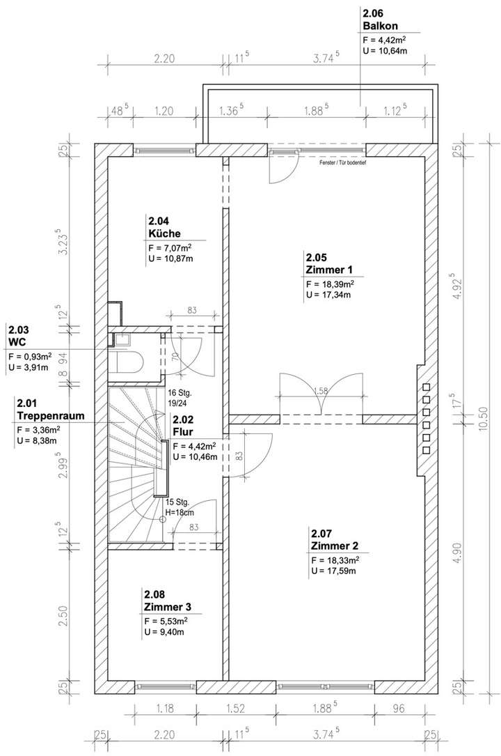
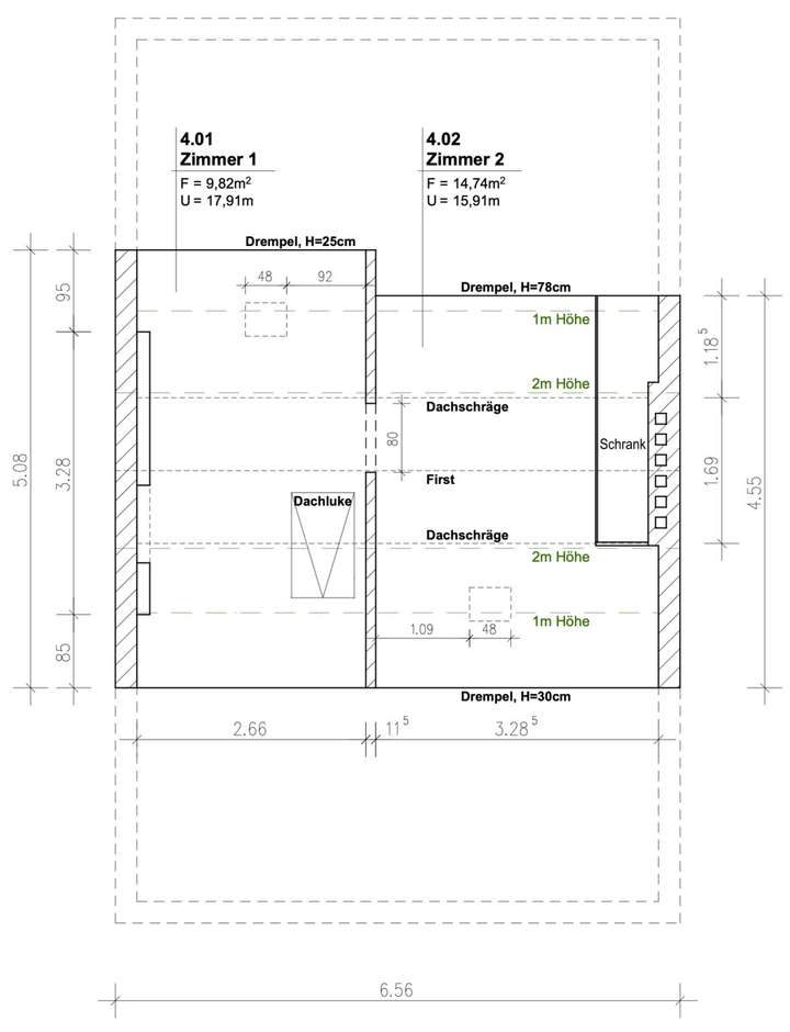
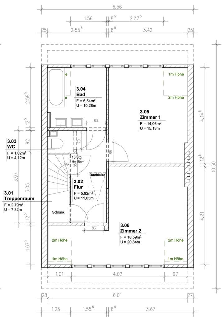
Grundriss
Erdgeschoss
>
>
1. Obergeschoss
>
>
2. Obergeschoss
>
>
Dachgeschoss
>
>
Kellergeschoss
>
>
Adresse
28197 Bremen
Interessante Orte
Preis- und Lageinformationen
Preistrend für Bestandsimmobilien in Woltmershausen