Entscheiden – Einziehen – Wohlfühlen!
Dieses in 2012/13 umfangreich modernisierte Einfamilienhaus in ruhiger Aussichtlage von Wachtberg-Pech vereint zeitlose Wohnqualität mit Großzügigkeit.
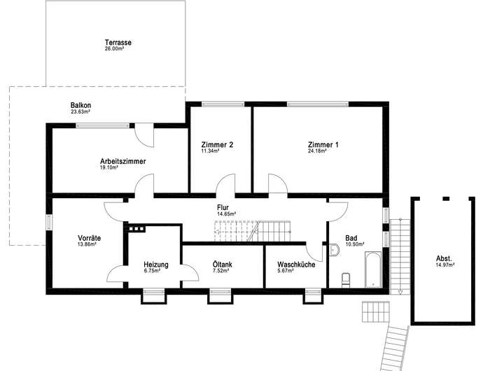
Auf rund 234 m² Wohnfläche plus Dachstudio (ca. 50 m²) bietet es großzügigen Raum für Familien, die Komfort, Licht und Flexibilität schätzen.
Der offene Wohn- und Essbereich mit angrenzender Küche bildet das Herzstück des Hauses – hell, kommunikativ und ideal für das tägliche Miteinander. Hochwertige Parkett- und Fliesenböden, lichtdurchflutete Räume und ein großer Balkon mit Weitblick schaffen ein stilvolles Ambiente. Der pflegeleicht und vollständig eingefriedete Garten bietet verschiedene Sitzmöglichkeit und Platz zu Spielen und Gärtner.
Acht Zimmer, zwei moderne Bäder, ein Gäste-WC und das ausgebaute Dachstudio ermöglichen vielfältige Nutzung für große Familien.
Das Energiekonzept überzeugt mit Photovoltaik, Speicher, moderner Dämmung und Isolierverglasung – für Effizienz und Unabhängigkeit. Der große Garten (ca. 680 m²) mit gepflegten Beeten, Rasenflächen und geschützten Rückzugsorten lädt zum Entspannen ein.
Ein Zuhause, das Geborgenheit, Lebensqualität und zentrale Lage vereint.
Charakter & Charme - EFH modernisiert
53343 Wachtberg
Die vollständige Adresse der Immobilie erhalten Sie vom Anbieter.
Auf Karte anzeigen
Die vollständige Adresse der Immobilie erhalten Sie vom Anbieter.
Finanzierungszertifikat
In nur zwei Minuten zu Ihrem persönlichen Finanzierungszertifkat.
Infos
| Haustyp | Einfamilienhaus |
|---|---|
| Etagenzahl | 3 |
| Wohnfläche ca. | 234 m2 |
| Nutzfläche | 45 m2 |
| Grundstücksfläche | 680 m2 |
| Zimmer | 8 |
| Schlafzimmer | 6 |
| Badezimmer | 2 |
| Garage/Stellplatz | Garage |
| Anzahl Garage/Stellplatz | 2 |
Kosten
| Kaufpreis |
785.000 € |
|---|---|
| Provision |
3,57 Der Maklervertrag mit Sabine Rüssel Immobilien kommt durch die Bestätigung der Inanspruchnahme unserer Maklertätigkeiten zustande. Der/Die Käufer*in verpflichtet sich damit zur Zahlung einer Käuferprovision in Höhe von 3,57 % (inkl. 19% USt.) des Kaufpreises an Sabine Rüssel Immobilien. |
Finanzierungsrechner:
Kaufpreis:
600.000 €
Eigenkapital:
600.000 €
Monatliche Rate
0 €
Effektiver Jahreszins
0 %
Sollzinsbindung
10 Jahre
Bausubstanz & Energieausweis
| Baujahr | 1966 |
|---|---|
| Letzte Sanierung | 2020 |
| Bauphase | Haus fertig gestellt |
| Objektzustand | Modernisiert |
| Qualität der Austattung | Gehoben |
| Heizungsart | Zentralheizung |
| Energieausweis | liegt zur Besichtigung vor |
Beschreibung des Objekts
Ausstattung
* 8 Zimmer + ausgebautes Dachstudio
* ca. 234 m² Wohnfläche + ca. 50 m² Dachstudio
* Grundstücksgröße ca. 680 m²
* 2 Vollbäder + 1 Gäste-WC
* Fußbodenheizung in den Bädern
* Hochwertige Parkett- und Feinsteinzeugböden
* Offener Wohn- / Essbereich mit angrenzender Küche
* Balkon mit Weitblick
* Garten mit mehreren Sitzplätzen
* Photovoltaikanlage mit Speicher
* Moderne Dämmung und Fenster
* Garage mit Wallbox + zusätzlicher Stellplatz
* Gepflegter Zustand, letzte Modernisierung 2020
* Zentrale, ruhige Lage in Wachtberg-Pech
* Hervorragende Infrastruktur – Nähe zu Bonn, Bad Godesberg und Köln
* Kindergärten, Schulen und internationale Schule schnell erreichbar
Lage
Wachtberg-Pech, ein gewachsener Ortsteil der Gemeinde Wachtberg, bietet eine ideale Kombination aus naturnahem Wohnen und urbaner Erreichbarkeit. Die Umgebung ist geprägt von Einfamilienhäusern, gepflegten Gärten und einem familiären, ruhigen Wohncharakter.
Die Anbindung an Bonn und Bad Godesberg ist hervorragend – sowohl mit dem Auto als auch mit öffentlichen Verkehrsmitteln sind Sie schnell in der
Stadt. Im direkten Umfeld befinden sich mehrere Kindergärten, Grundschulen sowie weiterführende
Schulen, was Pech besonders attraktiv für Familien macht. Einkaufsmöglichkeiten für den täglichen Bedarf, Arztpraxen und Restaurants sind bequem erreichbar und sorgen für eine hohe Lebensqualität im Alltag.
Wachtberg-Pech steht für entspanntes Leben im Grünen mit direkter Nähe zur Stadt – eine perfekte Mikrolage für alle, die Ruhe, Nachbarschaft und
Infrastruktur gleichermaßen schätzen.
Sonstige Angaben
Also:
Wenn Sie ein schönes neues Zuhause für Ihre Familie, dann ist dieses moderne Haus genau das Richtige für Sie.
Nutzen Sie die Chance und überzeugen Sie sich von dieser Immobilie bei einer persönlichen Besichtigung. Diese führen wir gern nach Absprache eines Termins und Vorlage eines Bonitätsnachweises durch.
Wir bitten Sie um Ihr Verständnis, dass wir nur vollständige schriftliche Anfragen mit Namen, Anschrift, E-Mail Adresse und Telefonnummer beantworten können.
Adresse
53343 Wachtberg
Interessante Orte
Preis- und Lageinformationen
Preistrend für Bestandsimmobilien in Wachtberg