In begehrter Wohnlage von Schwäbisch Hall präsentiert sich diese außergewöhnliche Villa mit modernem begrüntem Flachdach, stilvoller Architektur und einem traumhaft angelegten, großzügigen Gartenparadies. Hier vereinen sich Design, Komfort und Nachhaltigkeit zu einem exklusiven Wohngefühl auf höchstem Niveau.
Bereits beim Betreten des Anwesens eröffnet sich ein repräsentativer Eingangsbereich mit offener Holztreppe und stilvollen Details. Auf rund 424 m² Wohnfläche erstreckt sich ein durchdachtes Raumkonzept mit lichtdurchfluteten Wohnbereichen, hochwertiger Ausstattung und eleganten Materialien. Die Raumhöhe von 2,75 m auf allen Etagen schafft ein außergewöhnliches Raumgefühl.
Im Erdgeschoss befindet sich das Herzstück des Hauses: eine großzügige, lichtdurchflutete Wohnküche mit hochwertiger Einbauküche, moderner Kücheninsel und direktem Zugang auf die sonnige Terrasse – ideal für gesellige Abende mit Familie und Freunden. Das angrenzende Wohnzimmer mit Kaminofen öffnet sich mit bodentiefen Fenstern zum herrlichen Garten und lädt zum Verweilen ein. Ein Arbeitszimmer, ein stilvolles Gäste-WC mit Fenster und Glaswaschtisch sowie ein praktischer Abstellraum ergänzen diesen Bereich perfekt.
Das Dachgeschoss überzeugt mit durchdachter Raumaufteilung für die ganze Familie. Zwei helle Kinder- oder Gästezimmer, ein modernes Bad sowie ein separater Hauswirtschaftsraum und ein zusätzlicher Abstellraum bieten höchsten Wohnkomfort. Das großzügige Elternschlafzimmer begeistert mit einem eigenen Ankleidezimmer sowie einem exklusiven Bad en suite mit Badewanne, XXL-Dusche, Doppelwaschbecken und Zugang zum Balkon.
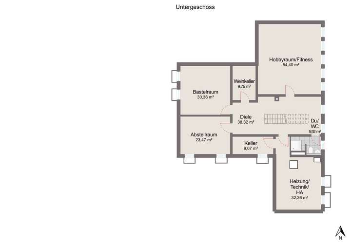
Der luxuriöse Wellnessbereich im Untergeschoss lässt keine Wünsche offen: eine exklusive Glas-Sauna der Marke Klafs, ein Tageslichtbad mit XXL-Dusche sowie ein angrenzender Fitnessraum sorgen für Entspannung auf höchstem Niveau. Ergänzt wird dieser Bereich durch einen Hobbyraum, einen stilvollen Weinkeller, eine Werkstatt sowie den Technikraum.
Ausstattung & Technik
• Raumhöhe 2,75 m auf allen Ebenen
• Heizkonzept: Gastherme kombiniert mit Erdwärme, Holzofen & moderner Wärmepumpe
• Große Doppelgarage mit Platz für bis zu 4 Fahrzeuge
• Hochwertige Materialien & stilvolle Ausstattung
• Terrasse, Balkon und ein herrlich angelegter Garten mit viel Privatsphäre
• Glas-Sauna von Klafs
• Kaminofen im Wohnbereich
• moderne Einbauküche mit Kochinsel
Diese außergewöhnliche Villa in Top-Lage von Schwäbisch Hall vereint architektonische Raffinesse, nachhaltige Technik und ein Höchstmaß an Lebensqualität.
Wohnen auf höchstem Niveau...
74523 Schwäbisch Hall
Die vollständige Adresse der Immobilie erhalten Sie vom Anbieter.
Auf Karte anzeigen
Die vollständige Adresse der Immobilie erhalten Sie vom Anbieter.
Finanzierungszertifikat
In nur zwei Minuten zu Ihrem persönlichen Finanzierungszertifkat.
Infos
| Haustyp | Villa |
|---|---|
| Wohnfläche ca. | 424 m2 |
| Grundstücksfläche | 3.126 m2 |
| Bezugsfrei ab | nach Absprache |
| Zimmer | 7 |
| Schlafzimmer | 3 |
| Badezimmer | 3 |
| Garage/Stellplatz | Garage |
| Anzahl Garage/Stellplatz | 2 |
Kosten
| Kaufpreis |
2.700.000 € |
|---|---|
| Provision |
2,38 % inkl. ges. MwSt. vom Kaufpreis. Die Provision ist verdient und wird fällig mit notarieller Beurkundung. Die Sparkasse hat einen provisionspflichtigen Maklervertrag in gleicher Höhe mit dem Verkäufer abgeschlossen. |
Finanzierungsrechner:
Kaufpreis:
600.000 €
Eigenkapital:
600.000 €
Monatliche Rate
0 €
Effektiver Jahreszins
0 %
Sollzinsbindung
10 Jahre
Bausubstanz & Energieausweis
| Baujahr | 2007 |
|---|---|
| Bauphase | Haus fertig gestellt |
| Objektzustand | Gepflegt |
| Qualität der Austattung | Gehoben |
| Heizungsart | Wärmepumpe |
| Wesentliche Energieträger | Gas, Strom, Holz |
| Energieausweis | liegt vor |
| Energieausweistyp | Bedarfsausweis |
| Energieverbrauchskennwert | 43,4 kWh/(m²*a) |
| Energieeffizienzklasse | A |
43,4
kWh/(m²*a)
Energieeffizienzklasse A
- A+
- A
- B
- C
- D
- E
- F
- G
- H
- 0
- 25
- 50
- 75
- 100
- 125
- 150
- 175
- 200
- 225
- >250
Beschreibung des Objekts
Ausstattung
Individuelle Ausstattungsmerkmale:
- Einbauküche
- Holz-/Schwedenofen
- attraktive Lage
Lage
Das Objekt befindet sich in einer ruhigen, ausschließlich von Anliegern genutzten Wohnstraße im schönen Schwäbisch Hall – eine stilvolle und angenehme Wohnadresse abseits des Durchgangsverkehrs. Die Nähe zum Stadtzentrum ist ideal: der historische Marktplatz und die Altstadt mit ihren Fachwerkhäusern, der Kirche St. Michael und zahlreichen Kulturstätten wie dem Hällisch Fränkischen Museum oder der Kunsthalle Würth sind nicht weit entfernt und bequem zu Fuß oder mit dem Fahrrad erreichbar. Kulturell und landschaftlich reizvoll: die Freilichtspiele auf der Großen Treppe, das Museum, Parkanlagen sowie die Comburg liegen ebenfalls in kurzer Reichweite.
Grundriss
Grundriss Untergeschoss
>
>
Grundriss Erdgeschoss
>
>
Grundriss Dachgeschoss
>
>
Adresse
74523 Schwäbisch Hall
Interessante Orte
Preis- und Lageinformationen
Preistrend für Bestandsimmobilien in Schwäbisch Hall