Im exklusiven Auftrag des ausführenden Bauträgers
In Mittenwalde-Brusendorf, einem reizvollen Ortsteil im Kreis Dahme-Spreewald, entstehen 9 elegante Reihenhäuser im Neubau nach modernsten Standards. Wir schaffen ein Zuhause in einer Umgebung, die sowohl naturnah als auch exzellent an die vitalen Zentren der Hauptstadt angebunden ist – ideal für Familien, die Wert auf Lebensqualität legen. Obwohl die Reihenhäuser Teil eines durchdachten Gesamtkonzepts sind, vermitteln sie dennoch jeweils durch ihre einzigartige Architektur und großzügige Gestaltung das Gefühl einer eigenständigen Einheit. Jedes Haus zeichnet sich durch seinen besonderen Charakter aus, der sich in den klaren Linien, den ausgewählten Materialien und der durchdachten Raumaufteilung widerspiegelt. Hier finden Sie ein Zuhause, das Ihre Persönlichkeit unterstreicht und höchsten Wohnansprüchen gerecht wird – maßgeschneidert für das Leben das Sie zu führen wünschen.
Solide Wertbeständigkeit:
Ihr zukünftiges Zuhause in Mittenwalde wird in Massivbauweise errichtet – ein Garant für Langlebigkeit, Stabilität und Werterhalt für Generationen. Wir setzen auf bewährte Handwerkskunst, begleitet von erfahrenen Bauingenieuren und regionalen Fachbetrieben, um Ihnen ein schlüsselfertiges Haus auf höchstem Niveau zu übergeben.
Gesundes Raumklima & Energieeffizienz:
Durch den Einsatz hochwertiger, diffusionsoffener und ökologischer Baustoffe schaffen wir ein gesundes Raumklima zu jeder Jahreszeit. Die massive Bauweise sorgt für hohe Wärmespeicherung, hervorragende Wärmedämmung und natürliche Atmungsaktivität, was Ihr Wohlbefinden steigert und gleichzeitig Ihre Energiekosten minimiert. Fußbdenheizungen in allen Räumen in Kombination mit einer modernen Luft-Wärmepumpe lassen Sie entspannt in Richtung Zukunft blicken. Die lichten Raumhöhen in den Geschossen erwirken ein offenes und luftiges Ambiente. Besonderes Highlight ist das Wohnzimmer mit beeindruckenden ca. 3,60m lichter Raumhöhe, das ein einzigartiges, großzügiges Wohngefühl vermittelt und Raum für Kreativität lässt.
Robuste Außenwände:
Errichtet aus Kalksandstein, präzise nach statischen Anforderungen und aktuellen Energieeffizienzstandards. Diese Bauweise garantiert Stabilität und hervorragende Dämmeigenschaften. Die zweischalige Bauweise mit 40 mm Mineralwolle-Schalldämmplatten in den Zwischenwänden sorgt zudem für einen herausragenden Schallschutz und maximale Privatsphäre.
Sie erwerben ein schlüsselfertiges und vollständig funktionsfähiges Haus. Das bedeutet für Sie: Einziehen und sich wohlfühlen, ohne sich um Bauprozesse oder zusätzliche Ausgaben kümmern zu müssen. Wir laden Sie ein, eine Welt voller Möglichkeiten hinsichtlich der individuellen Ausstattungsdetails zu entdecken: Für Ihr neues Zuhause haben Sie die Wahl aus einer vielfältigen Palette an Produkten namhafter Hersteller, die für höchste Qualität und Langlebigkeit stehen. Unsere erfahrenen Fachberater begleiten Sie persönlich durch unsere Musterflächen, wo Sie sich in Ruhe umsehen und jedes Detail erleben können. Vor jeder Entscheidung erhalten Sie umfassende Beratung, damit Sie entspannt und sicher Ihre individuellen Wünsche verwirklichen können.
Erfahrene Architekten kümmern sich um die gesamte Planung und Organisation, inklusive der Architekturplanung, der Bauorganisation, des Wärmeschutznachweises, der Statik und Tragwerkplanung. Sie können sich auf eine präzise und fachgerechte Umsetzung verlassen, die Ihre Vision Realität werden lässt. Die Bauunternehmer erstellen Ihr Haus in solider Handwerksarbeit und garantieren 5 Jahre Gewährleistung auf alle errichteten Bauwerke. Regelmäßige Kontrollen durch geschulte Bauleiter sichern höchste Qualitätsstandards in jeder Bauphase. Während des gesamten Bauprozesses stehen Ihnen diese als kompetente Ansprechpartner zur Verfügung. Regelmäßige Baustellenbesuche sind selbstverständlich möglich und können jederzeit v
Moderne Reihenhäuser mit Garten, Keller & flexibler Planung in ruhiger Lage von Mittenwalde
15749 Mittenwalde
Die vollständige Adresse der Immobilie erhalten Sie vom Anbieter.
Auf Karte anzeigen
Die vollständige Adresse der Immobilie erhalten Sie vom Anbieter.
Finanzierungszertifikat
In nur zwei Minuten zu Ihrem persönlichen Finanzierungszertifkat.
Infos
| Haustyp | Reihenmittelhaus |
|---|---|
| Etagenzahl | 2 |
| Wohnfläche ca. | 141 m2 |
| Grundstücksfläche | 191 m2 |
| Bezugsfrei ab | 3. Quartal 2026 |
| Zimmer | 5 |
| Schlafzimmer | 4 |
| Badezimmer | 2 |
| Anzahl Garage/Stellplatz | 2 |
Kosten
| Kaufpreis |
495.000 € |
|---|---|
| Provision |
2,38 % 2,38 % vom Kaufpreis inkl. 19 % gesetzlicher MwSt., zahlbar vom Käufer. Die Provision ist fällig und verdient mit Beurkundung des Kaufvertrages. Wir haben einen provisionspflichtigen Maklervertrag mit dem Verkäufer in gleicher Höhe abgeschlossen. |
Finanzierungsrechner:
Kaufpreis:
600.000 €
Eigenkapital:
600.000 €
Monatliche Rate
0 €
Effektiver Jahreszins
0 %
Sollzinsbindung
10 Jahre
Bausubstanz & Energieausweis
| Baujahr | 2026 |
|---|---|
| Objektzustand | Erstbezug |
| Qualität der Austattung | Gehoben |
| Heizungsart | Fußbodenheizung |
| Wesentliche Energieträger | Umweltwärme |
| Energieausweis | liegt vor |
| Energieausweistyp | Bedarfsausweis |
| Energieverbrauchskennwert | 32,0 kWh/(m²*a) |
| Energieeffizienzklasse | A |
32,0
kWh/(m²*a)
Energieeffizienzklasse A
- A+
- A
- B
- C
- D
- E
- F
- G
- H
- 0
- 25
- 50
- 75
- 100
- 125
- 150
- 175
- 200
- 225
- >250
Beschreibung des Objekts
Ausstattung
+ 9 Reihenhäuser (Reihenmittel- & Reihenendhäuser) nebst gemeinschaftlicher Außenanlage
+ Schlüsselfertiger Neubau im Erstbezug
+ real geteilte Flurstücke, private Grundstücksflächen
+ Großzügige ca. 177m² Wohn-Nutzfläche pro Einheit
+ Teilunterkellert für zusätzlichen Stauraum
+ geräumige, vom Wohnzimmer zugängliche Terrassen und Gartenanteile
+ Nachhaltige Bauweise mit Fokus auf Energieeffizienz & zeitgemäßer Ästhetik
+ effiziente Heizungsanlagen durch Luftwärmepumpe, auch gegen Aufpreis auch in Kombination mit Photovoltaik
+ gesundes Raumklima zu jeder Jahreszeit durch monolithische Bauweise & hohe Wärmespeicherung
+ 2 private PKW-Stellplätze pro Einheit
+ 5 Zimmer + Hobbyraum im UG mit flexibler Grundrissgestaltung (je nach Baufortschritt individuell anpassbar)
+ viel Platz für Ihr Homeoffice
+ eine separate Küche ohne Kompromisse
+ Wohnzimmer mit extra hohen Decken für großzügiges Raumgefühl
+ Fußbodenheizung in allen Räumen
+ Hochwertige Massivholztreppen
+ moderne Bäder mit Dusche und Badewanne
+ Glatt gespachtelte Wände im Q2-Standard
+ Hochwertige Markenfenster
+ Individuelle Ausstattungsvarianten aus namenhaften Markenprodukten
+ Ruhige Lage im wachsendem Wohnumfeld
+ Gute Verkehrsanbindung (B96, A13, A10, BER)
+ 5 Jahre Gewährleistung gemäß BGB
+ Optional: ca. 269 m² zusätzliche Gartenfläche gegen Aufpreis zu erwerben
Lage
Das Neubauprojekt in der Otto-Nuschke-Straße 18 entsteht im idyllischen Ortsteil Brusendorf der Stadt Mittenwalde. Eingebettet in eine ruhige, gewachsene Wohngegend mit ländlichem Charme, bietet der Standort ein hohes Maß an Lebensqualität – grün, familienfreundlich und dennoch hervorragend angebunden. Die aufgelockerte Bebauung und die naturnahe Umgebung schaffen eine angenehme Atmosphäre für alle, die Ruhe schätzen, ohne auf Nähe zur Stadt verzichten zu wollen.
Dank der schnellen Anbindung über die B96 sowie die Autobahn A13 und A10 sind die Metropolregion Berlin, der Flughafen BER sowie die Städte Königs Wusterhausen, Rangsdorf und Potsdam in kurzer Zeit erreichbar. So beträgt die Fahrzeit nach Berlin-Mitte (Alexanderplatz) rund 35 Minuten, der Flughafen BER ist in etwa 10 Minuten erreicht und auch nach Potsdam gelangt man in rund 30 Minuten.
Im näheren Umfeld finden sich sämtliche Einrichtungen des täglichen Bedarfs. Kindertagesstätten wie das „Koboldhaus“ oder „Regenbogen“ sowie die Grundschule Mittenwalde sind in nur wenigen Minuten erreichbar. Eine gute Nahversorgung ist durch Supermärkte wie Aldi, Rewe und Kaufland ebenso gegeben wie durch Bäckereien, Arztpraxen und weitere Dienstleister. Der öffentliche Nahverkehr, etwa durch die Buslinie 728 in Richtung S-Bahnhof Königs Wusterhausen und Bahnhof Rangsdorf, sorgt für zusätzliche Mobilität.
Auch in puncto Freizeit und Erholung hat die Umgebung viel zu bieten: Die nahegelegenen Seenlandschaften rund um Rangsdorf, weitläufige Rad- und Wanderwege sowie das vielseitige kulturelle und gastronomische Angebot in Königs Wusterhausen machen die Region besonders attraktiv. Die zentrale Lage zwischen Mittenwalde, Rangsdorf und Königs Wusterhausen eröffnet vielfältige Möglichkeiten für aktive Erholung und entspanntes Wohnen.
Ein Standort mit Perspektive – ideal für modernes, naturnahes Leben mit Stadtanbindung.
Sonstige Angaben
Datenschutz und Vertraulichkeit:
Wir bitten um Ihr Verständnis, dass wir Exposés nur an Interessenten versenden, die uns ihre vollständige Adresse sowie Telefonnummer mitteilen. Ihre Daten behandeln wir selbstverständlich vertraulich und geben sie nicht an Dritte weiter.
Zuverlässige Begleitung:
Von der vertraulichen Erstberatung bis zur Übergabe stehen wir Ihnen jederzeit zuverlässig und kompetent zur Seite. Ihre Zufriedenheit ist uns wichtig– erst wenn Sie am Ende zufrieden sind, sind wir es auch.
Kontaktmöglichkeiten:
Sie erreichen uns unter der E-Mail-Adresse info@heeseundacar.de oder direkt telefonisch unter +49 30 93917603. Weitere Informationen finden Sie auf unserer Website: www.heeseundacar.de.
Wichtige Hinweise:
Haftungsausschluss:
Bitte beachten Sie, dass die von uns bereitgestellten Objektinformationen, Unterlagen, Pläne usw. vom Verkäufer oder Vermieter stammen. Daher können wir keine Haftung für die Richtigkeit oder Vollständigkeit der Angaben übernehmen. Es liegt in der Verantwortung unserer Kunden, die Informationen auf ihre Richtigkeit zu überprüfen. Alle Immobilienangebote sind freibleibend und vorbehaltlich von Irrtümern, Zwischenverkäufen oder -vermietungen sowie sonstigen Zwischenverwertungen.
Geldwäschegesetz:
Als Immobilienmaklerunternehmen sind wir gemäß § 2 Abs. 1 Nr. 14 und § 11 Abs. 1, 2 des Geldwäschegesetzes (GwG) verpflichtet, die Identität des Vertragspartners bei der Begründung einer Geschäftsbeziehung festzustellen und zu überprüfen, sobald ein ernsthaftes Interesse am Immobilienkaufvertrag besteht. Hierfür müssen wir gemäß § 11 Abs. 4 GwG relevante Daten Ihres Personalausweises festhalten (sofern Sie als natürliche Person handeln), beispielsweise durch eine Kopie. Bei juristischen Personen benötigen wir eine Kopie des Handelsregisterauszugs, aus dem der wirtschaftlich Berechtigte hervorgeht. Das Geldwäschegesetz schreibt vor, dass der Makler diese Kopien und Unterlagen fünf Jahre lang aufbewahren muss. Als unser Vertragspartner haben Sie auch eine Mitwirkungspflicht gemäß § 11 Abs. 6 GwG.
Grundriss
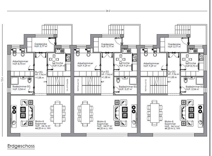
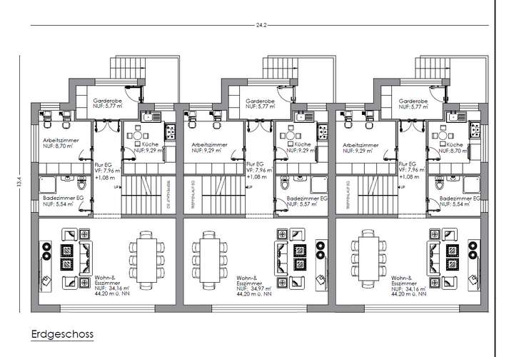
Grundrisse im Erdgeschoss
>
>
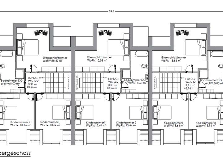
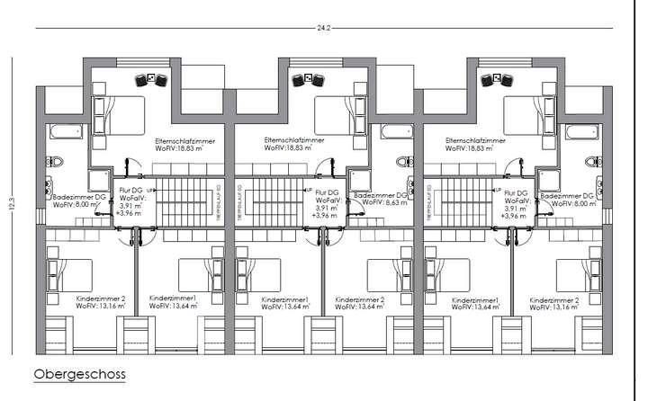
Grundrisse im Obergeschoss
>
>
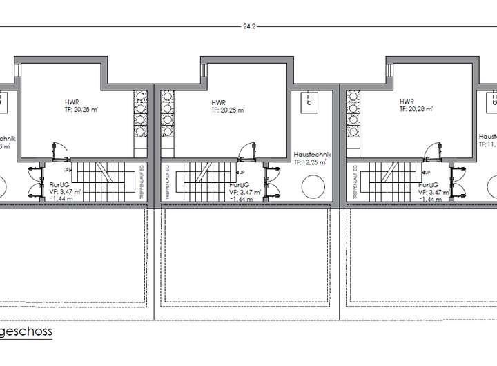
Grundrisse im Untergeschoss
>
>
Adresse
15749 Mittenwalde
Interessante Orte
Preis- und Lageinformationen
Preistrend für Bestandsimmobilien in Mittenwalde