Großzügige Doppelhaushälfte mit ca. 400 qm großen parkähnlichem großem in Süd-Westausrichtung gelegenen Garten. Das Anwesen wurde 1994 einer allgemeinen und umfangreichen Sanierung und Modernisierung im Bereich Bäder, Böden und den entsprechenden Leitungen unterzogen und stellt sich dementsprechend in einem modernen und zeitgemäßen Zustand dar. 2023 wurde eine neue Gas-Zentralheizung installiert.
Das Haus sowie die Dachbodendecke sind gedämmt. Eine geräumige Doppelgarage liegt direkt am Haus an.
Die 1928 in grundsolider Bauweise erbaute DHH erstreckt sich über Erd- Ober- und Untergeschoss und ist wie folgt aufgeteilt.
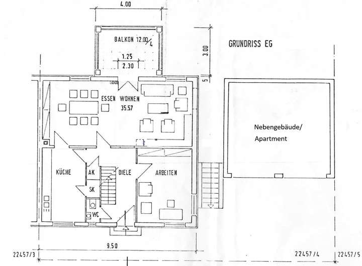
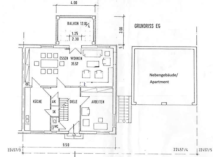
Erdgeschoss mit ca. 74 qm:
Wohn-/Essbereich, Arbeitszimmer, Küche, Gäste-WC, 1 Speisekammern, 1 Abstellkammer sowie die geräumige Terrasse.
Obergeschoss mit ca. 70 qm:
3 Schlafzimmer, TL-Bad mit Wanne und Dusche. Das Schlafzimmer ist mit einer Klimaanlage ausgestattet.
Untergeschoss mit ca. 40 qm Wohnfläche und 32 qm Nutzfläche
Wohnzimmer, Büro.
Waschküche, Technikraum und Vorratskammer.
Die separat zugängliche am Haus anliegende Einliegerwohnung mit ca. 36 qm ist mit einem Bad ausgestattet.
Der Garten ist mit einem zementierten Grillplatz angelegt sowie einem Gartenhaus bebaut.
Die Doppelgarage wird zusätzlich zum Kaufpreis mit Euro 25.000,- berechnet.
MA Neuostheim in gesuchter Villenlage: Charmante DHH mit parkähnlichem Garten
68163 Mannheim
Die vollständige Adresse der Immobilie erhalten Sie vom Anbieter.
Auf Karte anzeigen
Die vollständige Adresse der Immobilie erhalten Sie vom Anbieter.
Finanzierungszertifikat
In nur zwei Minuten zu Ihrem persönlichen Finanzierungszertifkat.
Infos
| Haustyp | Doppelhaushaelfte |
|---|---|
| Etagenzahl | 3 |
| Wohnfläche ca. | 220 m2 |
| Nutzfläche | 32 m2 |
| Grundstücksfläche | 615 m2 |
| Bezugsfrei ab | 15.02.2026 |
| Zimmer | 5 |
| Schlafzimmer | 3 |
| Badezimmer | 2 |
| Garage/Stellplatz | Garage |
| Anzahl Garage/Stellplatz | 2 |
Kosten
| Kaufpreis |
1.290.000 € |
|---|---|
| Preis für Garage/Stellplatz | 25.000 € |
| Provision |
46.945.50 Euro inkl. 19% MwSt Der Käufer zahlt im Erfolgsfall an die Firma Edelstein Immobilien eine Maklerprovision in Höhe von 3% des Kaufpreises zzgl. 19% MwSt. = 3,57% des Kaufpreises. Die Maklerprovision ist verdient und fällig mit notarieller Beurkundung. Dieses Exposé ist eine Vorabinformation, als Rechtsgrundlage gilt allein der notariell abgeschlossene Kaufvertrag. |
Finanzierungsrechner:
Kaufpreis:
600.000 €
Eigenkapital:
600.000 €
Monatliche Rate
0 €
Effektiver Jahreszins
0 %
Sollzinsbindung
10 Jahre
Bausubstanz & Energieausweis
| Baujahr | 1965 |
|---|---|
| Letzte Sanierung | 2023 |
| Objektzustand | Neuwertig |
| Qualität der Austattung | Gehoben |
| Heizungsart | Zentralheizung |
| Wesentliche Energieträger | Gas |
| Energieausweis | liegt zur Besichtigung vor |
Beschreibung des Objekts
Ausstattung
- Parkett
- Terracotta Fließen
- TL-Bad mit Wanne und Dusche
- TL-Gäste-WC
- Terrasse
- Doppel Garage
- Klimaanlage
- Brunnen
- Gartenhaus
- Grillplatz
- elektronische Gartenbewässerungsanlage
Lage
Sehr gesuchte Wohnlage im Villenviertel von Mannheim-Neuostheim.
Sonstige Angaben
Alle Angaben nach bestem Wissen und beruhen auf vom Eigentümer erteilten Informationen. Eine Haftung auf deren Richtigkeit und Vollständigkeit kann nicht übernommen werden. Irrtum und Zwischenverkauf vorbehalten. Als Rechtsgrundlage gilt allein der notariell beurkundete Kaufvertrag.
Dieses Exposé ist eine Vorabinformation, als Rechtsgrundlage gilt allein der notariell abgeschlossene Kaufvertrag .
Grundriss
Grundriss OG
>
>
Grundriss EG
>
>
Grundriss KG
>
>
Adresse
68163 Mannheim
Interessante Orte
Preis- und Lageinformationen
Preistrend für Bestandsimmobilien in Neuostheim / Neuhermsheim