In der Schulstraße 6 entsteht ein Mehrfamilienhaus mit 5 Eigentumswohnungen mit 1, 2 und 3 Zimmern - ideal für Singles, Paare und Familien.
Finanzierungszertifikat
In nur zwei Minuten zu Ihrem persönlichen Finanzierungszertifkat.
Infos
| Wohnungskategorie | Etagenwohnung |
|---|---|
| Etage | 1 von |
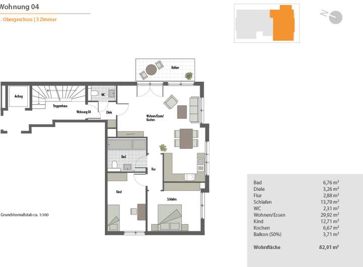
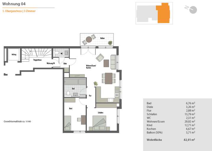
| Wohnfläche ca. | 82 m2 |
| Bezugsfrei ab | 01.06.2026 |
| Zimmer | 3 |
Kosten
| Kaufpreis |
478.000 € |
|---|---|
| Provision | Nein |
Finanzierungsrechner:
Kaufpreis:
600.000 €
Eigenkapital:
600.000 €
Monatliche Rate
0 €
Effektiver Jahreszins
0 %
Sollzinsbindung
10 Jahre
Bausubstanz & Energieausweis
| Baujahr | 2026 |
|---|---|
| Objektzustand | Erstbezug |
| Qualität der Austattung | Normal |
| Heizungsart | Wärmepumpe |
Beschreibung des Objekts
Ausstattung
Alle Wohnungen verfügen über eine Terrasse oder Balkon. Die Beheizung erfolgt über eine zentrale Fußbodenheizung mit zentraler Warmwasserversorgung. Moderne Fliesen, Parkettböden und Sanitärgegenstände sind gemäß Baubeschreibung im Preis enthalten und können im Rahmen eines Mustersortiments ausgesucht werden. Natürlich sind auch individuelle Ausstattungen auf Anfrage möglich, so dass Sie Ihr neues Zuhause nach Ihren Vorstellungen gestalten können.
Lage
Pfullingen liegt im Herzen Baden-Württembergs, eingebettet in das UNESCO-Biosphärengebiet Schwäbische Alb. Die idyllische Lage am Fuß der Achalm und des Georgenbergs bietet zahlreiche Freizeitmöglichkeiten. Die Schulstraße 6 liegt zentral und ruhig im Herzen von Pfullingen. Einkaufsmöglichkeiten, Bäckereien, Apotheken sowie Cafés und Restaurants sind in wenigen Minuten zu Fuß erreichbar. Die Nähe zur Innenstadt Reutlingen sowie die gute Anbindung über B312 und B313 machen die Lage auch für Pendler attraktiv.
Grundriss
Grundriss_W04
>
>
Adresse
Schulstraße 6, 72793 Pfullingen
Interessante Orte
Preis- und Lageinformationen
Preistrend für Bestandsimmobilien in Pfullingen