In einer der begehrtesten Wohnlagen von Dahlenburg präsentiert sich dieses großzügige Ein- bis Zweifamilienhaus als vielseitig nutzbare und zugleich äußerst attraktive Immobilie. Mit einer Gesamtwohnfläche von rund 260 m² bietet das Haus genügend Raum für Familien, Mehrgenerationenwohnen oder eine rentable Kapitalanlage.
Das im Jahr 1972 errichtete Gebäude besticht durch seine solide Bauweise und den gepflegten Gesamtzustand. Auf zwei Wohnebenen stehen im Erdgeschoss etwa 150 m² und im Obergeschoss rund 110 m² zur Verfügung – großzügig geschnitten, hell und mit einem durchdachten Grundriss, der zahlreiche Nutzungsmöglichkeiten eröffnet. Ergänzt wird das Raumangebot durch eine umfangreiche Zubehörfläche im Souterrain, die über Wohnraumqualität verfügt und zusätzlichen Platz für Hobby, Gäste oder Büro bietet.
In den letzten Jahren wurde die Immobilie umfangreich modernisiert und befindet sich in einem sehr guten Zustand. Drei moderne Einbauküchen wurden bereits neu installiert, ebenso wie drei geschmackvoll gestaltete Badezimmer, die mit hochwertigen Armaturen und zeitgemäßer Ausstattung überzeugen. Auch die Fußbodenbeläge wurden erneuert und schaffen ein harmonisches und gepflegtes Wohnambiente in allen Bereichen. Die 2016 erneuerte Gaszentralheizung sorgt für eine effiziente und zuverlässige Wärmeversorgung.
Das Haus lässt sich flexibel an die individuellen Bedürfnisse seiner neuen Eigentümer anpassen – ob als großzügiges Einfamilienhaus mit viel Platz zum Leben und Arbeiten, als Mehrgenerationenhaus mit getrennten Wohnbereichen oder als renditestarke Kapitalanlage mit mehreren vermietbaren Einheiten.
Eine große Doppelgarage sowie weitere Stellflächen im Außenbereich bieten komfortable Parkmöglichkeiten. Der Garten präsentiert sich gepflegt und bietet mit seiner angenehmen Größe genügend Platz für Erholung, Freizeit und Familienleben im Grünen.
Die Lage dieses Objekts überzeugt auf ganzer Linie: Dahlenburg gilt als ruhiger, familienfreundlicher Wohnort mit sehr guter Infrastruktur. Einkaufsmöglichkeiten, Schulen, Kindergärten und ärztliche Versorgung sind schnell erreichbar, ebenso wie die nahegelegene Stadt Lüneburg, die in kurzer Fahrzeit erreichbar ist.
Weitere Informationen erhalten Sie gern telefonisch oder bei einer Besichtigung.
Flexibles Wohnkonzept: Ein Haus, viele Möglichkeiten
21368 Dahlenburg
Die vollständige Adresse der Immobilie erhalten Sie vom Anbieter.
Auf Karte anzeigen
Die vollständige Adresse der Immobilie erhalten Sie vom Anbieter.
Finanzierungszertifikat
In nur zwei Minuten zu Ihrem persönlichen Finanzierungszertifkat.
Infos
| Haustyp | Einfamilienhaus |
|---|---|
| Wohnfläche ca. | 260 m2 |
| Grundstücksfläche | 1.564 m2 |
| Zimmer | 7 |
Kosten
| Kaufpreis |
397.500 € |
|---|---|
| Provision |
3,57 % inkl. MwSt. |
Finanzierungsrechner:
Kaufpreis:
600.000 €
Eigenkapital:
600.000 €
Monatliche Rate
0 €
Effektiver Jahreszins
0 %
Sollzinsbindung
10 Jahre
Bausubstanz & Energieausweis
| Baujahr | 1972 |
|---|---|
| Objektzustand | Gepflegt |
| Wesentliche Energieträger | Gas |
| Energieausweis | liegt vor |
| Energieausweistyp | Bedarfsausweis |
| Energieverbrauchskennwert | 188,8 kWh/(m²*a) |
| Energieeffizienzklasse | F |
188,8
kWh/(m²*a)
Energieeffizienzklasse F
- A+
- A
- B
- C
- D
- E
- F
- G
- H
- 0
- 25
- 50
- 75
- 100
- 125
- 150
- 175
- 200
- 225
- >250
Beschreibung des Objekts
Lage
Das vielseitige Dahlenburg liegt westlich am Naturpark Elbhöhen-Wendland und bietet sowohl städtische als auch ländliche Vorzüge. So finden sich diverse Einkaufsmöglichkeiten, Grund- und weiterführende Schulen, Ärzte und einige Restaurants direkt im Ortskern Dahlenburgs. Sehnt man sich hingegen nach Ruhe und Erholung, so lädt Dahlenburgs umliegende Landschaft jederzeit zu einem Spaziergang in vielseitigen Wäldern, an Flüssen wie der Neetze oder zwischen Feldern und Wiesen ein.
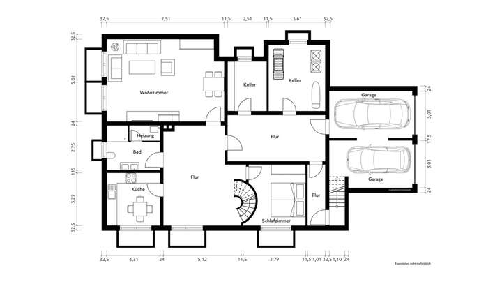
Grundriss
Grundriss EG
>
>
Grundriss OG
>
>
Grundrisse KG
>
>
Adresse
21368 Dahlenburg
Interessante Orte
Preis- und Lageinformationen
Preistrend für Bestandsimmobilien in Dahlenburg