Charmantes Dreifamilienhaus mit Potential und traumhaftem Garten
Dieses gepflegte Wohnhaus mit drei Wohneinheiten wurde im Jahr 1960 erbaut und im Laufe der Zeit regelmäßig modernisiert. Es befindet sich in einem guten, soliden Zustand und bietet interessante Möglichkeiten sowohl für Eigennutzer als auch Kapitalanleger.
Im Erdgeschoss befindet sich eine helle 3-Zimmer-Wohnung mit gutem Grundriss.
Das Obergeschoss verfügt über eine weitere 3-Zimmer-Wohnung mit identischem Grundriss.
Im Dachgeschoss wurde eine gemütliche 2-Zimmer-Wohnung ausgebaut.
Das Haus erhielt eine Vollwärmedämmung, neue Fenster 1994 sowie eine Gasheizung.
Der Heizraum ist gut ausgestattet, die Heizung befindet sich in einem gepflegten Bestandssystem,
sodass derzeit keine Veränderungen erforderlich sind.
Das Dach wurde ausgebaut, und insgesamt präsentiert sich das Objekt in einem gepflegten Zustand.
Einige Modernisierungsmaßnahmen können nach eigenem Geschmack vorgenommen werden,
um das Haus auf den heutigen Wohnstandard anzupassen.
Flexibel nutzbares Mehrfamilienhaus:
Die Erdgeschosswohnung wird zum 01.03.2026 frei, die Dachgeschosswohnung folgt ab dem 01.04.2026. Das Obergeschoss ist derzeit vermietet.(Nach Absprache)
Ein besonderes Highlight dieses Hauses ist der traumhafte Garten: liebevoll angelegt,
weitläufig und voller Möglichkeiten.
Hier können Sie entspannen, gärtnern, feiern oder einfach die Ruhe genießen –
ein Ort, der zum Verweilen einlädt und viel Raum zur persönlichen Entfaltung bietet.
Ob Sie sich eine grüne Oase, einen Spielbereich für Kinder oder Platz für Gemüse- und
Blumenbeete wünschen hier können Sie Ihre Ideen Wirklichkeit werden lassen.
Ein ideales Haus für Käufer, die Wert auf ein solides Gebäude mit Potential legen und Freude an einem außergewöhnlich schönen Grundstück haben.
Wir freuen uns auf sympathische und zuverlässige Interessenten, die dieses Haus
mit neuem Leben füllen möchten.
Wenn wir Ihr Interesse geweckt haben und Sie sich nach einem neuen Rückzugsort in
bester Lage umsehen, freuen wir uns über Ihre Anfrage.
Aus Diskretionsgründen werden nur ausgewählte Bilder veröffentlicht.
Gerne senden wir Ihnen auf Anfrage weitere Unterlagen und Grundrisse zu.
Mehrfamilienhaus in sehr guter Lage
71711 Steinheim an der Murr
Die vollständige Adresse der Immobilie erhalten Sie vom Anbieter.
Auf Karte anzeigen
Die vollständige Adresse der Immobilie erhalten Sie vom Anbieter.
Finanzierungszertifikat
In nur zwei Minuten zu Ihrem persönlichen Finanzierungszertifkat.
Infos
| Haustyp | Mehrfamilienhaus |
|---|---|
| Wohnfläche ca. | 208 m2 |
| Grundstücksfläche | 878 m2 |
| Bezugsfrei ab | nach Vereinbarung |
| Zimmer | 8 |
| Anzahl Garage/Stellplatz | 4 |
Kosten
| Kaufpreis |
685.600 € |
|---|---|
| Provision |
3,57% inkl. MwSt. |
Finanzierungsrechner:
Kaufpreis:
600.000 €
Eigenkapital:
600.000 €
Monatliche Rate
0 €
Effektiver Jahreszins
0 %
Sollzinsbindung
10 Jahre
Bausubstanz & Energieausweis
| Baujahr | 1961 |
|---|---|
| Heizungsart | Gas-Heizung |
| Energieausweis | liegt vor |
| Energieausweistyp | Bedarfsausweis |
| Energieverbrauchskennwert | 157,0 kWh/(m²*a) |
| Energieeffizienzklasse | E |
157,0
kWh/(m²*a)
Energieeffizienzklasse E
- A+
- A
- B
- C
- D
- E
- F
- G
- H
- 0
- 25
- 50
- 75
- 100
- 125
- 150
- 175
- 200
- 225
- >250
Beschreibung des Objekts
Ausstattung
**Ausstattung**
* **Badezimmer mit Tageslicht**
* **Gäste-WC**, ebenfalls mit Tageslicht
* **Gute Raumaufteilung** in allen Wohneinheiten
* **Optimale Sonneneinstrahlung
*** die Belichtung und Lage des Hauses sind einmalig
* **Vollwärmeschutz**
* ** Fenster 1994**
* **Gasheizung** (Bestandssystem, d. keine Änderungen erforderlich)
* **Zwei Garagen**
* **Großer, traumhafter Garten**
Der Garten ist ein besonderes Highlight des Hauses –
großzügig, sonnig und vielseitig nutzbar.
Hier können Sie
Feiern, Grillen oder mit Familie und Freunden entspannen.
Kinder finden reichlich Platz zum Spielen und Toben,
während Gartenliebhaber Raum für eigene
Gestaltungsideen haben.
Ein Ort, der zum Wohlfühlen und Verweilen einlädt –
hier können Sie sich verwirklichen!
Ein ideales Haus für Käufer, die Wert auf ein solides Gebäude
mit Potential legen und die Vorzüge eines außergewöhnlich
schönen Gartens zu schätzen wissen.
Wir freuen uns auf sympathische und zuverlässige Interessenten,
die dieses Haus mit neuem Leben füllen möchten.
**Vereinbaren Sie gerne einen persönlichen Besichtigungstermin.**
Lage
Eine UMGEBUNG ZUM WOHLFÜHLEN im wunderschönen Bottwartal. Einziehen und heimisch fühlen. Hier wird ein Traum von Wohnen wahr.
Ihr neues Zuhause liegt in einem ruhigen Wohngebiet von Steinheim an der Murr, einer Stadt im Landkreis Ludwigsburg mit mehr als 12.000 Einwohnern.
Nur wenige Kilometer trennen Sie vom Zentrum von Steinheim, das sich zu Fuß, mit dem Auto oder öffentlichen Verkehrsmitteln zeitnah erreichen lässt. Die attraktiven Busverbindungen bringen Sie in kürzester Zeit zur S-Bahn Marbach oder S-Bahn Erdmannhausen.
Sämtliche Einkaufsmöglichkeiten des täglichen Bedarfs befinden sich in unmittelbarer Nähe.
Der Ort liegt gebettet in einer malerischen, von Weinbergen und Feldern geprägten Naturlandschaft. Als Wohnort besticht Steinheim durch einen historischen Stadtkern, vielseitige Erholungs- und Freizeitangebote sowie eine ausgeprägte Infrastruktur.
Sie haben Kinder? In unmittelbarer Nähe Ihres Zuhauses befindet sich die Blankenstein-Grundschule, die Riedbach-Gemeinschaftsschule und die Erich Kästner Realschule sowie das bekannte Friedrich-Schiller-Gymnasium in Marbach.
Freuen Sie sich außerdem auf eine Vielzahl kultureller und kulinarischer Entdeckungen! Neben den vielen Möglichkeiten, die Natur zu erkunden, bietet Steinheim ein breites Angebot an örtlichen Vereinen für alle Altersgruppen.
Sonstige Angaben
Die Angaben in diesem Exposé beruhen auf uns erteilten Informationen. Eine Haftung für die Richtigkeit und Vollständigkeit können wir jedoch nicht übernehmen. Unser Nachweis- und/oder Vermittlungshonorar beträgt vom Käufer bei einem Kauf 3,57% des Kaufpreises, inklusive der gesetzlichen Mehrwertsteuer, fällig bei Vertragsabschluss.
Sie benötigen Hilfe bei Ihrer Finanzierung? Wir bieten zahlreiche Möglichkeiten und ein Top Service an. Besuchen Sie uns auf unserer Website:
www.kube5.de/baufinanzierung/
WICHTIG – Bitte beachten:
Bei Interesse an dieser Immobilie füllen Sie bitte das Kontaktformular vollständig aus. Bitte haben Sie Verständnis dafür, dass wir nur Anfragen bearbeiten können, bei denen die vollständige Adresse und Telefonnummer angegeben ist. Zu diesem Angebot liegt ein ausführliches Exposé mit weiteren Detailinformationen und vollständiger Objektadresse vor, das Sie gerne bei uns anfordern können.
Weitere Angebote finden Sie auf unserer Website:
www.kube.de
Unser Service für Mieter:
Wir unterstützen Sie bei der Suche nach einer geeigneten Wohnung und auch bei der Nachvermietung Ihrer Immobilie.
Unser Service für Eigentümer und Vermieter:
Möchten Sie Ihre Immobilie vermieten oder verkaufen?
Wir unterstützen Sie gerne fachkundig und unkompliziert. Wir bieten diskrete und seriöse Beratung rund um die
Immobilie:
Bewertung Ihrer Immobilie anhand der aktuellen Marktgegebenheiten
Entwicklung einer Vermarktungsstrategie für Vermietung oder Verkauf
Machen Sie sich unsere langjährige Markterfahrung zunutze, um Ihre Ziele zu erreichen. Rufen Sie uns an oder senden Sie uns eine E-Mail. Gerne stehen wir Ihnen auch für ein unverbindliches persönliches Gespräch oder eine Besichtigung Ihres Objekts zur Verfügung.
Hinweis zum Geldwäschegesetz: Gemäß § 2 Abs. 1 Nr. 10 GwG sind Immobilienvermittler verpflichtet, Kaufinteressenten zu identifizieren. Hierzu müssen von jedem Interessenten die persönlichen Daten sowie die
Kontaktdaten aufgenommen und überprüft werden.
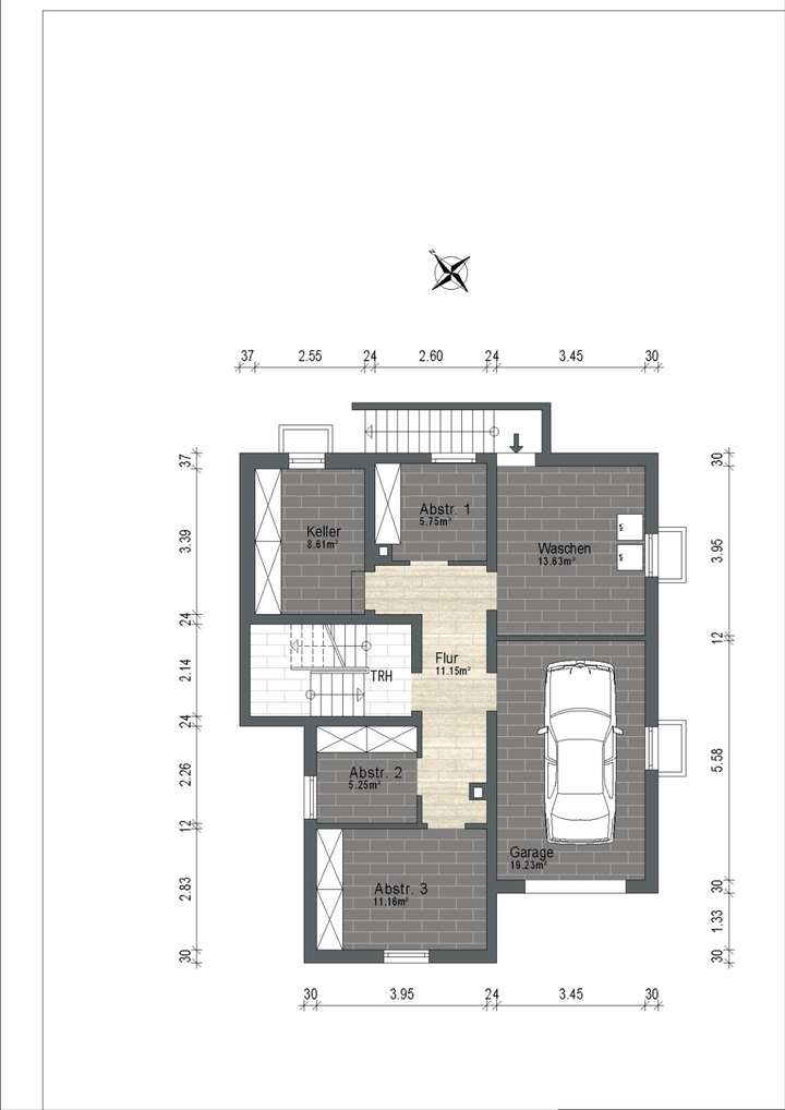
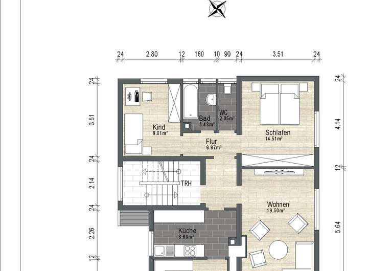
Grundriss
Grundriss UG
>
>
Grundriss EG
>
>
Grundriss OG
>
>
Grundriss DG pdf
>
>
Adresse
71711 Steinheim an der Murr
Interessante Orte
Preis- und Lageinformationen
Preistrend für Bestandsimmobilien in Steinheim an der Murr