Dieses beeindruckende Mehrfamilienhaus bietet eine hervorragende Gelegenheit für Investoren oder große Familien.
Mit einer geplanten Wohnfläche von ca. 443 m² und einem Grundstück von 565 m² präsentiert sich dieses Objekt in Pforzheim-Würm als eine solide Investition in einer gefragten Lage.
Das Baujahr vom Mehrfamilienhaus konnte nicht eindeutig ermittelt werden, wir gehen davon aus, dass das Haus ca. 1910 massiv erbaut wurde.
Die letzte Modernisierung fand im Jahr 2020 statt, wobei Teile des Hauses saniert wurden. Die Ausstattung ist normal und funktional, mit einer Mischung aus Laminat, Fliesen und Beton als Bodenbelag. Einige Bereiche sind ohne Bodenbelag, was individuelle Gestaltungsmöglichkeiten bietet.
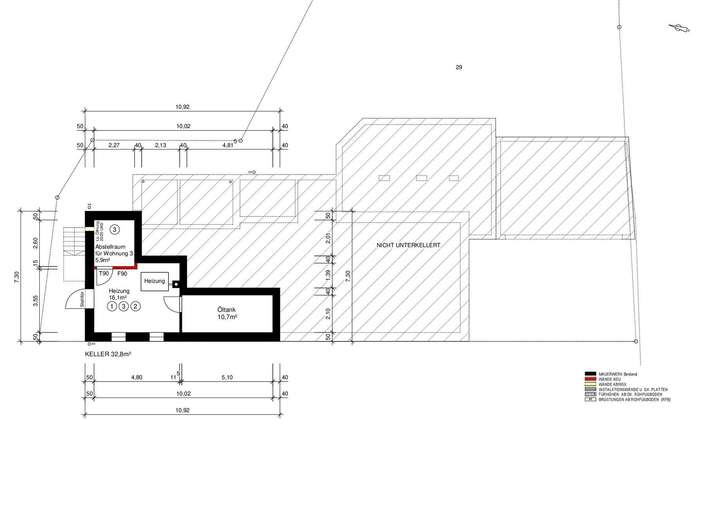
Kellergeschoss, teilunterkellert: Heizraum mit Öl-Heizung und Heizöl-Tanks.
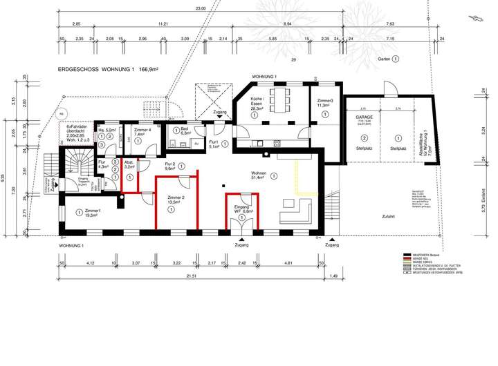
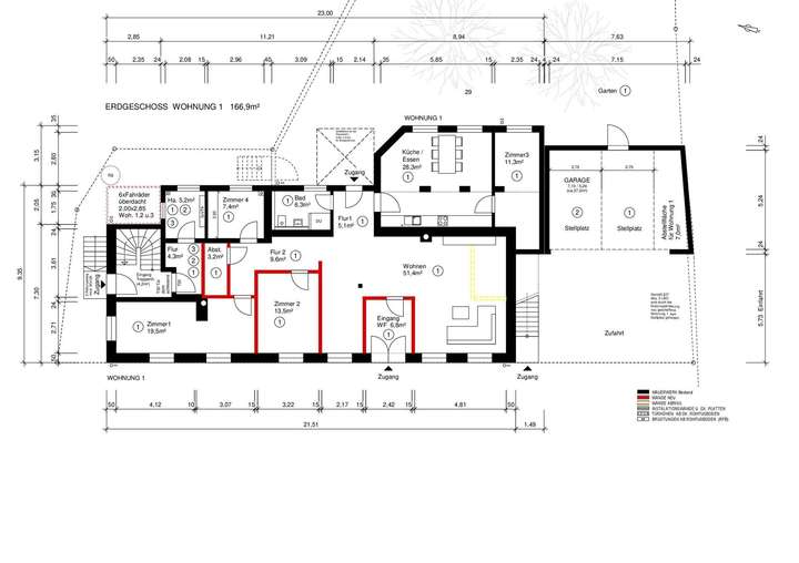
Erdgeschoss: Wohnung 1
Geplant wurde eine Wohnung mit ca. 166 m². Diese Wohnung ist noch nicht fertiggestellt.
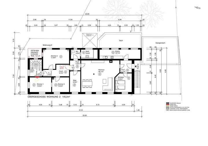
Obergeschoss: Wohnung 2
Geplant wurde eine Wohnung mit ca. 145 m². Diese Wohnung ist noch nicht fertiggestellt.
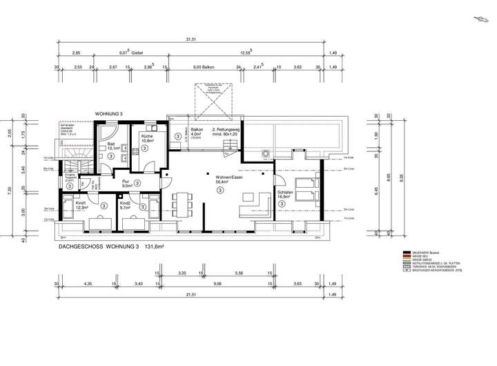
Dachgeschoss: Wohnung 3
4-Zimmer-Wohnung mit Balkon, ca. 131 m².
Zu den besonderen Merkmalen dieses Hauses gehören eine Doppelgarage und ein gepflegter Garten
Dieses Mehrfamilienhaus bietet nicht nur Wohnraum, sondern auch Potential für Erweiterungen und Anpassungen, um den individuellen Bedürfnissen gerecht zu werden. Die zentrale Lage in Pforzheim-Würm macht es zudem attraktiv für Mieter und gewährleistet eine hohe Vermietbarkeit.
Teilsaniertes 3-Familienhaus in Pforzheim-Würm
75181 Pforzheim
Die vollständige Adresse der Immobilie erhalten Sie vom Anbieter.
Auf Karte anzeigen
Die vollständige Adresse der Immobilie erhalten Sie vom Anbieter.
Finanzierungszertifikat
In nur zwei Minuten zu Ihrem persönlichen Finanzierungszertifkat.
Infos
| Haustyp | Mehrfamilienhaus |
|---|---|
| Etagenzahl | 3 |
| Wohnfläche ca. | 443 m2 |
| Grundstücksfläche | 565 m2 |
| Bezugsfrei ab | sofort |
| Zimmer | 14 |
| Schlafzimmer | 11 |
| Badezimmer | 4 |
| Anzahl Garage/Stellplatz | 2 |
Kosten
| Kaufpreis |
599.000 € |
|---|---|
| Provision | Nein |
Finanzierungsrechner:
Kaufpreis:
600.000 €
Eigenkapital:
600.000 €
Monatliche Rate
0 €
Effektiver Jahreszins
0 %
Sollzinsbindung
10 Jahre
Bausubstanz & Energieausweis
| Baujahr | 1910 |
|---|---|
| Letzte Sanierung | 2024 |
| Qualität der Austattung | Normal |
| Heizungsart | Zentralheizung |
| Wesentliche Energieträger | Öl |
| Energieausweis | liegt vor |
| Energieausweistyp | Bedarfsausweis |
| Energieverbrauchskennwert | 178,0 kWh/(m²*a) |
| Energieeffizienzklasse | F |
178,0
kWh/(m²*a)
Energieeffizienzklasse F
- A+
- A
- B
- C
- D
- E
- F
- G
- H
- 0
- 25
- 50
- 75
- 100
- 125
- 150
- 175
- 200
- 225
- >250
Beschreibung des Objekts
Lage
Die Immobilie befindet sich im charmanten Stadtteil Würm von Pforzheim, einer beliebten Wohngegend, die Ruhe und Stadtnähe perfekt miteinander verbindet. Würm liegt idyllisch am Rande des Schwarzwalds und bietet eine malerische Umgebung mit viel Grün und Natur.
- Die Anbindung an das öffentliche Verkehrsnetz ist hervorragend. Die Bushaltestelle ist nur einen kurzen Spaziergang entfernt und bietet eine direkte Verbindung in die Pforzheimer Innenstadt.
- Einkaufsmöglichkeiten, Schulen und Kindergärten sind in der Nähe verfügbar, sodass der tägliche Bedarf bequem gedeckt werden kann.
- Die Autobahnanbindung (A8) ist nur wenige Minuten entfernt, was eine schnelle und unkomplizierte Erreichbarkeit anderer Städte ermöglicht.
- Pforzheims Stadtzentrum mit seinen vielfältigen Einkaufsmöglichkeiten, Restaurants und kulturellen Angeboten ist mit dem Auto in etwa 15 Minuten zu erreichen.
- Die umliegende Natur lädt zu Spaziergängen, Radtouren und anderen Outdoor-Aktivitäten ein.
Diese Lage bietet somit eine ideale Kombination aus ländlichem Flair und städtischer Infrastruktur.
Grundriss
Grundriss Keller
>
>
Grundriss EG Whg 1
>
>
Grundriss OG Whg 2
>
>
Grundriss DG Whg 3
>
>
Adresse
75181 Pforzheim
Interessante Orte
Preis- und Lageinformationen
Preistrend für Bestandsimmobilien in Würm