Im Weinort Sprendlingen, inmitten der Region Rheinhessen, wird ein exklusives Neubauprojekt, das modernen Wohnkomfort, energieeffiziente Bauweise und hervorragende Zukunftsperspektiven vereint. Die hier angebotene Doppelhaushälfte im beliebten Neubaugebiet „Wißberg“ überzeugt mit gehobener Ausstattung und einem nachhaltigen Energiekonzept – ideal für Familien, Paare oder Berufspendler, die ein ruhiges, naturnahes Zuhause mit guter Anbindung suchen. Gleichzeitig bietet die Immobilie auch für Kapitalanleger eine attraktive Gelegenheit, in eine wertstabile, förderfähige Immobilie mit langfristigem Renditepotenzial zu investieren.
Die moderne Doppelhaushälfte bietet mit rund 134 m² Wohnfläche mit insgesamt fünf Zimmern ausreichend Platz für verschiedene Lebensmodelle – sei es für die junge Familie, das Paar mit Homeoffice-Bedarf oder auch die Nutzung als Mehrgenerationenwohnen.
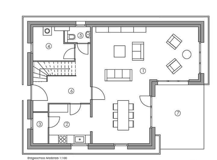
Im Erdgeschoss erwartet Sie ein einladender Wohn- und Essbereich, der durch bodentiefe Fenster lichtdurchflutet ist und einen direkten Zugang zur großzügigen Terrasse und dem privaten Garten bietet – ideal für entspannte Stunden im Grünen oder gesellige Abende mit Freunden. Die separate Küche bietet ausreichend Platz für Kochvergnügen und Familienleben und lässt sich bei Wunsch auch offen gestalten. Der separate Abstellraum kann dabei als Vorratskammer oder als Haushaltsfläche genutzt werden. Die offene Treppe im Erdgeschoss führt in das Obergeschoss, wo sich die Schlafräume und das Badezimmer befinden.
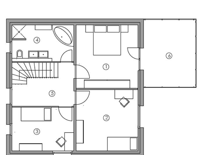
Im Obergeschoss befinden sich zwei komfortable Schlafzimmer, die als Eltern- und Kinderzimmer genutzt werden können. Das großzügige Familienbad ist hochwertig ausgestattet und lädt mit moderner Gestaltung zum Wohlfühlen ein. Das Tageslichtbadezimmer verfügt dabei über hochwertige Sanitärobjekte – unter anderem eine Badewanne, eine Dusche sowie ein Doppelwaschbecken. Ein direkt angrenzender Hauswirtschaftsraum gewährleistet kurze Wege und Ordnung im Alltag.
Das Dachgeschoss erweitert das Haus um zwei weitere, flexibel nutzbare Räume, die sich beispielsweise als zusätzliche Kinderzimmer, Gästezimmer oder ruhige Räumlichkeiten für ein Homeoffice eignen. Auf dieser Etage steht ein weiterer Abstellraum sowie ein Technikraum zur Verfügung, die zusätzlichen Stauraum bieten. Des Weiteren ermöglicht eine Bodentreppe den Zugang zum Spitzboden, der als zusätzliche Lagerfläche genutzt werden kann. Diese Integration ist sowohl funktional als auch platzsparend.
Die Immobilie wird in massiver Bauweise errichtet und erfüllt die modernsten energetischen Anforderungen mit Anschluss an das örtliche Nahwärmenetz, was die Inanspruchnahme von staatlichen Förderprogrammen, etwa über die KfW-Bank, ermöglicht. Zusätzlich verfügt die Doppelhaushälfte über eine Photovoltaikanlage, die eine nachhaltige Stromerzeugung ermöglicht und zur weiteren Steigerung der Energieeffizienz beiträgt. Die Ausstattung bewegt sich auf modernem sowie gehobenem Niveau und bietet den Bewohnern langfristige Wohnqualität sowie Investitionssicherheit. Zwei Stellplätze direkt am Haus sind im Preis inbegriffen und gewährleisten komfortables Parken.
Hinweis: Die Immobilie wird in einem Ausbauzustand übergeben, bei dem Sie die Gestaltung selbst mitbestimmen können. Maler- und Tapezierarbeiten sowie die Auswahl und Verlegung der Bodenbeläge sind nicht im Kaufpreis enthalten. Diese können ganz nach Ihrem Geschmack in Eigenleistung ausgeführt oder auf Wunsch gegen Aufpreis über den Bauträger beauftragt werden. Die Fliesenarbeiten sind bereits im Leistungsumfang enthalten und werden fachgerecht verlegt.
Für Kapitalanleger bietet diese Immobilie hervorragende Perspektiven. Angesichts der hohen Nachfrage nach Wohnraum in dieser Region und des begrenzten Mietangebots sind perspektivisch steigende Mieten zu erwarten. Aufgrund der energieeffizienten Bauweise kommen Investoren in den Genuss steuerlicher Vorteile, wie etwa die Sonderabschr
Nachhaltig & stilvoll: Neubau KfW40 QNG Plus Stadtvilla in Sprendlingen
55576 Sprendlingen
Die vollständige Adresse der Immobilie erhalten Sie vom Anbieter.
Auf Karte anzeigen
Die vollständige Adresse der Immobilie erhalten Sie vom Anbieter.
Finanzierungszertifikat
In nur zwei Minuten zu Ihrem persönlichen Finanzierungszertifkat.
Infos
| Haustyp | Einfamilienhaus |
|---|---|
| Etagenzahl | 3 |
| Wohnfläche ca. | 150 m2 |
| Grundstücksfläche | 350 m2 |
| Zimmer | 5 |
| Schlafzimmer | 3 |
| Badezimmer | 1 |
| Anzahl Garage/Stellplatz | 2 |
Kosten
| Kaufpreis |
649.500 € |
|---|---|
| Provision |
ohne Käuferprovision ohne Käuferprovision |
Finanzierungsrechner:
Kaufpreis:
600.000 €
Eigenkapital:
600.000 €
Monatliche Rate
0 €
Effektiver Jahreszins
0 %
Sollzinsbindung
10 Jahre
Bausubstanz & Energieausweis
| Baujahr | 2026 |
|---|---|
| Bauphase | Haus im Bau |
| Objektzustand | Erstbezug |
| Qualität der Austattung | Gehoben |
| Heizungsart | Blockheizkraftwerk |
| Wesentliche Energieträger | Nahwärme |
| Energieausweis | liegt zur Besichtigung vor |
Beschreibung des Objekts
Ausstattung
Allgemein
Massive, energieeffiziente Bauweise
Ca. 134 m² Wohnfläche
Durchdachter Grundriss mit optimaler Raumaufteilung
Großzügiger, offener Wohn- und Essbereich mit bodentiefen Fenstern
Separate Küche mit zusätzlicher Vorratskammer
Gäste-WC im Erdgeschoss
Hauswirtschaftsraum mit viel Stauraum
Elternschlafzimmer im Obergeschoss
Drei weitere Zimmer (z. B. Kinder-, Arbeits- oder Gästezimmer)
Spitzboden als zusätzlicher Stauraum
Badezimmer
Modern ausgestattetes Familienbad mit:
Ebenerdiger, gefliester Dusche
Komfortabler Badewanne
Doppelwaschtisch
Hochwertige Armaturen
Energie & Technik
KfW-Effizienzhaus 40 QNG Plus Standard
Anschluss an das Nahwärmenetz
Kontrollierte Wohnraumlüftung mit Wärmerückgewinnung
Dreifach verglaste Fenster mit Wärmeschutzverglasung
Wärmedämmverbundsystem für hervorragende Energieeffizienz
Hochwertiger Schallschutz für angenehme Ruhe
Photovoltaikanlage inkl.
Außenbereich
Sonnige Terrasse mit Zugang zum privaten Garten
Zwei Pkw-Stellplätze pro Einheit (im Preis inbegriffen)
Kapitalanlage & Förderung
Attraktive Renditeperspektive bei Vermietung
Steuerliche Vorteile durch Sonderabschreibungen für Effizienzhäuser
Förderkredite der KfW-Bank möglich
Lage
Inmitten der rheinhessischen Weinlandschaft entsteht in Sprendlingen ein Neubaugebiet, das sich durch seine attraktive Lage auszeichnet. Es verbindet ländliche Ruhe mit einer gut ausgebauten Infrastruktur. Die Nähe der A61 und B50 sowie des Bahnhofs Sprendlingen ermöglicht eine zügige Erreichbarkeit der Städte Mainz, Bingen und Frankfurt, was insbesondere für Pendler von Vorteil ist.
Die Gemeinde zeichnet sich durch eine hervorragende infrastrukturelle Grundversorgung aus, die durch verschiedene Einzelhandelsgeschäfte, Bäckereien, Apotheken und Ärzte geprägt ist. Für Familien sind insbesondere die Nähe zu Kindergärten, einer Grundschule im Ort und weiterführenden Schulen in der Umgebung attraktiv. Die medizinische Versorgung ist durch die lokale Verfügbarkeit von Fachärzten sichergestellt. Zudem befindet sich in Bad Kreuznach ein Krankenhaus in unmittelbarer Nähe.
Darüber hinaus bietet Sprendlingen eine Vielzahl an Möglichkeiten zur Freizeitgestaltung und Erholung. Das Gemeindegebiet verfügt über ein gut ausgebautes Netz an Rad- und Wanderwegen, welche durch die Weinberge führen, sowie über ein Freibad, Spiel- und Sportanlagen und ein reges Vereinsleben. All diese Aspekte tragen zur hohen Lebensqualität in Sprendlingen bei und machen den Ort zu einem attraktiven Wohnort.
Sonstige Angaben
Die in unserem Exposé enthaltenen Aussagen basieren ausschließlich auf Informationen, die uns vom Verkäufer und von Handwerkern zur Verfügung gestellt wurden.
Wir übernehmen daher keine Gewähr für die Vollständigkeit und Richtigkeit der Angaben.
Das Immobilienangebot ist freibleibend.
Irrtum und Zwischenverkauf bleiben vorbehalten.
Weitere Details zum Objekt erläutern wir Ihnen gerne bei einem Besichtigungstermin.
Wir bitten um Ihr Verständnis dafür, dass wir nur Anfragen mit vollständigen Adressdaten inklusive Vor- und Zuname, Anschrift, Telefon-/Mobilnummer und Email Adresse bearbeiten können.
Sie suchen nach der passenden Finanzierung? Wir finden sie!
Als ungebundene Finanzierungsvermittler vergleichen wir über 900 Banken und finden einen optimalen Kredit für Sie.
Wir prüfen für Sie ob öffentliche Fördermittel der KfW oder ISB-Rheinland-Pfalz eingesetzt werden können.
Sparen Sie Geld und Zeit! Mit Sicherheit günstiger als Ihre Hausbank.
Hier klicken: Kostenfrei Kreditvergleich und Finanzierungsbestätigung anfragen!
Wir freuen uns auf den Kontakt zu Ihnen:
Immotactics GmbH
0671 – 20272030
info@immotactics.de
Grundriss
Erdgeschoss
>
>
Obergeschoss
>
>
Dachgeschoss
>
>
Adresse
55576 Sprendlingen
Interessante Orte
Preis- und Lageinformationen
Preistrend für Bestandsimmobilien in Sprendlingen