Die angebotenen Wohnungen aus dem Jahre 1989 befinden sich in Berlin-Lichtenrade, ein ruhiger Ortsteil des Bezirks Tempelhof-Schöneberg. Der Bezirk grenzt unmittelbar an Brandenburg und verspricht daher eine grüne und familiäre Umgebung.
Insgesamt erstrecken sich in diesem Karree 116 Wohneinheiten mit jeweils 2 - 4 Zimmern und ca. 62 m² - 95 m². Die Wohnungen sind für Singles, Paare und Familien geeignet und laden mit ihren südwestlich ausgerichteten Balkonen zum Verweilen ein. Der Eingang des Hauses ist ebenerdig und somit barrierefrei zu erreichen.
Es besteht zudem die Möglichkeit, einen Pkw-Außenstellplatz zu erwerben.
Geräumige 2-Zimmer Wohnung mit Terrasse und Garten - provisionsfrei
Braunfelsstraße 73,
12309 Berlin
Auf Karte anzeigen
Finanzierungszertifikat
In nur zwei Minuten zu Ihrem persönlichen Finanzierungszertifkat.
Infos
| Wohnungskategorie | Erdgeschosswohnung |
|---|---|
| Etage | 0 von 2 |
| Wohnfläche ca. | 68 m2 |
| Bezugsfrei ab | sofort |
| Zimmer | 2 |
| Schlafzimmer | 1 |
| Badezimmer | 1 |
Kosten
| Kaufpreis |
289.500 € |
|---|---|
| Hausgeld |
302 € |
| Provision | Nein |
Finanzierungsrechner:
Kaufpreis:
600.000 €
Eigenkapital:
600.000 €
Monatliche Rate
0 €
Effektiver Jahreszins
0 %
Sollzinsbindung
10 Jahre
Bausubstanz & Energieausweis
| Baujahr | 1989 |
|---|---|
| Objektzustand | Modernisiert |
| Qualität der Austattung | Normal |
| Heizungsart | Zentralheizung |
| Wesentliche Energieträger | Erdgas schwer |
| Energieausweis | liegt vor |
| Energieausweistyp | Bedarfsausweis |
| Energieverbrauchskennwert | 97,0 kWh/(m²*a) |
| Energieeffizienzklasse | C |
97,0
kWh/(m²*a)
Energieeffizienzklasse C
- A+
- A
- B
- C
- D
- E
- F
- G
- H
- 0
- 25
- 50
- 75
- 100
- 125
- 150
- 175
- 200
- 225
- >250
Beschreibung des Objekts
Ausstattung
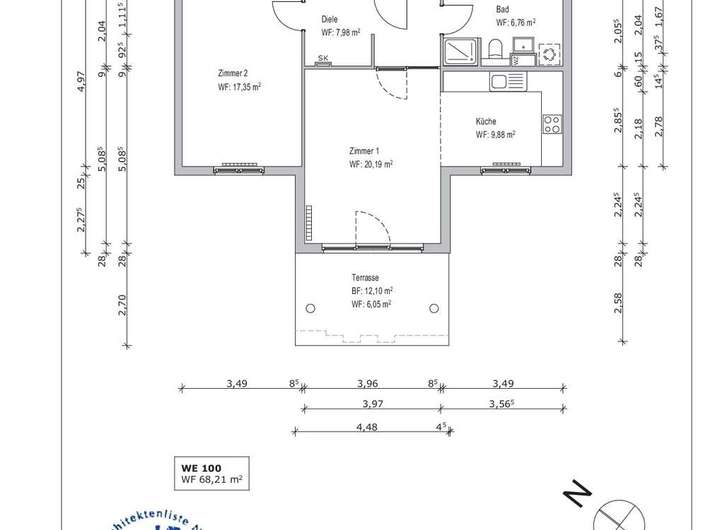
Diese sehr gut geschnittene 2-Zimmer-Wohnung im Erdgeschoss bietet auf ca. 68 m² Wohnfläche ein modernes und komfortables Zuhause. Der großzügige Wohn- und Schlafbereich, die helle Küche sowie das Duschbad schaffen ein harmonisches Wohnambiente. Da das Bad aktuell komplett saniert wird, werden entsprechende Fotos erst nach Abschluss der Arbeiten in das Exposé eingepflegt.
Ein besonderes Highlight ist die sonnige Terrasse (ca. 12 m²) zzgl. 40 m² Garten. Die Wohnung überzeugt durch ihre klare Raumaufteilung.
Lage
In ruhiger, grüner Lage, an der Grenze zu Brandenburg, bietet diese Wohnung die perfekte Erholung vom Alltagsstress und ist gut an den öffentlichen Nahverkehr (Buslinien 172, M76, N81), Ärzte, Kindergärten, Schulen und verschiedenste Einkaufsmöglichkeiten angebunden. Der internationale Flughafen BER ist nur 25 Minuten mit dem Auto entfernt, außerdem erreicht man die Autobahn A113 in 15 Minuten.
Grundriss
2025-10-22_Braunf67_Grundriss_
>
>
Adresse
Braunfelsstraße 73, 12309 Berlin
Interessante Orte
Preis- und Lageinformationen
Preistrend für Bestandsimmobilien in Lichtenrade (Tempelhof)