Dieses exklusive Einfamilienhaus in Viersen, gelegen in dem Ortsteil Süchteln, bietet mit 6 Zimmern und einer durchdachten Raumaufteilung auf zwei Etagen viel Platz für die ganze Familie. Das Haus wird mit hochwertiger Ausstattung errichtet und verfügt über eine moderne Wärmepumpenheizung. Die großzügige Grundstücksfläche von ca. 1300 m² bietet Potenzial für Gartengestaltung und Erholung im Freien. Dieses Objekt repräsentiert modernen Wohnkomfort und eine ansprechende Architektur.
Exklusive Stadtvilla auf großem Grundstück in begehrter Lage
41749 Viersen
Die vollständige Adresse der Immobilie erhalten Sie vom Anbieter.
Auf Karte anzeigen
Die vollständige Adresse der Immobilie erhalten Sie vom Anbieter.
Finanzierungszertifikat
In nur zwei Minuten zu Ihrem persönlichen Finanzierungszertifkat.
Infos
| Etagenzahl | 2 |
|---|---|
| Wohnfläche ca. | 180 m2 |
| Grundstücksfläche | 1.296 m2 |
| Zimmer | 6 |
| Schlafzimmer | 5 |
| Badezimmer | 2 |
Kosten
| Kaufpreis |
784.000 € |
|---|---|
| Provision | Nein |
Finanzierungsrechner:
Kaufpreis:
600.000 €
Eigenkapital:
600.000 €
Monatliche Rate
0 €
Effektiver Jahreszins
0 %
Sollzinsbindung
10 Jahre
Bausubstanz & Energieausweis
| Bauphase | Haus in Planung (projektiert) |
|---|---|
| Objektzustand | Erstbezug |
| Qualität der Austattung | Gehoben |
| Heizungsart | Wärmepumpe |
Beschreibung des Objekts
Ausstattung
Der angebotene Preis versteht sich für das schlüsselfertige (bezugsfertige Haus) inklusive Grundstück.
Zzgl. der zu erwartenden Bau-, und Kaufnebenkosten.
Die Bebauung kann auch mit einem Keller erfolgen.
Gerne stelle ich Ihnen das Bauvorhaben in einem persönlichen Gespräch näher vor.
Lage
Das Haus befindet sich in Viersen, einer Stadt mit guter Infrastruktur. Einkaufsmöglichkeiten für den täglichen Bedarf sowie Ärzte und Schulen befinden sich unmittelbarer Nähe. Die Verkehrsanbindung ist gut, sowohl durch öffentliche Verkehrsmittel als auch durch die Nähe zu überregionalen Straßen. Viersen bietet zudem zahlreiche Freizeitmöglichkeiten in der Natur und im Stadtgebiet.
Sonstige Angaben
Die abgebildeten Bilder können Sonderbauteile enthalten, welche nicht im Angebotspreis enthalten sind.
Näheres in einem persönlichen Gespräch.
Ich freue mich von Ihnen zu hören, gerne können Sie mich unter meiner Mobilnummer 0177 - 3982015 anrufen.
Viele Grüße
Dirk Schieber
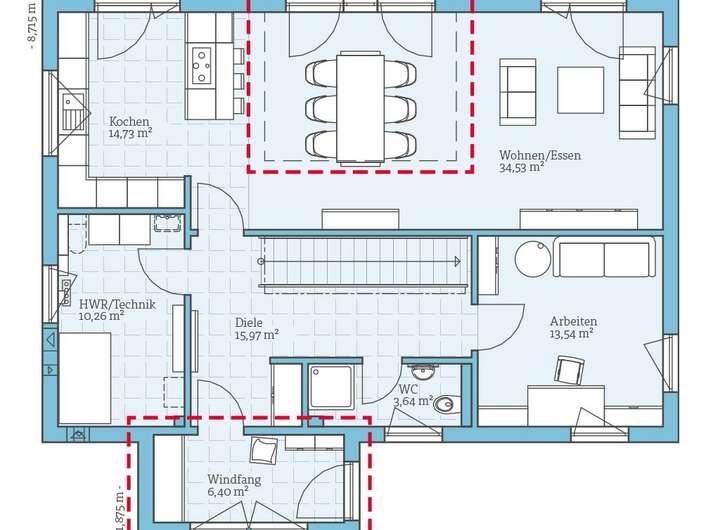
Grundriss
Erdgeschoss
>
>
Obergeschoss
>
>
Optionaler Grundriss Erdgescho
>
>
Optionaler Gundriss Obergescho
>
>
Adresse
41749 Viersen
Interessante Orte
Preis- und Lageinformationen
Preistrend für Bestandsimmobilien in Viersen