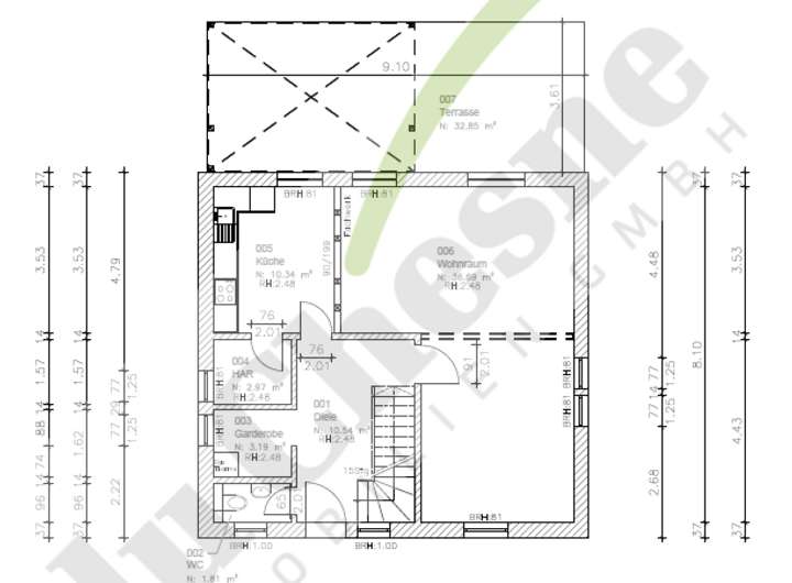
Beim Betreten dieses hochwertig errichteten Einfamilienhauses aus dem Jahr 1997 empfängt Sie ein großzügiger, einladender Flur, der ausreichend Raum für Garderobe und ein stilvolles Entrée bietet. Von hier aus gelangen Sie direkt in die offen gestaltete Küche, die nahtlos in den angrenzenden Essbereich und das helle Wohnzimmer übergeht. Direkt an die Küche angrenzend befindet sich ein praktischer Hauswirtschaftsraum, der zusätzlichen Stauraum und Platz für Haushaltsgeräte bietet. Diese offene Raumgestaltung schafft ein freundliches, modernes Wohnambiente und einen idealen Ort für geselliges Beisammensein. Ebenfalls vom Flur aus erreichen Sie das praktische Gäste-WC.
Im Obergeschoss befinden sich drei geräumige Schlafzimmer, die viel Platz und Privatsphäre für die ganze Familie bieten. Ergänzt wird diese Ebene durch ein großzügiges, hochwertig ausgestattetes Badezimmer, das mit modernen Armaturen und einer Fußbodenheizung für zusätzlichen Komfort sorgt.
Das in energieeffizienter Holzständerbauweise errichtete Niedrigenergiehaus verfügt insgesamt über ca. 121 m² Wohnfläche, verteilt auf 1,5 Geschosse. Technisch wurde das Haus auf einem aktuellen Stand gehalten: Ein 2020 installiertes Gas-Brennwertgerät mit Warmwasserspeicher garantiert effiziente Wärmeversorgung. Vier im Jahr 2022 erneuerte Velux-Dachflächenfenster mit elektrischen Rollläden sorgen für lichtdurchflutete Räume, während die Fenster im Erdgeschoss mit manuellen Rollläden ausgestattet sind. Die Garage mit neuem Garagentor bietet sicheren Stellplatz, ergänzt durch einen separaten Pumpenkeller. Eine 11 kW Wallbox ermöglicht komfortables Laden von Elektrofahrzeugen.
Der Außenbereich besticht durch ein großzügiges Grundstück von ca. 1.054 m² mit eigenem Brunnen, einer überdachten Terrasse mit integrierter elektrischer Markise sowie vielfältigen Gestaltungsmöglichkeiten in ruhiger, naturnaher Lage.
Diese Immobilie vereint modernen Wohnkomfort mit hochwertiger Ausstattung und nachhaltiger Bauweise – eine exklusive Gelegenheit für anspruchsvolle Käufer, die ein gepflegtes Zuhause mit großzügigem Außenbereich suchen. Das Haus ist bezugsfrei und steht für Sie bereit.
Modernes Niedrigenergiehaus auf wunderschönem Grundstück in Seenähe
15806 Zossen
Die vollständige Adresse der Immobilie erhalten Sie vom Anbieter.
Auf Karte anzeigen
Die vollständige Adresse der Immobilie erhalten Sie vom Anbieter.
Finanzierungszertifikat
In nur zwei Minuten zu Ihrem persönlichen Finanzierungszertifkat.
Infos
| Haustyp | Einfamilienhaus |
|---|---|
| Etagenzahl | 2 |
| Wohnfläche ca. | 121 m2 |
| Grundstücksfläche | 1.054 m2 |
| Bezugsfrei ab | sofort |
| Zimmer | 4 |
| Schlafzimmer | 3 |
| Badezimmer | 1 |
| Garage/Stellplatz | Garage |
| Anzahl Garage/Stellplatz | 1 |
Kosten
| Kaufpreis |
450.000 € |
|---|---|
| Provision |
3,57 Bei Abschluss eines notariellen Kaufvertrages wird einem vom Käufer an die Chesne Immobilien Group zu entrichtende Provision in Höhe von 3,57 % des tatsächlichen Kaufpreises inkl. Gesetzliche Mehrwertsteuer. |
Finanzierungsrechner:
Kaufpreis:
600.000 €
Eigenkapital:
600.000 €
Monatliche Rate
0 €
Effektiver Jahreszins
0 %
Sollzinsbindung
10 Jahre
Bausubstanz & Energieausweis
| Baujahr | 1997 |
|---|---|
| Objektzustand | Gepflegt |
| Qualität der Austattung | Gehoben |
| Heizungsart | Gas-Heizung |
| Energieausweis | liegt zur Besichtigung vor |
Beschreibung des Objekts
Lage
Das Haus befindet sich in Wünsdorf, einer attraktiven und naturnahen Wohnlage, die durch ihre ruhige Atmosphäre und die direkte Nähe zum Wasser besticht. Nur etwa 100 Meter entfernt liegt der große Wünsdorfer See, der vielfältige Freizeitmöglichkeiten wie Schwimmen, Angeln, Spaziergänge und Wassersport bietet. Die unmittelbare Seenähe sorgt für ein erholsames Wohngefühl und lädt zu entspannten Stunden im Grünen ein.
Wünsdorf zeichnet sich durch eine gute Infrastruktur aus, mit Einkaufsmöglichkeiten, Schulen und medizinischer Versorgung in kurzer Entfernung. Gleichzeitig profitieren Bewohner von der verkehrsgünstigen Lage mit Anbindung an die umliegenden Städte und eine schnelle Erreichbarkeit der Berliner Innenstadt.
Diese Kombination aus naturnahem Wohnen, direktem Seezugang und guter Anbindung macht die Lage zu einem begehrten Wohnstandort für Familien, Naturliebhaber und Pendler.
Sonstige Angaben
Bei Rückfragen oder dem Wunsch einer Besichtigung (gemeinsam auch am Wochenende)
erreichen Sie mich unter 0172 1505 400 oder per Mail: wdc@du-chesne.de.
Mit freundlichen Grüßen,
William du Chesne
Grundriss
Erdgeschoss
>
>
Obergeschoss
>
>
Schnitt
>
>
Nebengebäude
>
>
Adresse
15806 Zossen
Interessante Orte
Preis- und Lageinformationen
Preistrend für Bestandsimmobilien in Zossen