Das Familienhaus Vero überzeugt auf über 160 Quadratmetern durch die Großzügigkeit der Räume sowie seiner offenen Grundrissgestaltung im Wohnbereich: Die offene Küche und der Wohn- und Essbereich umfassen zusammen über 50 Quadratmeter und haben bodentiefe Fenster oder Türen. An die Küche, die Sie mit einer Kochinsel ausstatten können, angeschlossen ist eine praktische Speisekammer. Highlight des Hauses ist der Flachdacherker im Wohnzimmer. Sowohl vom Wohn- und Esszimmer als auch von der Küche aus haben Sie Zugang zum Garten. Gemütlichkeit, gepaart mit attraktiver Innenraumgestaltung sowie einem direkten Blick und Zugang in den Garten prägen die gesamte Wohnatmosphäre. Das Erdgeschoss wird komplettiert durch ein Gäste-WC, eine Garderobennische in der Diele und den Hauswirtschaftsraum. Hingucker im Eingangsbereich ist die geradläufige Treppe, die ins Dachgeschoss führt.
Dort finden sich zwei fast gleich große Kinderzimmer, ein Eltern-Schlafzimmer, ein Badezimmer und ein Home-Office, das auch als Gästezimmer genutzt werden kann. Alle Zimmer verfügen über bodentiefe Fenster, die für ausreichend Helligkeit sorgen. Modern sind auch die Fenster im Drempelbereich und die mögliche Fassadengestaltung durch farbige Putzflächen.
Dieses Haus wird nach Ihren individuellen Wünschen geplant und ausgestattet!
Doppeltes Wohnvergnügen auf drei Etagen!
56113 Fachbach
Die vollständige Adresse der Immobilie erhalten Sie vom Anbieter.
Auf Karte anzeigen
Die vollständige Adresse der Immobilie erhalten Sie vom Anbieter.
Finanzierungszertifikat
In nur zwei Minuten zu Ihrem persönlichen Finanzierungszertifkat.
Infos
| Haustyp | Einfamilienhaus |
|---|---|
| Wohnfläche ca. | 162 m2 |
| Grundstücksfläche | 550 m2 |
| Zimmer | 5 |
| Schlafzimmer | 4 |
| Badezimmer | 1 |
| Anzahl Garage/Stellplatz | 2 |
Kosten
| Kaufpreis |
625.700 € |
|---|---|
| Provision | Nein |
Finanzierungsrechner:
Kaufpreis:
600.000 €
Eigenkapital:
600.000 €
Monatliche Rate
0 €
Effektiver Jahreszins
0 %
Sollzinsbindung
10 Jahre
Bausubstanz & Energieausweis
| Baujahr | 2026 |
|---|---|
| Bauphase | Haus in Planung (projektiert) |
| Objektzustand | Erstbezug |
| Qualität der Austattung | Gehoben |
| Heizungsart | Wärmepumpe |
| Wesentliche Energieträger | Strom |
| Energieausweis | liegt vor |
| Energieausweistyp | Bedarfsausweis |
| Energieverbrauchskennwert | 19,3 kWh/(m²*a) |
| Energieeffizienzklasse | A+ |
19,3
kWh/(m²*a)
Energieeffizienzklasse A+
- A+
- A
- B
- C
- D
- E
- F
- G
- H
- 0
- 25
- 50
- 75
- 100
- 125
- 150
- 175
- 200
- 225
- >250
Beschreibung des Objekts
Ausstattung
5 Zimmer, offene Küche, Diele, WC, Flur, Bad, Hauswirtschaftsraum, Speisekammer, Keller
Das gezeigte Traumhaus im Überblick:
+ Schlüsselfertiges Massivhaus im Sinne der Ausstattungsbeschreibung "Edition 25"
+ Zukunftsorientierte Energieausstattung in Form einer Luft-Wasser-Wärmepumpe und Fußbodenheizung sowie einer kontrollierten Wohnraumlüftung mit Wärmerückgewinnung
+ Inklusive Keller
Beste Markenausstattung in jedem Kern-Haus:
+ Zimmermannsmäßiger Dachstuhl aus Konstruktionsvollholz
+ Dacheindeckung mit Betondachsteinen von Braas
+ Hochwertiger Kunstharz-Außenputz für eine langlebige Fassade
+ Vollständige Badausstattung von Villeroy & Boch mit Badewanne und flacher Duschwanne sowie einer Echtglasduschkabine
+ Fliesen von Villeroy & Boch in Bad und WC
+ Haustür mit 5-fach-Sicherheitsverriegelung
+ Erstklassige Innentüren der Marke Herholz
+ Fenster mit 3-Scheiben-Wärmeschutzverglasung und Rollläden
+ Stahl-Holz-Treppe mit individueller Farbgestaltungsmöglichkeit
+ Vollständige und überdurchschnittliche Elektroausstattung inklusive Klingelanlage und Netzwerkdosen
+ Rauchmelder für Ihre Sicherheit
+ Alle Leistungen aus einer Hand
+ Alle Planungs- und Architektenleistungen
+ Einsatz regionaler Handwerksbetriebe
+ Baubegleitende 5-Phasen-TÜV-Prüfung und Blower-Door-Test
+ Individuelle Anpassung auf Ihre Bedürfnisse
+ Auf Wunsch mit weiteren Energietechniken erhältlich
Lage
Das schöne Baugrundstück mit herrlichem Ausblick befindet sich in Fachbach. Der Ort Fachbach gehört zur Ortsgemeinde Rhein-Lahn-Kreis und der Verbandsgemeinde Bad Ems-Nassau an.
Fachbach ist gut über die B260 zu erreichen.
Städte wie Lahnstein, Koblenz und Montabaur liegen nur wenige Autominuten entfernt und Bad Ems nur einen "Katzensprung".
Für Naturliebhaber ist Fachbach bereits ein Geheimtipp. Zahlreiche Freizeitmöglichkeiten werden geboten, wie beispielsweise Boot oder Kanu fahren auf der Lahn, Radfahren entlang auf dem Lahntalradweg, auf dem Sie bis zum Rhein radeln können oder auf dem Golfplatz Golf spielen. Entspannung pur und Erholung vom stressigen Alltag finden Sie in der nahegelegenen und bekannten Emser Therme im staatlich anerkannten Heilkurort.
Erleben Sie neue Lebensqualität und holen Sie sich Ihr tägliches Urlaubsfeeling nach Hause!
Sonstige Angaben
Kern-Haus baut individuelle und massive Architektenhäuser zu einem attraktiven Preis-Leistungs-Verhältnis – und das bereits mit einer Erfahrung seit 1980. Bei Kern-Haus erhalten Sie unter anderem 10 Jahre Gewährleistung auf die wesentlichen Bauleistungen, bis zu 24 Monate Preissicherheit sowie eine dokumentierte 5-Phasen-TÜV-Prüfung während der Bauphase. Jedes Kern-Haus als Effizienzhaus 40 ist bereits QNG-zertifiziert durch die Deutsche Gesellschaft für nachhaltiges Bauen (DGNB).
40 Jahre Expertise für das massive, energieeffiziente Bauen: Kern-Haus realisiert Massivhäuser in Ziegel, Bims, Porenbeton oder Stahlbeton (DuoTherm).
Kern-Haus setzt auf eine hohe Bauqualität der Handwerker und auf eine große Auswahl starker Marken. So verwendet Kern-Haus beim Bau Ihres Hauses nur hochwertige Markenprodukte renommierter Hersteller – wie etwa Produkte von Villeroy & Boch.
Preise und Auszeichnungen von Kern-Haus:
- German Brand Award in den Jahren 2018 und 2021
- Hausbau Design Award: Sieger in den Jahren 2017, 2018, 2019, 2020, 2021, 2022 und 2023
- Deutscher Traumhauspreis: Sieger in den Jahren 2014, 2015, 2016 und 2018 und Silber 2017, 2020 und 2021
- Mittelstandspreis "Top 100" in den Jahren 2014, 2016, 2018, 2020 und 2022
- German Design Award im Jahr 2018
Weitere Informationen
Der gezeigte Preis versteht sich inklusive Grundstück und exklusive der Baunebenkosten.
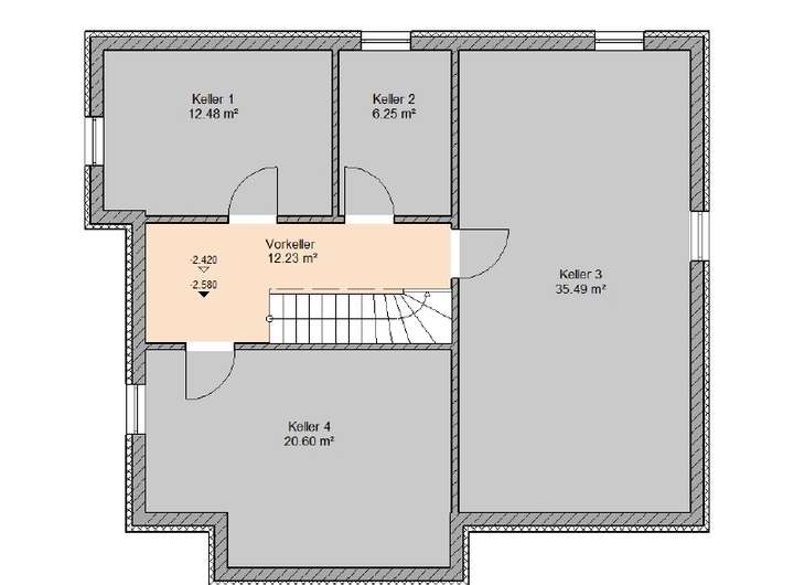
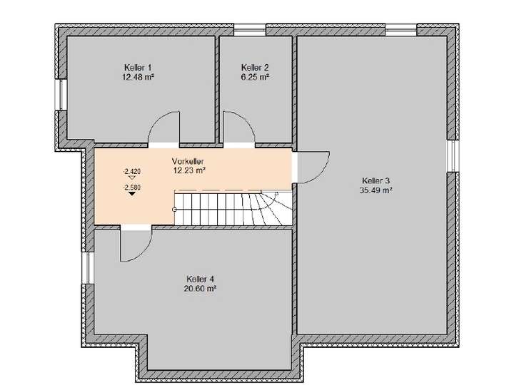
Grundriss
Grundriss Keller
>
>
Grundriss Erdgeschoss
>
>
Grundriss Dachgeschoss
>
>
Adresse
56113 Fachbach
Interessante Orte
Preis- und Lageinformationen
Preistrend für Bestandsimmobilien in Fachbach