Dieses charmante Einfamilienhaus mit Einliegerwohnung befindet sich in Bierbergen, einem Ortsteil der Gemeinde Hohenhameln und bietet mit insgesamt 168,96 m² eine großzügige Wohnfläche.
Das Haus wurde ca. 1950 erbaut und bietet enormes Potenzial für eine individuelle Gestaltung. Im Haupthaus sind auf ca. 103 m² Wohnfläche 4 Zimmer, die Küche und ein Bad mit Wanne angeordnet. Weitere nützliche Vorrats- und Abstellflächen finden Sie im Keller. Das Haus wurde im Jahr 1980 um einen Anbau erweitert. Die ca. 61 m² Wohnfläche große Einliegerwohnung bietet Ihnen 3 Zimmer mit Küche und Bad (Dusche) mit separatem WC. Von der Loggia, welche Sie aus dem Wohnzimmer erreichen, haben Sie einen tollen Blick in den Garten und über die Felder.
Die zwei Garagen im Anbau verfügen über ausreichend Platz für Ihre Pkw, Fahrräder und Zubehör. Der eigene Garten bietet einen ruhigen Rückzugsort und die Möglichkeit, die Natur zu genießen. Er wird sicherlich zu einem beliebten Treffpunkt Ihrer Familie werden.
Nach der erforderlichen Modernisierung können Sie sich hier schon bald wohlfühlen.
Haus in Bierbergen mit viel Potential
31249 Hohenhameln
Die vollständige Adresse der Immobilie erhalten Sie vom Anbieter.
Auf Karte anzeigen
Die vollständige Adresse der Immobilie erhalten Sie vom Anbieter.
Finanzierungszertifikat
In nur zwei Minuten zu Ihrem persönlichen Finanzierungszertifkat.
Infos
| Haustyp | Einfamilienhaus |
|---|---|
| Wohnfläche ca. | 168 m2 |
| Grundstücksfläche | 1.059 m2 |
| Zimmer | 7 |
| Badezimmer | 2 |
| Garage/Stellplatz | Garage |
| Anzahl Garage/Stellplatz | 2 |
Kosten
| Kaufpreis |
165.000 € |
|---|---|
| Provision |
3,57 % inkl. ges. MwSt. |
Finanzierungsrechner:
Kaufpreis:
600.000 €
Eigenkapital:
600.000 €
Monatliche Rate
0 €
Effektiver Jahreszins
0 %
Sollzinsbindung
10 Jahre
Bausubstanz & Energieausweis
| Baujahr | 1950 |
|---|---|
| Bauphase | Haus fertig gestellt |
| Objektzustand | Renovierungsbedürftig |
| Qualität der Austattung | Normal |
| Wesentliche Energieträger | Gas |
| Energieausweis | liegt vor |
| Energieausweistyp | Bedarfsausweis |
| Energieverbrauchskennwert | 352,8 kWh/(m²*a) |
| Energieeffizienzklasse | H |
352,8
kWh/(m²*a)
Energieeffizienzklasse H
- A+
- A
- B
- C
- D
- E
- F
- G
- H
- 0
- 25
- 50
- 75
- 100
- 125
- 150
- 175
- 200
- 225
- >250
Beschreibung des Objekts
Sonstige Angaben
VERBRAUCHERINFO
1. Maklerleistung ist der Nachweis der Gelegenheit zum Abschluss eines Vertrages bzw. Vermittlung eines Vertrages über eine Immobilie gegen die Courtagezahlungspflicht des Kunden
2. Unternehmer, Anschrift, Beschwerdeadressat
LBSi NordWest, Himmelreichallee 40, 48149 Münster, Tel:0251/973233-997, eMail:info@lbsi-nw.de
GF:Martin Englert, Volker Goldbeck
3. Es besteht ein Widerrufsrecht
4. Weitere Infos: verbraucherinfo.lbsi-nordwest.de
Grundriss
Erdgeschoss
>
>
Obergeschoss
>
>
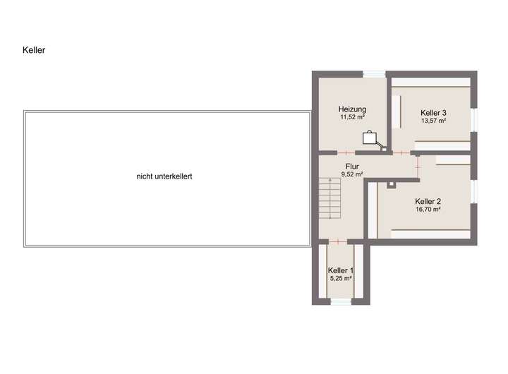
Keller
>
>
Adresse
31249 Hohenhameln
Interessante Orte
Preis- und Lageinformationen
Preistrend für Bestandsimmobilien in Hohenhameln