In traumhaft ruhiger Lage, am Weg zur historischen Burg von Marquartstein, befindet sich dieses liebevoll gepflegte, historische Anwesen (Hausteil) – ein Ort, der auf Anhieb berührt. Umgeben von einem großzügigen Grundstück von 1.322 m² eröffnet sich hier ein idyllischer Rundumblick in die Chiemgauer Berge, der jeden Tag wie Urlaub wirken lässt.
Das ursprüngliche Baujahr 1814 verleiht dem Haus Charakter und Geschichte, während die umfassende Renovierung in den Jahren 1998–2000 behutsam dafür gesorgt hat, dass Charme und Tradition mit zeitgemäßem Wohnkomfort in Einklang stehen. Die Ausrichtung nach Ost–West sorgt für morgendliches Licht und stimmungsvolle Sonnenuntergänge über dem Alpenpanorama.
Wohnen mit Atmosphäre
Die ca. 185 m² Wohnfläche verteilen sich großzügig über drei Etagen und bieten dank durchdachter Raumaufteilung Platz für Familienleben, Rückzug und Gäste.
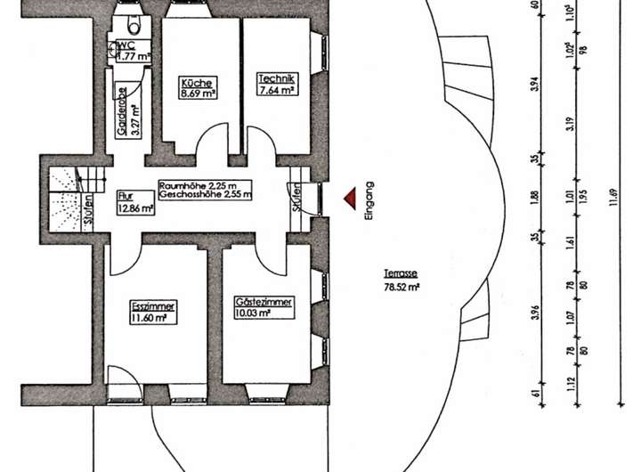
+ Erdgeschoss – Lebensraum mit Verbindung nach draußen
+ Ca. 64 m² Wohnfläche
+ Vollausgestattete Küche und gemütliches Esszimmer
+ Schlafzimmer, Gäste-WC und Hauswirtschaft-/Heizraum
+ Zugang zur großen Sonnenterrasse (ca. 78 m²) – perfekt für lange Sommerabende, gemeinsames Essen im Freien oder einfach zum Genießen des Panoramas
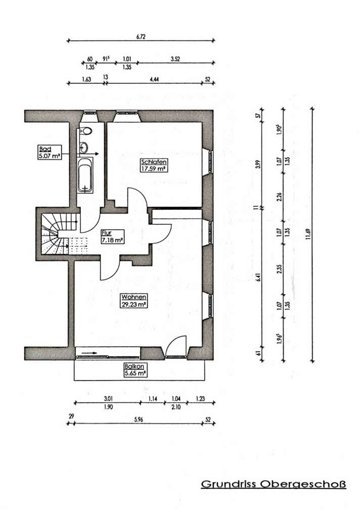
Obergeschoss – Wohnen mit Weitblick
+ Ca. 62 m²
+ Wohnzimmer mit integrierter Büroecke
+ Schlafzimmer
+ Bad mit Badewanne & WC
+ Balkon mit Blick über die Hügellandschaft bis hin zu den Gipfeln
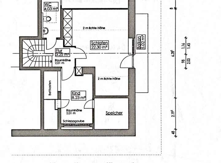
Dachgeschoss – Rückzug unter den Firstbalken
+ Ca. 33 m²
+ Elternschlafzimmer
+ Zusätzlicher Schlafraum mit Schlafkoje – ideal für Kinder & Gäste
+ Bad mit WC
Insgesamt bietet das Haupthaus:
4 Schlafzimmer (bis zu 6 Schlafplätze) · Wohnzimmer · Esszimmer · Küche · 3 Bäder/WCs · Terrasse & Balkon
Gäste-/Garagenhaus – Platz für Privatsphäre
Ein besonderes Highlight ist das freistehende Gästehaus mit ca. 26 m² Wohnfläche – liebevoll gestaltet, abgeschirmt und mit echter Privatsphäre.
+ Schlafzimmer mit 2 Betten
+ Wohnbereich mit zusätzlichen Schlafmöglichkeiten
+ Badezimmer mit Dusche
+ TV-Anschluss & WLAN
Ideal für Besucher, Großeltern, erwachsene Kinder oder als kleiner Rückzugsort.
Dazu gehört ein Garagenhaus mit überdachtem Stellplatz sowie zusätzlichem Außenstellplatz.
Technisches & Besonderheiten
Ölheizung Viessmann (6000 Liter)
Dach statisch geeignet für Solartechnik – nachhaltig leicht aufrüstbar
Großzügiges Grundstück mit viel Grünraum & Blickachsen
30er-Zone – ruhig, sicher, entspannt
Die historische Bausubstanz wurde mit viel Sorgfalt erhalten
Fazit
Dieses historische Anwesen (Hausteil) ist mehr als ein Zuhause – es ist ein Ort mit Seele.
Ein Haus, das Geschichte erzählt, Geborgenheit schenkt und gleichzeitig Freiraum lässt. Ein Platz für Menschen, die das Echte, das Ursprüngliche und das Naturnahe schätzen.
Hier findet man Ruhe, Natur, Raum für Familie und Freunde – und den unvergleichlichen Zauber der Berge direkt vor der Haustür.
Idyllisches Familiendomizil in den Chiemgauer Bergen
83250 Marquartstein
Die vollständige Adresse der Immobilie erhalten Sie vom Anbieter.
Auf Karte anzeigen
Die vollständige Adresse der Immobilie erhalten Sie vom Anbieter.
Finanzierungszertifikat
In nur zwei Minuten zu Ihrem persönlichen Finanzierungszertifkat.
Infos
| Haustyp | Doppelhaushaelfte |
|---|---|
| Etagenzahl | 3 |
| Wohnfläche ca. | 185 m2 |
| Nutzfläche | 282 m2 |
| Grundstücksfläche | 1.322 m2 |
| Bezugsfrei ab | nach Vereinbarung |
| Zimmer | 7 |
| Schlafzimmer | 5 |
| Badezimmer | 2 |
| Garage/Stellplatz | Garage |
| Anzahl Garage/Stellplatz | 1 |
Kosten
| Kaufpreis |
1.295.000 € |
|---|---|
| Provision |
3,57% inkl. MwSt. Die vom Käufer zu tragende Provision beträgt 3,57 % inkl. gesetzlicher Mehrwertsteuer aus dem beurkundeten Kaufpreis. |
Finanzierungsrechner:
Kaufpreis:
600.000 €
Eigenkapital:
600.000 €
Monatliche Rate
0 €
Effektiver Jahreszins
0 %
Sollzinsbindung
10 Jahre
Bausubstanz & Energieausweis
| Baujahr | 1814 |
|---|---|
| Letzte Sanierung | 2000 |
| Objektzustand | Gepflegt |
| Qualität der Austattung | Gehoben |
| Heizungsart | Öl-Heizung |
| Wesentliche Energieträger | Öl |
| Energieausweis | liegt vor |
| Energieausweistyp | Bedarfsausweis |
| Energieverbrauchskennwert | 426,0 kWh/(m²*a) |
| Energieeffizienzklasse | H |
426,0
kWh/(m²*a)
Energieeffizienzklasse H
- A+
- A
- B
- C
- D
- E
- F
- G
- H
- 0
- 25
- 50
- 75
- 100
- 125
- 150
- 175
- 200
- 225
- >250
Beschreibung des Objekts
Lage
Marquartstein ist eine malerische Gemeinde im oberbayerischen Achental, idyllisch eingebettet zwischen dem Chiemsee und den Alpen. Die Lage inmitten der beeindruckenden Chiemgauer Landschaft verleiht dem Ort ein unverwechselbares Ambiente aus Natur, Ruhe und Authentizität. Mit nur 55 km nach Salzburg und rund 95 km nach München ist Marquartstein zudem hervorragend angebunden und sowohl für Wochenendausflüge als auch für Pendler attraktiv.
Prägend für das Ortsbild ist die historische Burg Marquartstein, die hoch über dem Tal thront und dem Ort seinen unverwechselbaren Charakter verleiht. Zahlreiche Wander- und Radwege führen von hier in die umliegenden Berge, Wälder und Hügel. In den Wintermonaten bieten die nahen Ski- und Erholungsgebiete ideale Bedingungen für Wintersportler und Naturliebhaber.
Mit einer Höhenlage von ca. 545 m ü. M. verbindet Marquartstein ein gesundes, angenehmes Klima mit einer außergewöhnlichen Lebensqualität. Die Infrastruktur ist dabei hervorragend ausgebaut: Vor Ort finden sich Grundschule und Realschule, während weiterführende Gymnasien und Berufsschulen in der Umgebung mit öffentlichen Verkehrsmitteln gut erreichbar sind. Zahlreiche Einkaufsmöglichkeiten, Bäckereien, Metzgereien und kleinere Fachgeschäfte versorgen den täglichen Bedarf – ergänzt durch Wochenmärkte und regionale Anbieter für frische, lokale Produkte. Die medizinische Versorgung ist durch Allgemein- und Fachärzte gesichert; das Klinikum Traunstein liegt ebenfalls nahe.
Öffentliche Verkehrsanbindungen bestehen über regelmäßige Busverbindungen, die zu den Bahnhöfen in Übersee und Prien am Chiemsee führen. Von dort bestehen schnelle und verlässliche Verbindungen nach München, Salzburg und in weitere größere Städte.
Die umliegende Region Chiemgau zählt zu den schönsten Landschaftsräumen Oberbayerns: Wälder, Seen, sanfte Hügel und markante Alpenkulissen prägen dieses Naturparadies. Besonders der Chiemsee mit der Herren- und Fraueninsel bietet vielfältige Erholungs- und Kulturerlebnisse, während Orte wie Traunstein, Reit im Winkl und Rosenheim zu Ausflügen einladen. Bayerische Tradition, Naturverbundenheit und ein entspanntes Lebensgefühl bestimmen hier den Alltag.
Kulturelles & Kulinarisches Angebot
Die Region Chiemgau ist bekannt für ihr reichhaltiges Kulturprogramm – von klassischer Musik in den Festspielorten Salzburg und Herrenchiemsee bis hin zu regionalem Brauchtum, Galerien, Museen und historischen Bauwerken.Kulinarisch kommen Feinschmecker auf ihre Kosten: bayerische Gasthöfe, Haubenrestaurants, Almhütten und regionale Märkte sorgen für authentische Genusserlebnisse.
Nahversorgung & Infrastruktur
Marquartstein bietet eine exzellente Infrastruktur:
Einkaufsmöglichkeiten, Bäcker, Metzger, Apotheken
Ärzte verschiedenster Fachrichtungen
Kindergärten, Grund- und weiterführende Schulen
Vielfältige Handwerksbetriebe und Dienstleister – ideal auch zur Wartung und Pflege einer Oldtimersammlung mit eigener Werkstattnutzung
Ein Ort mit hervorragendem Potenzial
Das Haus liegt genau im Herz der Alpenregion zwischen München, Salzburg und Innsbruck – ein Standort, der die perfekte Balance aus Rückzug und Erreichbarkeit bietet. Diese Lage verbindet die romantische Ruhe des Alpenvorlandes mit der Infrastruktur eines internationalen Dreiecks.
Ein idealer Ausgangspunkt für Genießer und Naturfreunde.
Sonstige Angaben
Die Provision ist mit
Zustandekommen des notariellen Kaufvertrages verdient und fällig. Vorstehende
Provision ist in den Kaufvertrag aufzunehmen. Der Immobilienmakler hat einen
provisionspflichtigen Maklervertrag mit dem Verkäufer in gleicher Höhe
abgeschlossen.
Sämtliche Objektangaben und im Exposé beigelegte Unterlagen beruhen auf den Informationen des Verkäufers. Eine Haftung kann nicht übernommen werden. Im Übrigen verweisen wir auf unsere Allgemeinen Geschäftsbedingungen, die auf www.hvkoelichen.de unter Impressum veröffentlicht sind.
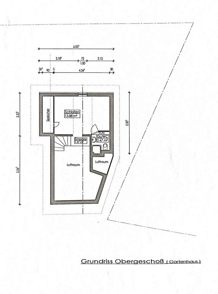
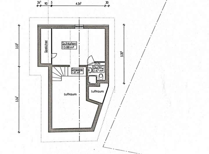
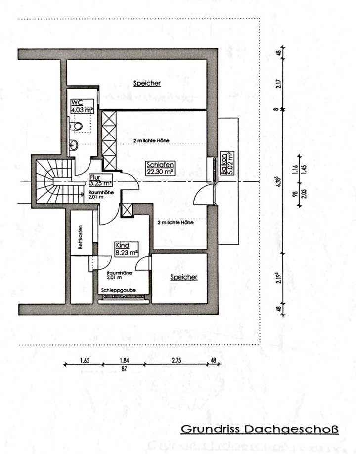
Grundriss
Grundriss EG
>
>
Grundriss OG
>
>
Grundriss DG
>
>
Grundriss EG Gartenhaus
>
>
Grundriss OG Gartenhaus
>
>
Adresse
83250 Marquartstein
Interessante Orte
Preis- und Lageinformationen
Preistrend für Bestandsimmobilien in Marquartstein