Investieren Sie in eine attraktive Renditeimmobilie mit Zukunftsperspektive
Dieses 1982 erbaute, gepflegte und kontinuierlich modernisierte Mehrfamilienhaus mit insgesamt 9 Wohneinheiten, aufgeteilt auf zwei Gebäudeteile, bietet Ihnen als Kapitalanleger ein solides Investment – und vor allem: Potenzial.
Auf einer großzügigen Grundstücksfläche von 1.586 m² erstreckt sich ein durchdacht konzipiertes Immobilienensemble, das heute bereits Mieteinnahmen aus drei Quellen generiert: Wohnungen, Garagen und Außenstellplätze.
Ein durchgängiges Vermietungskonzept, langjährige Mietverhältnisse, ein gepflegter Allgemeinzustand und die Möglichkeit, durch Teilung weiteres Potenzial zu erschließen, machen dieses Objekt zu einer Renditeimmobilie mit Perspektive.
Renditeprofil & Investmentfakten für Kapitalanleger
Diese Immobilie bietet derzeit eine Gesamtnettokaltmiete von ca. 4.820 € monatlich, was einer Jahresnettomiete von 57.840 € entspricht. Mietanpassungen sind nach § 558 BGB sofort möglich auf 61.900 €.
Die Wohneinheiten befinden sich in ungeteiltem Zustand, sodass ein weiteres Entwicklungspotenzial durch nachträgliche Teilung gemäß WEG besteht – ideal für Exit-Strategien oder Einzelverkäufe zu einem späteren Zeitpunkt.
Die Wohneinheiten befinden sich in ungeteiltem Zustand, sodass ein weiteres Entwicklungspotenzial durch nachträgliche Teilung gemäß WEG besteht – ideal für Exit-Strategien oder Einzelverkäufe zu einem späteren Zeitpunkt.
Immobilienprofil im Detail
Wohnfläche & Nutzung
Die Immobilie verfügt über ca. 573 m² Wohnfläche, verteilt auf drei Etagen. Jede der 9 Wohneinheiten ist durchdacht geschnitten und mit Balkon oder Terrasse ausgestattet – ein gefragtes Ausstattungsmerkmal im Mietmarkt. Die Bodenbeläge bestehen aus einer marktgängigen Kombination aus Laminat, Vinyl und Fliesen, was nicht nur pflegeleicht, sondern auch langlebig ist.
Beide Häuser sind durch eine zentrale Heizungsanlage verbunden (Baujahr 1993), was die Betriebskosten optimiert.
Auch die Vorzüge eines großen Brauchwasserspeichers sind hier gegeben.
Zusätzlich ist das Objekt teilunterkellert und bietet somit zusätzlichen Stauraum für Mieter.
Außenbereich & Stellplatzangebot
Ein echtes Plus für Kapitalanleger ist die hohe Nutzungsflexibilität im Außenbereich:
10 Garagen - teilweise fremdvermietet
6 Außenstellplätze - ebenfalls vermietet
Gepflegter Gartenbereich - zur gemeinschaftlichen Nutzung
Diese Komponenten generieren zusätzliche Einnahmen und steigern die Attraktivität des Gesamtobjekts deutlich.
Modernisierungen & Instandhaltungen
Die Immobilie wurde über die Jahre laufend instandgehalten und zuletzt modernisiert:
Dämmung des Daches (2011)
Bädermodernisierungen (2016 - 2021)
Böden (2010 - 2025)
Neue Wohnungstüren (2023 - 2025)
Haustür Nr. 41 (2024)
Fenster & Balkone teilweise erneuert (2023)
Klingelanlagen und Gegensprechanlagen modernisiert (2014 - 2020)
Heizungsanlage regelmäßig gewartet
Wasser-/Gasleitungen teilweise erneuert
Zusätzlich eröffnet die Nähe zu überregionalen Verkehrsachsen Potenzial für Pendler – ein nachhaltiger Standortfaktor, der auch bei zukünftigen Mieterwechseln eine hohe Nachfrage garantiert.
Fazit: Bestandsimmobilie mit Charme, Substanz und Wertentwicklungspotenzial
Dieses gepflegte Mehrfamilienhaus in solider Bauweise vereint alle Elemente, die für Kapitalanleger entscheidend sind:
-Mehrere Einnahmequellen
-Gute Mieterstruktur mit langfristigen Verträgen
-Nachhaltige Modernisierungen
-Mietsteigerungspotenzial und Teilungsmöglichkeit der Einheiten
-Übernahme eines Hausmeisters möglich
-Keine Mietrückstände gegeben
Nutzen Sie die Gelegenheit, in eine einkommensstarke Immobilie mit klarer Perspektive zu investieren – ob als Portfolioerweiterung oder Start Ihres Immobilieninvestments.
Sichern Sie sich jetzt Ihren unverbindlichen Besichtigungstermin!
Da alle neun Wohnungen vermietet sind, können Besichtigung
Top Investment: 9 Wohnungen - vollvermietet und modernisiert mit Wertsteigerungspotenzial
55545 Bad Kreuznach
Die vollständige Adresse der Immobilie erhalten Sie vom Anbieter.
Auf Karte anzeigen
Die vollständige Adresse der Immobilie erhalten Sie vom Anbieter.
Finanzierungszertifikat
In nur zwei Minuten zu Ihrem persönlichen Finanzierungszertifkat.
Infos
| Haustyp | Mehrfamilienhaus |
|---|---|
| Etagenzahl | 3 |
| Wohnfläche ca. | 573 m2 |
| Grundstücksfläche | 1.586 m2 |
| Bezugsfrei ab | nach Vereinbarung |
| Zimmer | 21 |
| Schlafzimmer | 12 |
| Badezimmer | 9 |
| Garage/Stellplatz | Garage |
| Anzahl Garage/Stellplatz | 16 |
Kosten
| Kaufpreis |
1.375.000 € |
|---|---|
| Provision |
3,57% inkl. Umsatzsteuer |
Finanzierungsrechner:
Kaufpreis:
600.000 €
Eigenkapital:
600.000 €
Monatliche Rate
0 €
Effektiver Jahreszins
0 %
Sollzinsbindung
10 Jahre
Bausubstanz & Energieausweis
| Baujahr | 1982 |
|---|---|
| Letzte Sanierung | 2025 |
| Bauphase | Haus fertig gestellt |
| Objektzustand | Gepflegt |
| Qualität der Austattung | Normal |
| Heizungsart | Gas-Heizung |
| Wesentliche Energieträger | Gas |
| Energieausweis | liegt vor |
| Energieausweistyp | Verbrauchsausweis |
| Energieverbrauchskennwert | 147,9 kWh/(m²*a) |
| Energieeffizienzklasse | E |
147,9
kWh/(m²*a)
Energieeffizienzklasse E
- A+
- A
- B
- C
- D
- E
- F
- G
- H
- 0
- 25
- 50
- 75
- 100
- 125
- 150
- 175
- 200
- 225
- >250
Beschreibung des Objekts
Ausstattung
Allgemeine Eckdaten
Baujahr: 1982
Grundstücksfläche: ca. 1.586 m²
Wohnfläche: ca. 573 m²
Wohneinheiten: 9 Einheiten, verteilt auf 2 Gebäudeteile
Geschosse: 3 Etagen
Teilunterkellert
Gepflegter Allgemeinzustand, laufend modernisiert
Beide Häuser mit zentraler Heizungsanlage (Baujahr 1993) verbunden
Wohnungsausstattung
Jede Einheit mit Balkon oder Terrasse
Moderne Bodenbeläge: Laminat, Vinyl und Fliesen
Bäder modernisiert (2016 - 2021)
Neue Wohnungstüren (2023 - 2025)
Fenster und Balkone teilweise erneuert (2023)
Hauseingangstür (2024)
Teilweise neue Böden (2010 - 2025)
Helle, gut geschnittene Grundrisse
Langjährig vermietet – stabile Mieterstruktur
Gebäude & Technik
Zentrale Heizungsanlage (Baujahr 1993) – regelmäßig gewartet
Dachdämmung 2011 erneuert
Klingel- und Gegensprechanlage modernisiert (2014 - 2020)
Wasser- und Gasleitungen teilweise erneuert
Außenbereich
10 Garagen (teilweise separat vermietet)
6 Außenstellplätze mit gesicherten Hofnutzungsrechten
Gepflegter Gartenbereich zur gemeinschaftlichen Nutzung
Großzügige Hoffläche mit zusätzlichem Mietpotenzial
Miet- & Investmentdaten
Aktuelle Gesamtjahresnettokaltmiete: ca. 57.840 €
Mietsteigerungspotenzial gemäß § 558 BGB sofort möglich auf 61.900 €
Hausmeister vorhanden – Übernahme möglich
Lage
Der Stadtteil Bosenheim zählt zu den traditionsreichen Weinorten rund um Bad Kreuznach. Geprägt von Weinbergen, einem lebendigen Vereinsleben und dörflichem Charme, bietet er eine Wohnatmosphäre, die Ruhe und Naturnähe mit guter Anbindung an die Stadt verbindet. Die idyllische Umgebung mit ihren Weingütern und Festen verleiht dem Ort eine besondere Lebensqualität und macht ihn sowohl für Familien als auch für Berufspendler attraktiv.
Die Infrastruktur ist gut entwickelt: Einkaufsmöglichkeiten für den täglichen Bedarf finden sich direkt in Bad Kreuznach sowie in den benachbarten Stadtteilen, größere Supermärkte, Fachgeschäfte und das breit gefächerte Angebot der Bad Kreuznacher Innenstadt sind in wenigen Minuten mit dem Auto erreichbar. Schulen aller Stufen sowie Kindergärten und medizinische Versorgungseinrichtungen sind ebenfalls schnell und unkompliziert zu erreichen.
Verkehrstechnisch ist die Lage ausgesprochen günstig. Über die nahegelegenen Bundesstraßen sowie die Autobahnen A60 und A61 bestehen hervorragende Verbindungen in Richtung Mainz, Wiesbaden, Frankfurt und Mannheim. Auch die Anbindung an den öffentlichen Nahverkehr ist gesichert: Busverbindungen bringen Bewohner bequem in die Innenstadt von Bad Kreuznach und von dort weiter in die Region. Der Bad Kreuznacher Bahnhof bietet zudem eine gute Anbindung an das regionale und überregionale Schienennetz.
Für Freizeit und Erholung ist die Lage besonders reizvoll. Direkt vor der Haustür laden Weinberge, Felder und Wiesen zu Spaziergängen, Wanderungen oder Radtouren ein. Das kulturelle Leben Bosenheims ist eng mit dem Weinbau verbunden – traditionelle Feste, Weinproben und Veranstaltungen sorgen für ein aktives Miteinander im Ort. Darüber hinaus bieten die Sportvereine, Spielplätze und Grünanlagen vielfältige Möglichkeiten zur Freizeitgestaltung. In Bad Kreuznach selbst locken das historische Kurviertel mit Thermalbädern und Parks, Museen sowie ein abwechslungsreiches gastronomisches Angebot.
Insgesamt verbindet diese Lage die Vorteile eines ruhigen, naturnahen Wohnumfeldes in einem traditionsreichen Weinort mit einer hervorragenden Anbindung und einer bestens ausgebauten Infrastruktur – ideal für alle, die ländlichen Charme mit urbaner Nähe kombinieren möchten.
Sonstige Angaben
Die in unserem Exposé enthaltenen Aussagen basieren ausschließlich auf Informationen, die uns vom Verkäufer und von Handwerkern zur Verfügung gestellt wurden.
Wir übernehmen daher keine Gewähr für die Vollständigkeit und Richtigkeit der Angaben.
Das Immobilienangebot ist freibleibend.
Irrtum und Zwischenverkauf bleiben vorbehalten.
Weitere Details zum Objekt erläutern wir Ihnen gerne bei einem Besichtigungstermin.
Wir bitten um Ihr Verständnis dafür, dass wir nur Anfragen mit vollständigen Adressdaten inklusive Vor- und Zuname, Anschrift, Telefon-/Mobilnummer und Email Adresse bearbeiten können.
Sie suchen nach der passenden Finanzierung? Wir finden sie!
Als ungebundene Finanzierungsvermittler vergleichen wir über 900 Banken und finden einen optimalen Kredit für Sie.
Sparen Sie Geld und Zeit! Mit Sicherheit günstiger als Ihre Hausbank.
Informieren Sie sich jetzt hier, kostenfrei und unverbindlich über Finanzierungsmöglichkeiten zu dieser Immobilie. Fördermittelberatung inklusive.
Wir freuen uns auf den Kontakt zu Ihnen.
Immotactics GmbH
0671 – 20272030
info@immotactics.de
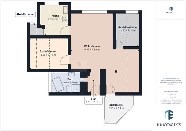
Grundriss
Grundriss H41 EG rechts
>
>
Grundriss H41 DG
>
>
Grundriss H43 EG links
>
>
Grundriss H43 EG rechts
>
>
Grundriss H43 1.OG rechts
>
>
Grundriss H43 DG Maisonette (1
>
>
Grundriss H43 DG Maisonette (2
>
>
Adresse
55545 Bad Kreuznach
Interessante Orte
Preis- und Lageinformationen
Preistrend für Bestandsimmobilien in Bad Kreuznach