Willkommen in Ihrer Traumstadtvilla, projektiert nach Ihren individuellen Wünschen und Vorstellungen. Dieses atemberaubende Projekt befindet sich in Isernhagen und bietet Ihnen mit seinen 192,77 m² Wohnfläche und sechs großzügigen Zimmern ein Höchstmaß an Flexibilität und Komfort. Auf zwei Etagen konzipiert, vereint die Stadtvilla modernes Design mit Funktionalität. Sie entscheiden über Stil und Ausstattung, sei es ein Flachdach oder Walmdach, moderne Farben oder klassisch dezent - Ihre Vorstellungen sind unsere Priorität. Der Grundriss wird flexibel nach Ihren Bedürfnissen gestaltet, sodass Sie Ihren persönlichen Lebensraum optimal nutzen können.
**Luxuriöser Lebensstil: Ihre Traumvilla wartet auf Sie mit einer Klinkeraktion!**
30916 Isernhagen
Die vollständige Adresse der Immobilie erhalten Sie vom Anbieter.
Auf Karte anzeigen
Die vollständige Adresse der Immobilie erhalten Sie vom Anbieter.
Finanzierungszertifikat
In nur zwei Minuten zu Ihrem persönlichen Finanzierungszertifkat.
Infos
| Haustyp | Villa |
|---|---|
| Etagenzahl | 2 |
| Wohnfläche ca. | 192 m2 |
| Nutzfläche | 25 m2 |
| Grundstücksfläche | 544 m2 |
| Bezugsfrei ab | 2025 |
| Zimmer | 6 |
| Schlafzimmer | 3 |
| Badezimmer | 2 |
Kosten
| Kaufpreis |
1.064.939 € |
|---|---|
| Provision | Nein |
Finanzierungsrechner:
Kaufpreis:
600.000 €
Eigenkapital:
600.000 €
Monatliche Rate
0 €
Effektiver Jahreszins
0 %
Sollzinsbindung
10 Jahre
Bausubstanz & Energieausweis
| Baujahr | 2025 |
|---|---|
| Bauphase | Haus in Planung (projektiert) |
| Qualität der Austattung | Luxus |
| Heizungsart | Wärmepumpe |
| Energieausweis | liegt zur Besichtigung vor |
Beschreibung des Objekts
Ausstattung
Erleben Sie luxuriöse Ausstattung auf höchstem Niveau. Die Stadtvilla bietet drei geräumige Schlafzimmer und zwei Bäder mit hochwertigen Sanitäreinrichtungen, die sowohl Dusche als auch Badewanne umfassen. Ein zusätzliches Gäste-WC sorgt für weiteren Komfort. Die Bodenbeläge aus Fliesen bieten nicht nur eine elegante Optik, sondern sind auch pflegeleicht und langlebig. Alternativ können Sie die Bodenbeläge nach Wunsch gestalten, um Ihren persönlichen Stil zu unterstreichen. Das Haus wird von einer effizienten Wärmepumpe beheizt, die umweltfreundlich ist und Energiekosten spart. Mit KFW40-Standard erfüllen wir höchste energetische Ansprüche.
Lage
Die Stadtvilla befindet sich in einem attraktiven Wohngebiet von Isernhagen, das Ihnen alles bietet, was das Herz begehrt. In unmittelbarer Nähe finden Sie Apotheken, Einkaufsmöglichkeiten sowie Anbindungen an den öffentlichen Nahverkehr durch Buslinien. Familien profitieren von der Nähe zu Grundschulen, weiterführenden Schulen und Kindergärten sowie zahlreichen Spielplätzen - ideal für eine hohe Lebensqualität.
Sonstige Angaben
STREIF Haus - der Pionier der deutschen Fertighausbranche
Die langjährige Firmentradition des Unternehmens reicht bis in das Jahr 1929 zurück. In den 50er und 60er Jahren wurde in Deutschland schnell und viel Wohnraum für Familien benötigt, seitdem konzentrierte sich das Unternehmen auf die Entwicklung und Produktion von Fertighaustypen, die im Werk in großen Stückzahlen hergestellt werden konnten. So kann das Unternehmen auf 90.000 gebaute Hausobjekte zurückblicken und sich zu Recht als Pionier der deutschen Fertighausbranche bezeichnen.
Die neuen Energiesparhäuser - So baut man heute.
Unser Anspruch ist es, in enger Partnerschaft mit unseren Kunden langlebige Häuser zu bauen, mit einer hohen architektonischen Qualität, individuell geplant und dabei energieeffizient und ressourcenschonend. Jedes STREIF-Haus ist einzigartig und wird speziell für jeden Kunden "maßgeschneidert" und gebaut. Passend zu den persönlichen Wünschen, dem vorgegebenen Budget und dem vorhandenen Grundstück planen und bauen wir jedes Haus mit viel Liebe zum Detail.
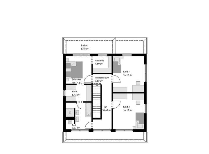
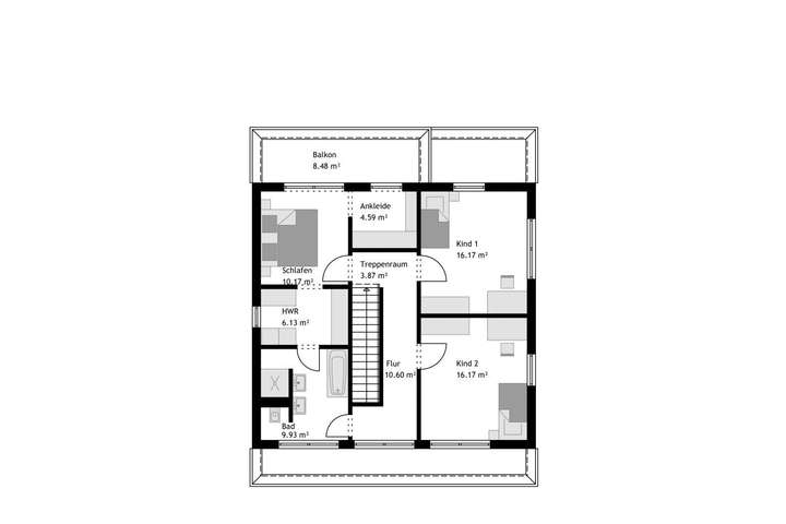
Grundriss
99240-8256-3-g
>
>
99241-8256-4-g
>
>
Adresse
30916 Isernhagen
Interessante Orte
Preis- und Lageinformationen
Preistrend für Bestandsimmobilien in Isernhagen