Dieses Zuhause überzeugt durch seine klassische Architektur, moderne Offenheit und eine harmonische Verbindung von Innen und Außen. Große, bodentiefe Fensterflächen 🪟 lassen auf allen Seiten reichlich Licht und Sonne ins Haus und schaffen ein freundliches, natürliches Wohnambiente - zu jeder Jahreszeit. ☀️
Im Erdgeschoss bildet der großzügig gestaltete Wohn-, Ess- und Küchenbereich 🍽️ das Herzstück des Hauses. Dank seiner intelligenten Raumaufteilung wirkt er offen und einladend zugleich - und bei schönem Wetter erweitert sich der Wohnraum ganz selbstverständlich nach draußen in den Garten oder auf die Terrasse. 🌳
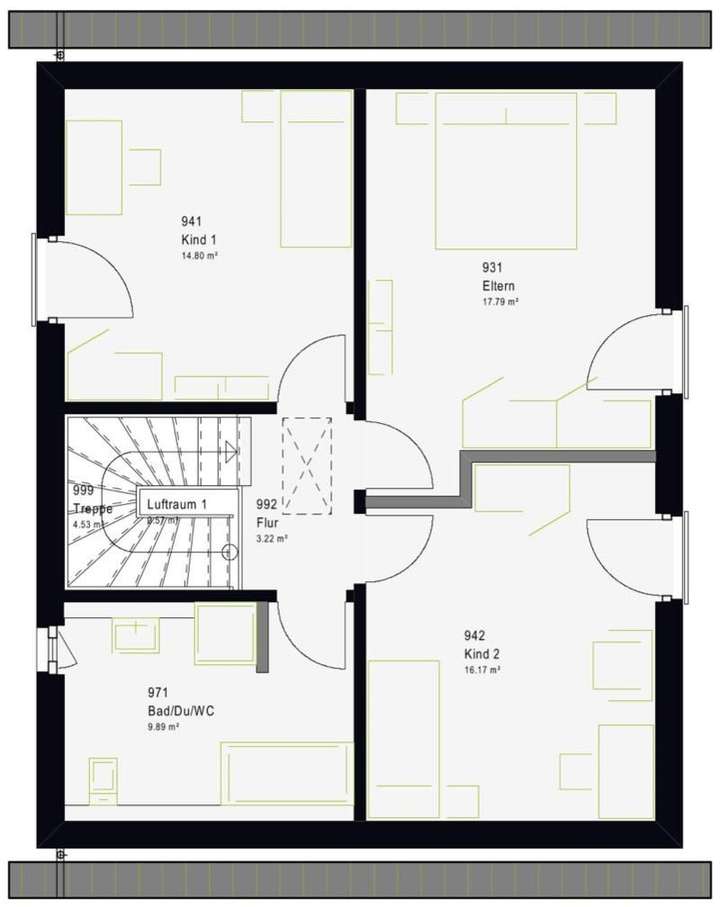
Im Obergeschoss sorgen das Elternschlafzimmer, zwei Kinderzimmer 🛏️ sowie ein großzügiges Dusch- und Wannenbad 🛁 für Rückzug, Geborgenheit und Wohnkomfort auf hohem Niveau.
👉 Ein Zuhause, das Licht, Raum und Natur in perfekter Balance vereint - ideal für Familien, die das Leben in all seinen Facetten genießen möchten. ✨
🏡 Ein Haus für alle Jahreszeiten 🌿
04603 Nobitz
Die vollständige Adresse der Immobilie erhalten Sie vom Anbieter.
Auf Karte anzeigen
Die vollständige Adresse der Immobilie erhalten Sie vom Anbieter.
Finanzierungszertifikat
In nur zwei Minuten zu Ihrem persönlichen Finanzierungszertifkat.
Infos
| Haustyp | Einfamilienhaus |
|---|---|
| Etagenzahl | 2 |
| Wohnfläche ca. | 120 m2 |
| Nutzfläche | 123 m2 |
| Grundstücksfläche | 657 m2 |
| Zimmer | 4 |
| Schlafzimmer | 1 |
| Badezimmer | 1 |
Kosten
| Kaufpreis |
274.929 € |
|---|
Finanzierungsrechner:
Kaufpreis:
600.000 €
Eigenkapital:
600.000 €
Monatliche Rate
0 €
Effektiver Jahreszins
0 %
Sollzinsbindung
10 Jahre
Bausubstanz & Energieausweis
| Baujahr | unbekannt |
|---|---|
| Bauphase | Haus in Planung (projektiert) |
| Objektzustand | Erstbezug |
| Qualität der Austattung | Gehoben |
| Heizungsart | Wärmepumpe |
Beschreibung des Objekts
Ausstattung
Sie können dieses Haus als reines AUSBAUHAUS zum "selbst ausbauen" oder als "bezugsfertig" erwerben. Ich erstelle Ihnen ein detailliertes und individuelles Angebot, bei dem ich Ihre persönlichen Wünsche berücksichtige und auf eine faire und realistische Kalkulation achte. Zu einer ausführlichen Beratung nehme ich mir sehr gern Zeit für Sie!
Folgendes ist in diesem Angebot (Ihr technikfertiges Haus) bereits enthalten:
- modernes Niedrigenergie-Ausbauhaus
- 3-fach verglaste Wärmeschutzfenster (weiß)
- Aluminium-Rollläden
- FREIRAUM-Deckenhöhe 2,75m
- modernes Haustürelement (weiß)
- mineralischer Struktur-Außenputz (weiß)
- Dacheindeckung in versch. Farben zur Auswahl
- Bodenplatte (mit Baugrunduntersuchung und Bodengutachten)
- Baukran und Baugerüst
- Luft-Wasser Wärmepumpe inkl. Fußbodenheizung und Montage
- integrierte Be- und Entlüftungsanlage
- Holztreppe
- Elektroinstallation im Haus
- Sanitär-Rohinstallation
- Dämm- und Beplankungsmaterial (inkl. Bodentreppe)
- Architektenleistung (Genehmigungsplanung und Bauantrag)
- Versicherungspaket (für 1 Jahr)
zzgl. Grundstückskaufpreis, sollten Sie noch kein Grundstück besitzen, Sonderwünsche, Restausbau und Baunebenkosten:
Restausbau:
- Materialien für den Innenausbau (Böden, Türen, Fliesen, Sanitärobjekte usw.)
- Innen-Ausbau (Trockenbau, Malerarbeiten, Fliesen- und Fußböden usw.)
Baunebenkosten:
- Baustelleneinrichtung
- Hausanschlusskosten
- Erdarbeiten
- Außenanlage
Sonstige Angaben
Ihr kompetenter Ansprechpartner für Ihr Traumhaus
Sie suchen nach einem zuverlässigen Partner für den Bau oder die Planung Ihres Traumhauses? Dann sind Sie bei mir genau richtig!
Als erfahrener Ansprechpartner begleite ich Sie von der ersten Idee bis zur Fertigstellung - individuell, persönlich und kompetent.
Mit mir bauen Sie nicht einfach ein Haus - Sie verwirklichen Ihr einzigartiges Traumhaus, das perfekt zu Ihren Wünschen, Ihrem Lebensstil und Ihrem Budget passt. Ob moderne Architektur, klassischer Stil oder maßgeschneiderte Sonderlösungen: Ich unterstütze Sie dabei, Ihre Wohnträume Realität werden zu lassen.
Ihre Vorteile auf einen Blick:
Persönliche Beratung und individuelle Planung
Fachliche Kompetenz und langjährige Erfahrung
Verlässliche Begleitung von der Idee bis zum Einzug
Maßgeschneiderte Lösungen für Ihr Traumhaus
Bauen Sie mit mir Ihr individuelles Traumhaus - Schritt für Schritt, professionell und stressfrei.
Kontaktieren Sie mich jetzt für ein unverbindliches Gespräch und starten Sie den Weg in Ihr neues Zuhause!
Grundriss
Erdgeschoss
>
>
Obergeschoss
>
>
Adresse
04603 Nobitz
Interessante Orte
Preis- und Lageinformationen
Preistrend für Bestandsimmobilien in Nobitz