- klassische Holztafelbauweise von Firma Streif, 1973 erstellt
- massiver Vollkeller von örtlichem Bauunternehmen Schöner
- jeweils ca. 120 m² Wohnfläche / Nutzfläche
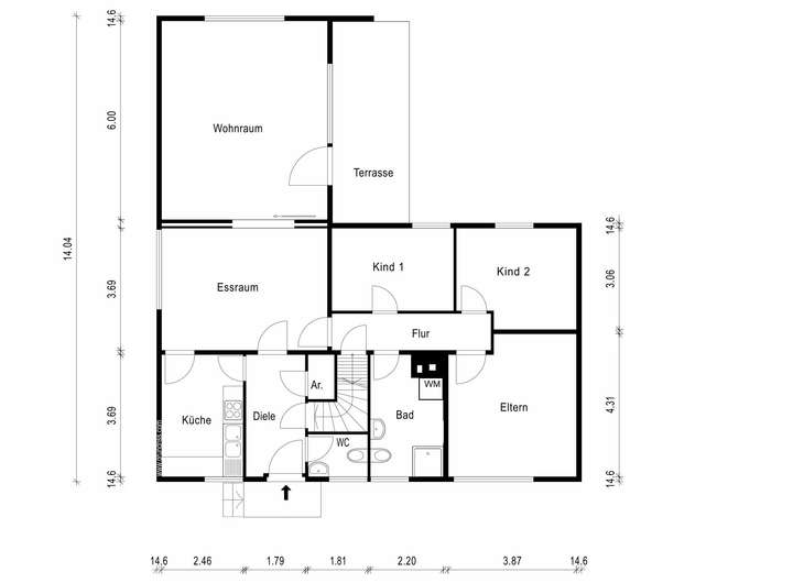
- Erdgeschoss mit 5 Zimmer, Küche, Bad, WC
- großes Esszimmer mit Doppeltüre zum Wohnraum
- dieser wurde mit zusätzlicher Innenschale/-dämmung versehen
- teilüberdachte Westterrasse mit Markise
- Öl-Zentralheizung mit Niedertemperatur-Kessel (keine akute Tauschpflicht)
- 2023 neuer Wärmepumpen-Warmwasserspeicher
- 2-fach-Iso-Kunststofffenster (b.a. Terr.) die letzten Jahre erneuert
- Badrenovierung mit bequemer Duschwanne ca. 2012
- Walmdach mit nicht ausbaubarem Boden
- zusätzliche Kellertreppe zum Hof
- massive Doppelgarage mit Rolltor sowie Carport
- Einhausung des Zugangsbereiches inkl. heller Lichtkuppel
- 1031 m² Grundstück mit viel Platz für Hobbys
- großes Schiebetor zum befestigten Zufahrtshof
- auf Wunsch inklusive Möblierung
BUNGALOW-FERTIGHAUS AUF ÜBER 1.000 m²
86879 Wiedergeltingen
Die vollständige Adresse der Immobilie erhalten Sie vom Anbieter.
Auf Karte anzeigen
Die vollständige Adresse der Immobilie erhalten Sie vom Anbieter.
Finanzierungszertifikat
In nur zwei Minuten zu Ihrem persönlichen Finanzierungszertifkat.
Infos
| Haustyp | Bungalow |
|---|---|
| Etagenzahl | 1 |
| Wohnfläche ca. | 128 m2 |
| Grundstücksfläche | 1.031 m2 |
| Bezugsfrei ab | zeitnah |
| Zimmer | 4 |
| Schlafzimmer | 3 |
| Badezimmer | 1 |
| Garage/Stellplatz | Garage |
| Anzahl Garage/Stellplatz | 2 |
Kosten
| Kaufpreis |
445.000 € |
|---|---|
| Provision |
3,57 % inkl. ges. MwSt. Die Maklerprovision in Höhe von 3,57 % inklusive der gesetzlichen Mehrwertsteuer ist mit dem Abschluss des notariellen Kaufvertrages fällig. Die Maklerprovision errechnet sich aus dem notariell beurkundeten Kaufpreis. Dieses Exposé wurde nach bestem Wissen und Gewissen erstellt. Wir übernehmen keine Gewähr für die Vollständigkeit und Aktualität dieser Angaben. Sämtliche enthaltene Angaben und Abmessungen erfolgen im Auftrag des Eigentümers. Der Makler übernimmt hierfür keine Haftung. |
Finanzierungsrechner:
Kaufpreis:
600.000 €
Eigenkapital:
600.000 €
Monatliche Rate
0 €
Effektiver Jahreszins
0 %
Sollzinsbindung
10 Jahre
Bausubstanz & Energieausweis
| Baujahr | 1973 |
|---|---|
| Letzte Sanierung | 2023 |
| Bauphase | Haus fertig gestellt |
| Objektzustand | Gepflegt |
| Qualität der Austattung | Einfach |
| Heizungsart | Zentralheizung |
| Wesentliche Energieträger | Öl |
| Energieausweis | liegt vor |
| Energieausweistyp | Bedarfsausweis |
| Energieverbrauchskennwert | 391,0 kWh/(m²*a) |
| Energieeffizienzklasse | H |
391,0
kWh/(m²*a)
Energieeffizienzklasse H
- A+
- A
- B
- C
- D
- E
- F
- G
- H
- 0
- 25
- 50
- 75
- 100
- 125
- 150
- 175
- 200
- 225
- >250
Beschreibung des Objekts
Ausstattung
Individuelle Ausstattungsmerkmale:
- Wärmepumpe für Warmwasser 2023
- separates WC
Lage
Wiedergeltingen liegt mitten im Dreieck zwischen Buchloe, Türkheim und Bad Wörishofen und ist damit zweifach über die A96 München-Lindau erreichbar. Nur ca. 3 km zum Bahnknotenpunkt Buchloe mit perfekter Taktung in alle vier Himmelsrichtungen bietet es sich gerade Pendlern an.
Tip: Ein bequemer Radweg abseits der befahrenen Straßen bringt Sie schnell in den Buchloer Westen zum Bahnhof.
Direkt in Wiedergeltingen befinden sich u.a. Kindergarten, Grundschule, ein Selbstbedienungs-"Tante-Emma-Laden" sowie die Filiale der Raiffeisenbank Türkheim eG.
Sonstige Angaben
Die Käuferprovision beträgt 3,57 % vom Kaufpreis inkl. MwSt. Die Käufer-Provision ist verdient und fällig mit notarieller Beurkundung. Der Immobilienmakler hat einen provisionspflichtigen Maklervertrag in gleicher Höhe mit dem Verkäufer abgeschlossen.
Es wird ausdrücklich darauf hingewiesen, dass abhängig vom Alter der Immobilie, der Art des Gebäudes, der Nutzungsart und den bisherigen Instandhaltungs- und/oder Instandsetzungsarbeiten des bisherigen Eigentümers Pflichten zur Sanierung nach dem Gebäudeenergiegesetz (GEG) binnen zwei Jahren ab Eigentumswechsel bestehen können, um die energetischen Voraussetzungen des GEG zu erfüllen. Dazu gehören u.a. die Dämmung der Geschossdecken, § 47 GEG, die Dämmung von Rohren, § 69 GEG, sowie die Modernisierung der Heizungsanlage, §§ 71,72 GEG.
Grundriss
Grundriss EG
>
>
Grundriss KG
>
>
Adresse
86879 Wiedergeltingen
Interessante Orte
Preis- und Lageinformationen
Preistrend für Bestandsimmobilien in Wiedergeltingen