Wohnen im Grünen – mitten in Frankfurt-Eschersheim: Dieses freistehende Einfamilienhaus aus dem Jahr 1955 vereint zeitlose Architektur, hochwertige Ausstattung und ein idyllisches Grundstück zu einem Wohnparadies im Herzen der Stadt. Mit ca. 235 m² Wohnfläche bietet es sowohl Familien als auch Paaren ein großzügiges Zuhause, das durch helle Räume, edle Materialien und eine durchdachte Aufteilung überzeugt. Bereits beim Betreten spürt man das angenehme Wohngefühl, das durch Parkettböden, elegante Holzfenster und ein lichtdurchflutetes Raumkonzept besticht. Im Erdgeschoss empfängt Sie ein breiter Flur mit Zugang zum großzügigen Wohnbereich. Dieser ist über das separate Esszimmer harmonisch mit der modernen, voll ausgestatteten Küche verbunden. Aus dem Wohnzimmer heraus, betreten Sie die sonnige Terrasse, welche in den traumhaften eingewachsenen Garten übergeht. Hortensien, Azaleen und Rosen schmücken das traumhafte Grundstück rundum.
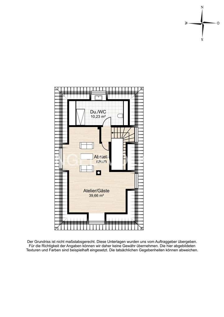
Über eine edle Holztreppe gelangen Sie in das Obergeschoss, indem Ihnen drei Schlafzimmer sowie ein großes, helles Badezimmer zur Verfügung stehen. Das größte dieser Zimmer bietet Zugang zu einem Südwestbalkon- ideal für sonnige Abendstunden. Im Jahr 2012 wurde das Dachgeschoss ausgebaut und zu einem großzügigen Wohn- und Masterbereich mit eigenem modernen Badezimmer gestaltet. Diese Ebene eignet sich sowohl als gemeinsamer Rückzugsort die Familie als auch als exklusive Mastereinheit mit ausreichend Platz für Homeoffice oder Gäste. Das Souterrain rundet das Raumangebot perfekt ab: Hier befinden sich ein Gästebereich, ein Bad sowie ein kleiner Wellnessbereich mit Sauna und direktem Zugang in den Garten. Eine Garage sowie zusätzliche Stellplätze auf dem Grundstück bieten weiteren Komfort. Das Haus wurde im Jahr 1994 umfassend kernsaniert und seitdem regelmäßig modernisiert, sodass es sofort bezugsbereit ist. Eine hochwertige Ausstattung, stimmige Lichtkonzepte und die besondere Lage, machen dieses Objekt zu einer seltenen Gelegenheit.
Vereinbaren Sie heute noch einen Besichtigungstermin!
Freistehendes Familienhaus mit Garten: Wohntraum in Eschersheim
60433 Frankfurt am Main
Die vollständige Adresse der Immobilie erhalten Sie vom Anbieter.
Auf Karte anzeigen
Die vollständige Adresse der Immobilie erhalten Sie vom Anbieter.
Finanzierungszertifikat
In nur zwei Minuten zu Ihrem persönlichen Finanzierungszertifkat.
Infos
| Haustyp | Einfamilienhaus |
|---|---|
| Etagenzahl | 3 |
| Wohnfläche ca. | 235 m2 |
| Nutzfläche | 72 m2 |
| Grundstücksfläche | 478 m2 |
| Bezugsfrei ab | 01.02.2026 |
| Zimmer | 7 |
| Schlafzimmer | 5 |
| Badezimmer | 3 |
| Anzahl Garage/Stellplatz | 4 |
Kosten
| Kaufpreis |
2.185.000 € |
|---|---|
| Provision |
3.57 % inkl. gesetzl. MwSt. |
Finanzierungsrechner:
Kaufpreis:
600.000 €
Eigenkapital:
600.000 €
Monatliche Rate
0 €
Effektiver Jahreszins
0 %
Sollzinsbindung
10 Jahre
Bausubstanz & Energieausweis
| Baujahr | 1955 |
|---|---|
| Letzte Sanierung | 2016 |
| Objektzustand | Neuwertig |
| Heizungsart | Zentralheizung |
| Wesentliche Energieträger | Gas |
| Energieausweis | liegt vor |
| Energieausweistyp | Bedarfsausweis |
| Energieverbrauchskennwert | 226,7 kWh/(m²*a) |
| Energieeffizienzklasse | G |
226,7
kWh/(m²*a)
Energieeffizienzklasse G
- A+
- A
- B
- C
- D
- E
- F
- G
- H
- 0
- 25
- 50
- 75
- 100
- 125
- 150
- 175
- 200
- 225
- >250
Beschreibung des Objekts
Ausstattung
Abstellkammer
Einbaumöbel
Arbeitszimmer
Einbauküche
Blick ins Grüne
Fliesen
Parkett
Fußbodenheizung
Vollunterkellert
Kamin
Lage
Zentral gelegen zählt Eschersheim zu einem der beliebtesten Stadtteile in Frankfurt. Das gewachsene Wohngebiet zeichnet sich durch eine angenehme Mischung aus Ein- und Mehrfamilienhäusern sowie gepflegten Grünflächen aus. Eschersheim liegt im Norden Frankfurts und gilt als familienfreundlicher Stadtteil mit hoher Lebensqualität. Die Nähe zur Nidda und zum Niddapark bietet vielfältige Freizeit-, Sport- und Erholungsmöglichkeiten im Grünen. Die Infrastruktur ist ausgezeichnet: Einkaufsmöglichkeiten für den täglichen Bedarf, sehr gute weiterführende Schulen, Kindergärten sowie Ärzte und Apotheken sind bequem in wenigen Minuten erreichbar. Zudem bietet das nahegelegene Nordwestzentrum ein breites Angebot an Geschäften, Gastronomie und Dienstleistungen. Die Verkehrsanbindung ist hervorragend: Die U-Bahn-Linien U1, U2, U3 und U8 gewährleisten eine schnelle Anbindung an die Frankfurter Innenstadt. Mit dem Auto sind sowohl die Innenstadt als auch die Autobahnen A66 und A661 in wenigen Minuten erreichbar. Insgesamt verbindet die Lage eine ruhige, grüne Wohnatmosphäre mit einer zentralen und bestens angebundenen Infrastruktur – ein idealer Standort für Familien und alle, die stadtnah und dennoch entspannt wohnen möchten.
Sonstige Angaben
Kommt auf Grundlage unserer Maklerleistung ein Kaufvertrag über das Objekt zustande, ist der Kunde verpflichtet, eine Maklerprovision in Höhe von 3,57 % einschließlich der gesetzlichen Umsatzsteuer zu zahlen. Die Berechnungsgrundlage für die Provision ist der Gesamtkaufpreis, der sich aus dem Kaufpreis sowie sämtlichen geldwerten Leistungen des Käufers an den Verkäufer ergibt, insbesondere der Übernahme von Grundbuchlasten, Ablösezahlungen für Einrichtungsgegenstände oder sonstige vereinbarte Zusatzleistungen.
Grundriss
Grundriss - Erdgeschoss
>
>
Grundriss - Obergeschoss
>
>
Grundriss - Dachgeschoss
>
>
Grundriss - Kellergeschoss
>
>
Adresse
60433 Frankfurt am Main
Interessante Orte
Preis- und Lageinformationen
Preistrend für Bestandsimmobilien in Eschersheim