Das 1965 erbaute Haus verfügt über insgesamt sechs Zimmer, verteilt auf 114 m² Wohnfläche, die sich ideal als Schlaf-, Arbeits- oder Kinderzimmer nutzen lassen. Bereits beim Betreten des Hauses werden Sie von einer einladenden Atmosphäre empfangen. Der Eingangsbereich, mündet in den Flur des Erdgeschosses, von dort ist das Gäste-WC, das große Badezimmer mit Badewanne, die gut ausgestattete Küche, sowie der Wohnbereich erreichbar.
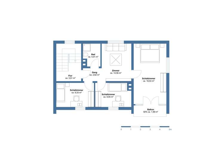
Die Treppen aus Stein, führen in das Kellergeschoss, Obergeschoss und Dachgeschoss. Im Obergeschoss befindet sich auf der linken Seite das zweite Badezimmer, inkl. einer Toilette und Dusche. Rechts finden sich die Kinder- und oder Arbeitszimmer wieder. Das Obergeschoss bietet außerdem einen offenen Wohn- oder Ankleideraum, angrenzend dazu, getrennt durch eine Tür, liegt das Schlafzimmer.
Auf dem Weg zum Kellergeschoss befindet sich auf halber Höhe ein Anbau, welcher ein perfektes Arbeitszimmer- oder Kinderzimmer darstellt.
Das Haus ist nicht nur vollständig unterkellert, welcher sich ideal für Lager- oder Hobbyräume eignet, sondern birgt im Dachgeschoss weitere Potenziale, ein persönliches Refugium zu schaffen.
Der großzügige Garten, welcher einen wunderschönen Ausblick ins Tal genießt, führt linksherum um das Haus und wird von Büschen und Holzzäunen umrahmt.
Ein weiteres Highlight ist der Stall sowie der großzügige Stadel. Der Stadel ist perfekt für Hobbyhandwerker konzipiert, da es die Möglichkeit gibt die Bretter des Bodens anzuheben, um Autos von unten zu reparieren. Die großzügig ausfallende Nutzfläche beläuft sich auf 217 Quadratmeter, diese inkludiert unteranderem den Kellerbereich, Stall und Stadel, somit bieten sich viele Möglichkeiten zum Lagern, Reparieren und Arbeiten.
Dieses Einfamilienhaus bietet nicht nur eine Vielzahl an Nutzungsmöglichkeiten, sondern auch eine harmonische Kombination aus ländlichem Charme und praktischen Vorzügen – perfekt für Familien, die Natur und Raum zur Entfaltung suchen.
*Provisionsfrei* Außergewöhnliches Einfamilienhaus mit Stall & Stadel in ruhiger Naturlage
94146 Hinterschmiding
Die vollständige Adresse der Immobilie erhalten Sie vom Anbieter.
Auf Karte anzeigen
Die vollständige Adresse der Immobilie erhalten Sie vom Anbieter.
Finanzierungszertifikat
In nur zwei Minuten zu Ihrem persönlichen Finanzierungszertifkat.
Infos
| Haustyp | Einfamilienhaus |
|---|---|
| Etagenzahl | 4 |
| Wohnfläche ca. | 114 m2 |
| Nutzfläche | 217 m2 |
| Grundstücksfläche | 528 m2 |
| Bezugsfrei ab | ab sofort |
| Zimmer | 6 |
| Badezimmer | 2 |
| Garage/Stellplatz | Außenstellplatz |
| Anzahl Garage/Stellplatz | 2 |
Kosten
| Kaufpreis |
195.000 € |
|---|---|
| Provision | Nein |
Finanzierungsrechner:
Kaufpreis:
600.000 €
Eigenkapital:
600.000 €
Monatliche Rate
0 €
Effektiver Jahreszins
0 %
Sollzinsbindung
10 Jahre
Bausubstanz & Energieausweis
| Baujahr | 1965 |
|---|---|
| Objektzustand | Renovierungsbedürftig |
| Heizungsart | Zentralheizung |
| Wesentliche Energieträger | Öl |
| Energieausweis | liegt vor |
| Energieausweistyp | Bedarfsausweis |
| Energieverbrauchskennwert | 282,0 kWh/(m²*a) |
| Energieeffizienzklasse | H |
282,0
kWh/(m²*a)
Energieeffizienzklasse H
- A+
- A
- B
- C
- D
- E
- F
- G
- H
- 0
- 25
- 50
- 75
- 100
- 125
- 150
- 175
- 200
- 225
- >250
Beschreibung des Objekts
Ausstattung
- Große Gartenfläche
- 6-Zimmer zur freien Gestaltung
- Vielseitige Nutzflächen für Handwerker, Lagerungen oder Hobbyprojekte
- Gartenhütte
- Gut ausgestattete Einbauküche vorhanden
- Badezimmer mit Badewanne
- Badezimmer mit Dusche und Toilette
- Gäste-WC
- Zwei Balkone & Terrasse
- Gepflasterter Parkplatz vor dem Haus
- Stall und Stadel mit spezieller Reparaturmöglichkeit für Autos
- Ölheizung (Zentralheizung)
Lage
Die Immobilie in Hinterschmiding bietet eine außergewöhnlich ruhige und naturverbundene Lage im Herzen des Bayerischen Waldes. Umgeben von üppigen Wäldern und malerischen Hügeln, lädt die unmittelbare Umgebung zu vielfältigen Freizeitaktivitäten wie Wandern, Radfahren und im Winter auch zum Skifahren und Rodeln ein. Nur wenige Kilometer entfernt liegt der Nationalpark Bayerischer Wald, ein Paradies für Naturliebhaber und Outdoor-Enthusiasten.
Hinterschmiding verbindet die Vorzüge des Landlebens mit einer guten Erreichbarkeit der städtischen Infrastruktur. In der nahegelegenen Stadt Freyung, etwa 10 Minuten mit dem Auto entfernt, finden sich alle wichtigen Versorgungseinrichtungen wie Supermärkte, Ärzte, Apotheken und Schulen. Auch das nahe Waldkirchen bietet weitere Einkaufsmöglichkeiten und Restaurants.
Die Verkehrsanbindung ist durch die Bundesstraße B12 gewährleistet, die schnellen Verbindungen nach Freyung, Passau und zur tschechischen Grenze bietet. Der öffentliche Nahverkehr wird im Landkreis Freyung-Grafenau kontinuierlich modernisiert, um die Mobilität innerhalb der Region zu verbessern.
Hinterschmiding selbst punktet mit seiner familiären Atmosphäre, freundlichen Nachbarschaften und der Nähe zu Freizeitangeboten. Diese naturnahe Umgebung macht die Immobilie besonders attraktiv für Familien und Menschen, die Ruhe und Erholung im Einklang mit der Natur suchen.
Sonstige Angaben
Die Immobilie wird provisionsfrei veräußert.
Grundriss
Grundriss Kellergeschoss
>
>
Grundriss Erdgeschoss
>
>
Grundriss Obergeschoss
>
>
Grundriss Dachgeschoss
>
>
Adresse
94146 Hinterschmiding
Interessante Orte
Preis- und Lageinformationen
Preistrend für Bestandsimmobilien in Hinterschmiding