Großzügiger und gepfleger Walmdachbungalow in familienfreundlicher Siedlungslage von Augustfehn!
Räumlichkeiten:
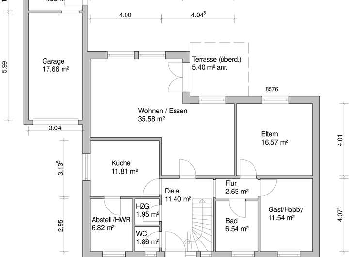
a) Erdgeschoss
Großzügige Eingangsdiele mit Treppenaufgang ins Dachgeschoss, Wohn- und Esszimmer mit Zugang auf die Terrasse, Küche mit praktisch angrenzendem Abstellraum, Schlafzimmer, Büro / Gästezimmer, Badezimmer, Gäste-WC, Hauswirtschaftsraum, Heizungsraum und Flur.
b) Dachgeschoss
Das Dachgeschoss verfügt über drei geräumige Zimmer, Duschbad und Abstellraum.
c) Bodenraum
Der Bodenraum dient als Abstellfläche.
Die Wohnfläche beträgt ca. 171,06 m².
An Nutzfläche stehen die Garage und der Geräteraum mit einer Fläche von ca. 24,67 m² zur Verfügung.
Das Verkaufsobjekt befindet sich insgesamt in einem gepflegten Gesamtzustand!
Die Übergabe erfolgt nach Vereinbarung.
+++ Großzügiger Bungalow mit Garage in familienfreundlicher Wohnlage in Augustfehn! +++
26689 Apen
Die vollständige Adresse der Immobilie erhalten Sie vom Anbieter.
Auf Karte anzeigen
Die vollständige Adresse der Immobilie erhalten Sie vom Anbieter.
Finanzierungszertifikat
In nur zwei Minuten zu Ihrem persönlichen Finanzierungszertifkat.
Infos
| Haustyp | Einfamilienhaus |
|---|---|
| Wohnfläche ca. | 170 m2 |
| Nutzfläche | 24,67 m2 |
| Grundstücksfläche | 572 m2 |
| Bezugsfrei ab | nach Vereinbarung |
| Zimmer | 6 |
| Schlafzimmer | 5 |
| Badezimmer | 2 |
| Garage/Stellplatz | Garage |
| Anzahl Garage/Stellplatz | 1 |
Kosten
| Kaufpreis |
380.000 € |
|---|---|
| Provision |
Die Käuferprovision beträgt 3,57 % inkl. 19 % MwSt. vom beurkundeten Kaufpreis. |
Finanzierungsrechner:
Kaufpreis:
600.000 €
Eigenkapital:
600.000 €
Monatliche Rate
0 €
Effektiver Jahreszins
0 %
Sollzinsbindung
10 Jahre
Bausubstanz & Energieausweis
| Baujahr | 1995 |
|---|---|
| Objektzustand | Gepflegt |
| Heizungsart | Zentralheizung |
| Wesentliche Energieträger | Gas |
| Energieausweis | liegt vor |
| Energieausweistyp | Bedarfsausweis |
| Energieverbrauchskennwert | 151,8 kWh/(m²*a) |
| Energieeffizienzklasse | E |
151,8
kWh/(m²*a)
Energieeffizienzklasse E
- A+
- A
- B
- C
- D
- E
- F
- G
- H
- 0
- 25
- 50
- 75
- 100
- 125
- 150
- 175
- 200
- 225
- >250
Beschreibung des Objekts
Lage
Sämtliche Versorgungseinrichtungen sind wie auch die medizinische Grundversorgung (Allgemeinmediziner, Zahnärzte, Apotheke), Kindergarten, Grundschule, Haupt- und Realschule am Ort und befinden sich in einem Umkreis von nur ca. 600 und sind bequem zu Fuß zu erreichen.
Auch der Bahnhof ist fußläufig zu erreichen.
Die Kreisstadt Westerstede ist ca. 12 km entfernt. Hier befinden sich u.a. die Ammerland-Klinik, Fachärzte, sämtliche Kreisbehörden und das Gymnasium als weiterführende Schule.
Augustfehn verfügt über sehr gute Verkehrsanbindungen. Die BAB 28 (Anschlussstelle Nr. 4) ist nur ca. 5 km entfernt. Weiter verfügt Augustfehn über einen Bahnhof an der Bahnstrecke Oldenburg - Leer. Von hier fahren Züge im stündlichen Wechsel in beide Richtungen.
Der bekannte Kurort Bad Zwischenahn ist in ca. 15 Auto- bzw. Bahnminuten zu erreichen, die Oberzentren Oldenburg und Bremen in ca. ½ bzw. 1 Auto- bzw. Bahnstunde.
Sonstige Angaben
Zu diesem Objekt liegt ein ausführliches Exposé mit weiteren Detailinformationen vor, das Sie gerne bei uns anfordern können.
Telefonische Erreichbarkeit:
Montag - Freitag: 8.00 Uhr - 12.30 Uhr und 14.00 Uhr bis 17.30 Uhr
Samstag: 9.00 Uhr -12.00 Uhr
Sie möchten Ihre Immobilie verkaufen.....
..... und suchen den passenden Käufer?
Unabhängig davon, ob Sie aktuell oder erst in unbestimmter Zeit Ihre Immobilie verkaufen möchten, ist eine fundierte Beratung bares Geld wert. Wir wissen, worauf es beim professionellen Verkauf Ihrer Immobilie ankommt.
Über 70 Jahre Marktpräsenz und tausende Vermittlungen sprechen für sich.
Für ein kostenfreies und informatives Beratungsgespräch stehen wir Ihnen jederzeit gerne zur Verfügung.
Grundriss
Erdgeschoss
>
>
Dachgeschoss
>
>
Adresse
26689 Apen
Interessante Orte
Preis- und Lageinformationen
Preistrend für Bestandsimmobilien in Apen