Ein Hauch von Süden, modern interpretiert: Dieses Zuhause vereint toskanisches Flair mit klarer Architektur und schafft so ein einzigartiges Wohngefühl zwischen Leichtigkeit, Stil und Geborgenheit. Das elegante Walmdach 🏠 auf zwei Ebenen und das leicht zurückgesetzte Obergeschoss verleihen dem Haus seine unverwechselbare Silhouette - ein echter Blickfang mit mediterraner Eleganz.
Auf rund 175 m² Wohnfläche 🌿 bietet das Haus reichlich Platz für die ganze Familie. Im Erdgeschoss befindet sich das Elternschlafzimmer 💕 mit kurzen Wegen und viel Komfort, während das Obergeschoss den Kindern als eigenes Refugium dient - hier ist auch Platz für ein Homeoffice 💻 oder kreative Freiräume.
Die klare Raumaufteilung, das freundliche Lichtkonzept und die moderne Fassadengestaltung sorgen für eine Atmosphäre, die inspiriert und entspannt zugleich. So entsteht ein Zuhause, das Charme, Funktionalität und südliches Lebensgefühl perfekt miteinander verbindet.
👉 Ein Haus, das Sonne, Stil und Wohlgefühl vereint - für Familien, die modernes Wohnen mit mediterraner Leichtigkeit lieben. 🌸
🏡 Mediterrane Optik trifft auf klare Linien ☀️
04613 Lucka
Die vollständige Adresse der Immobilie erhalten Sie vom Anbieter.
Auf Karte anzeigen
Die vollständige Adresse der Immobilie erhalten Sie vom Anbieter.
Finanzierungszertifikat
In nur zwei Minuten zu Ihrem persönlichen Finanzierungszertifkat.
Infos
| Haustyp | Einfamilienhaus |
|---|---|
| Etagenzahl | 2 |
| Wohnfläche ca. | 165 m2 |
| Nutzfläche | 165 m2 |
| Grundstücksfläche | 800 m2 |
| Zimmer | 5 |
| Schlafzimmer | 1 |
| Badezimmer | 2 |
Kosten
| Kaufpreis |
378.179 € |
|---|
Finanzierungsrechner:
Kaufpreis:
600.000 €
Eigenkapital:
600.000 €
Monatliche Rate
0 €
Effektiver Jahreszins
0 %
Sollzinsbindung
10 Jahre
Bausubstanz & Energieausweis
| Baujahr | unbekannt |
|---|---|
| Bauphase | Haus in Planung (projektiert) |
| Objektzustand | Erstbezug |
| Qualität der Austattung | Gehoben |
| Heizungsart | Wärmepumpe |
Beschreibung des Objekts
Ausstattung
Sie können dieses Haus als reines AUSBAUHAUS zum "selbst ausbauen" oder als "bezugsfertig" erwerben. Ich erstelle Ihnen ein detailliertes und individuelles Angebot, bei dem ich Ihre persönlichen Wünsche berücksichtige und auf eine faire und realistische Kalkulation achte. Zu einer ausführlichen Beratung nehme ich mir sehr gern Zeit für Sie!
Folgendes ist in diesem Angebot (Ihr technikfertiges Haus) bereits enthalten:
- modernes Niedrigenergie-Ausbauhaus
- 3-fach verglaste Wärmeschutzfenster (weiß)
- Aluminium-Rollläden
- FREIRAUM-Deckenhöhe 2,75m
- modernes Haustürelement (weiß)
- mineralischer Struktur-Außenputz (weiß)
- Dacheindeckung in versch. Farben zur Auswahl
- Bodenplatte (mit Baugrunduntersuchung und Bodengutachten)
- Baukran und Baugerüst
- Luft-Wasser Wärmepumpe inkl. Fußbodenheizung und Montage
- integrierte Be- und Entlüftungsanlage
- Holztreppe
- Elektroinstallation im Haus
- Sanitär-Rohinstallation
- Dämm- und Beplankungsmaterial (inkl. Bodentreppe)
- Architektenleistung (Genehmigungsplanung und Bauantrag)
- Versicherungspaket (für 1 Jahr)
zzgl. Grundstückskaufpreis, sollten Sie noch kein Grundstück besitzen, Sonderwünsche, Restausbau und Baunebenkosten:
Restausbau:
- Materialien für den Innenausbau (Böden, Türen, Fliesen, Sanitärobjekte usw.)
- Innen-Ausbau (Trockenbau, Malerarbeiten, Fliesen- und Fußböden usw.)
Baunebenkosten:
- Baustelleneinrichtung
- Hausanschlusskosten
- Erdarbeiten
- Außenanlage
Sonstige Angaben
Ihr kompetenter Ansprechpartner für Ihr Traumhaus
Sie suchen nach einem zuverlässigen Partner für den Bau oder die Planung Ihres Traumhauses? Dann sind Sie bei mir genau richtig!
Als erfahrener Ansprechpartner begleite ich Sie von der ersten Idee bis zur Fertigstellung - individuell, persönlich und kompetent.
Mit mir bauen Sie nicht einfach ein Haus - Sie verwirklichen Ihr einzigartiges Traumhaus, das perfekt zu Ihren Wünschen, Ihrem Lebensstil und Ihrem Budget passt. Ob moderne Architektur, klassischer Stil oder maßgeschneiderte Sonderlösungen: Ich unterstütze Sie dabei, Ihre Wohnträume Realität werden zu lassen.
Ihre Vorteile auf einen Blick:
Persönliche Beratung und individuelle Planung
Fachliche Kompetenz und langjährige Erfahrung
Verlässliche Begleitung von der Idee bis zum Einzug
Maßgeschneiderte Lösungen für Ihr Traumhaus
Bauen Sie mit mir Ihr individuelles Traumhaus - Schritt für Schritt, professionell und stressfrei.
Kontaktieren Sie mich jetzt für ein unverbindliches Gespräch und starten Sie den Weg in Ihr neues Zuhause!
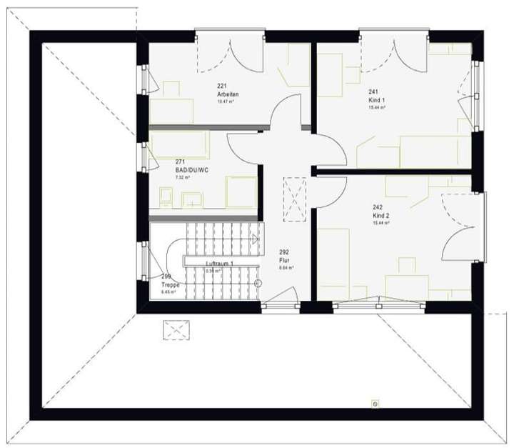
Grundriss
Erdgeschoss
>
>
Obergeschoss
>
>
Adresse
04613 Lucka
Interessante Orte
Preis- und Lageinformationen
Preistrend für Bestandsimmobilien in Lucka